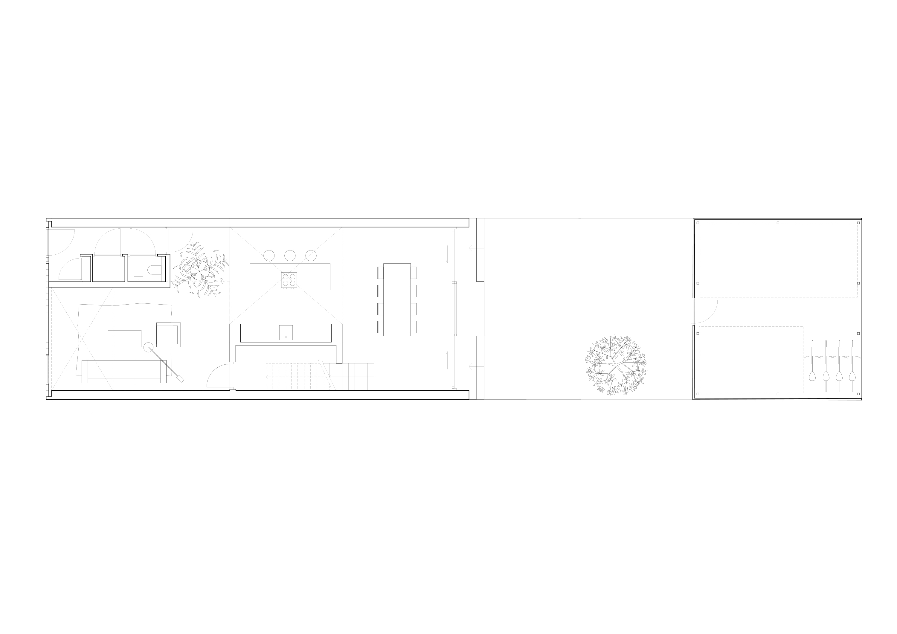
In plaats van functies samen te brengen op de begane grond, heeft het bureau elke activiteit - eten, samenkomen, ontspannen - ondergebracht in een eigen volume. Deze volumes zijn binnen de bouwenvelop gepositioneerd in een compositie die de grenzen tussen boven en beneden vervaagt. Daartussen ontstaan open en gesloten ruimtes: intieme hoekjes naast grote vides die interactie tussen de verdiepingen mogelijk maken.
De onderste helft van het huis ligt achter een muur van vierkante glasblokken die daglicht diep naar binnen laten vallen en het zicht vervormen. Het ritme van vierkanten keert terug in de stalen persroosterelementen langs de achtergevel. Industriële materialen in grijstinten - ruw, reflecterend en doorschijnend - geven het exterieur een karakter dat wisselt met het invallende licht. Bovenin het huis bevindt zich een ruimte met boogvormige ramen aan weerszijden en een buitenterras met uitzicht over het IJmeer.
Light House is gebouwd als een lichtgewicht systeem: een stalen frame met prefab houten elementen. Deze aanpak biedt flexibiliteit, maakt demontage mogelijk en draagt bij aan duurzaamheid op lange termijn. Het watergebruik wordt op eigen terrein beheerd, conform de eisen van Centrumeiland. Het huis heeft een bruto vloeroppervlak van 257 vierkante meter en werd ontworpen en gerealiseerd tussen 2021 en 2025.



































