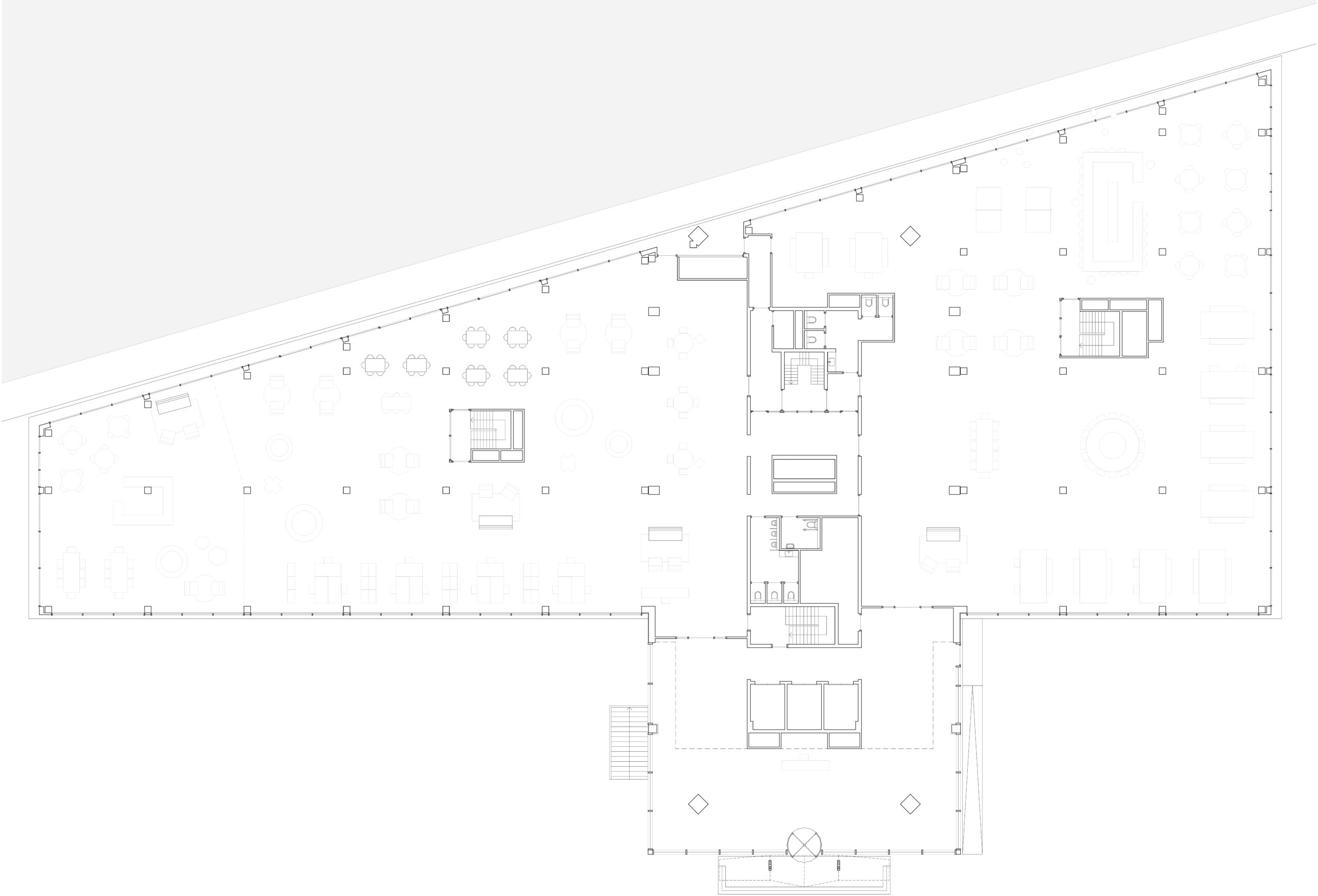
Na jaren van intensief gebruik was het gebouw toe aan vernieuwing en verduurzaming. De renovatie behield de oorspronkelijke structuur en uitstraling, maar voegde twee verdiepingen toe die passen binnen het gevelritme. Ook werd de entreehal vernieuwd op basis van Staals originele ontwerp, inclusief een markante luifel die destijds niet werd gerealiseerd. De nieuwe gevel biedt uitzicht op de Schinkel en versterkt de verbinding tussen gebouw en omgeving.
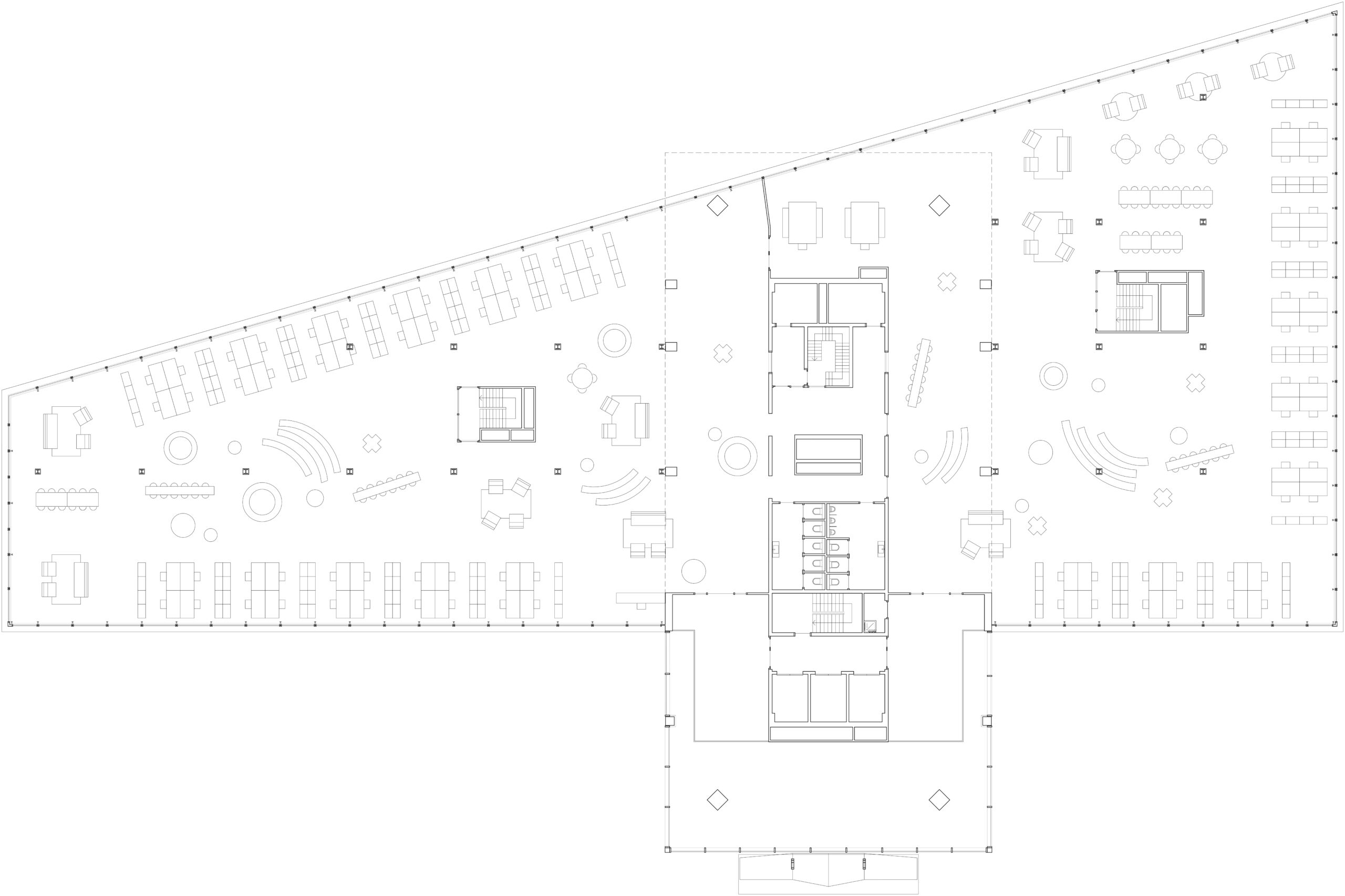
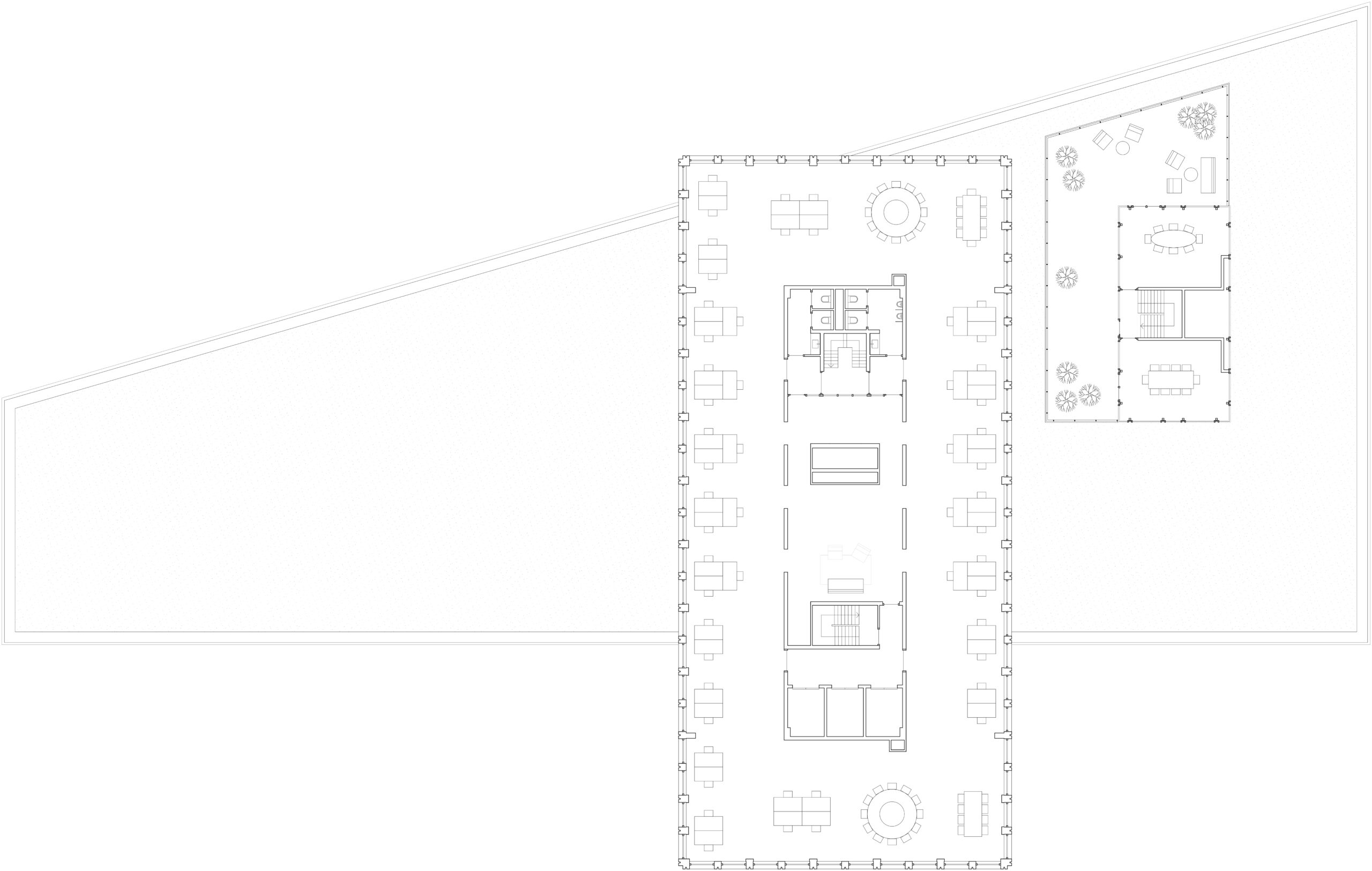
Binnen is de draagstructuur behouden, maar het interieur volledig vernieuwd. De indeling, afwerking en installaties zijn aangepast aan moderne eisen voor comfort en duurzaamheid. Door het behoud van het bestaande casco bleef de milieu-impact beperkt. Het gebouw kreeg verbeterde isolatie, energiezuinige installaties, groene daken en zonnepanelen. Daarmee behaalde Staal-Kade een BREEAM Outstanding-certificering en energielabel A++++.
De herontwikkeling omvatte ook de herinrichting van de oeverzone, ontworpen door Deltavormgroep. Het gebied is getransformeerd tot een openbare ontmoetingsplek met een wandelroute richting de Nieuwe Meer en het Amsterdamse Bos. De naam Staal-Kade, die zowel voor het gebouw als de oever geldt, eert Arthur Staal en benadrukt de samenhang tussen erfgoed, duurzaamheid en stedelijke vernieuwing.




































