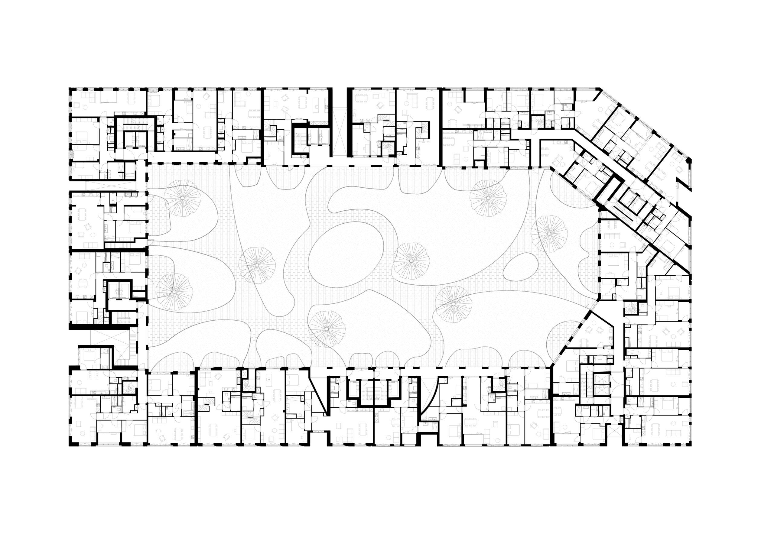
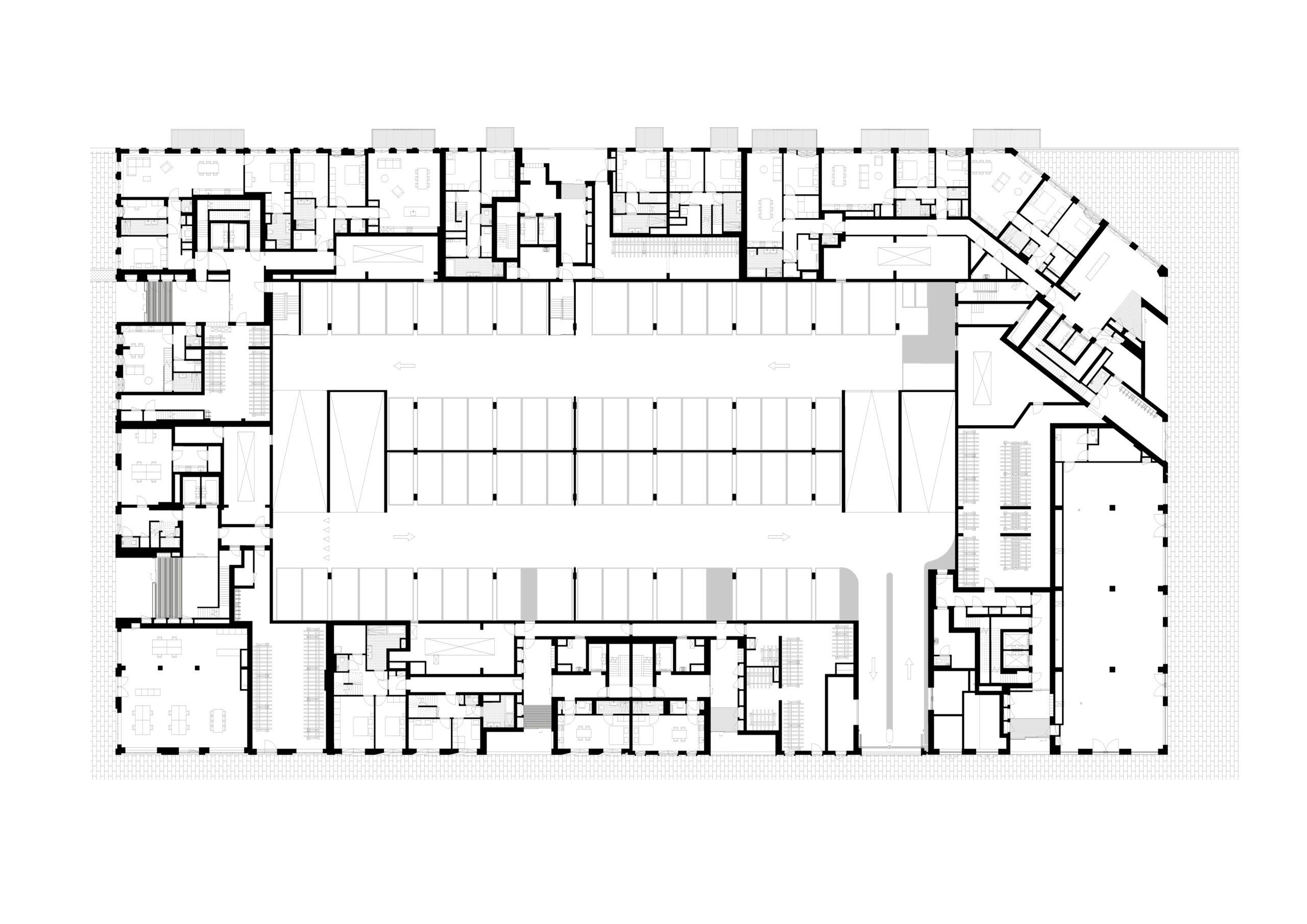
Het gebouw bestaat uit zeven afzonderlijke volumes die verschillen in hoogte, vorm en dakvorm. Samen vormen ze een gevarieerd bouwblok met diverse woningtypes, waaronder lofts aan het water, maisonnettes, studio’s en dakappartementen. Elk volume heeft een eigen materiaalgebruik en gevelritme, waarmee het geheel een herkenbare en samenhangende uitstraling krijgt.
Op straatniveau zijn commerciële functies en cafés gevestigd om levendigheid te bevorderen. De eerste verdieping biedt ruimte aan een gemeenschappelijke binnentuin, die via doorgangen in verbinding staat met de omliggende straten. Deze opzet stimuleert interactie tussen bewoners en de openbare ruimte, en draagt bij aan de doorwaadbaarheid van het bouwblok.

Duurzaamheid speelt een centrale rol in het ontwerp. Zo is er een warmte-koudeopslagsysteem voor energievoorziening, zijn de daken voorzien van groen voor wateropvang en biodiversiteit, en is er ruimte voor elektrische laadpunten en fietsenstallingen. Kensington is goed bereikbaar met het openbaar vervoer en stimuleert zo een autoluwe leefstijl.
06b. Hyde Park Barcode Architects
Download06a. Hyde Park Barcode Architects
Download05b. Hyde Park Barcode Architects
Download05a. Hyde Park Barcode Architects
Download04b. Hyde Park Barcode Architects
Download04a. Hyde Park Barcode Architects
DownloadZ:PROJECTSP213_HOOFDDORP_BLOK 7-8-9�3_DRAWINGS�6_REVITP213_
DownloadZ:PROJECTSP213_HOOFDDORP_BLOK 7-8-9�3_DRAWINGS�6_REVITP213_
Download01. Hyde Park Barcode Architects
Download
























