(Beoogde) aanpak
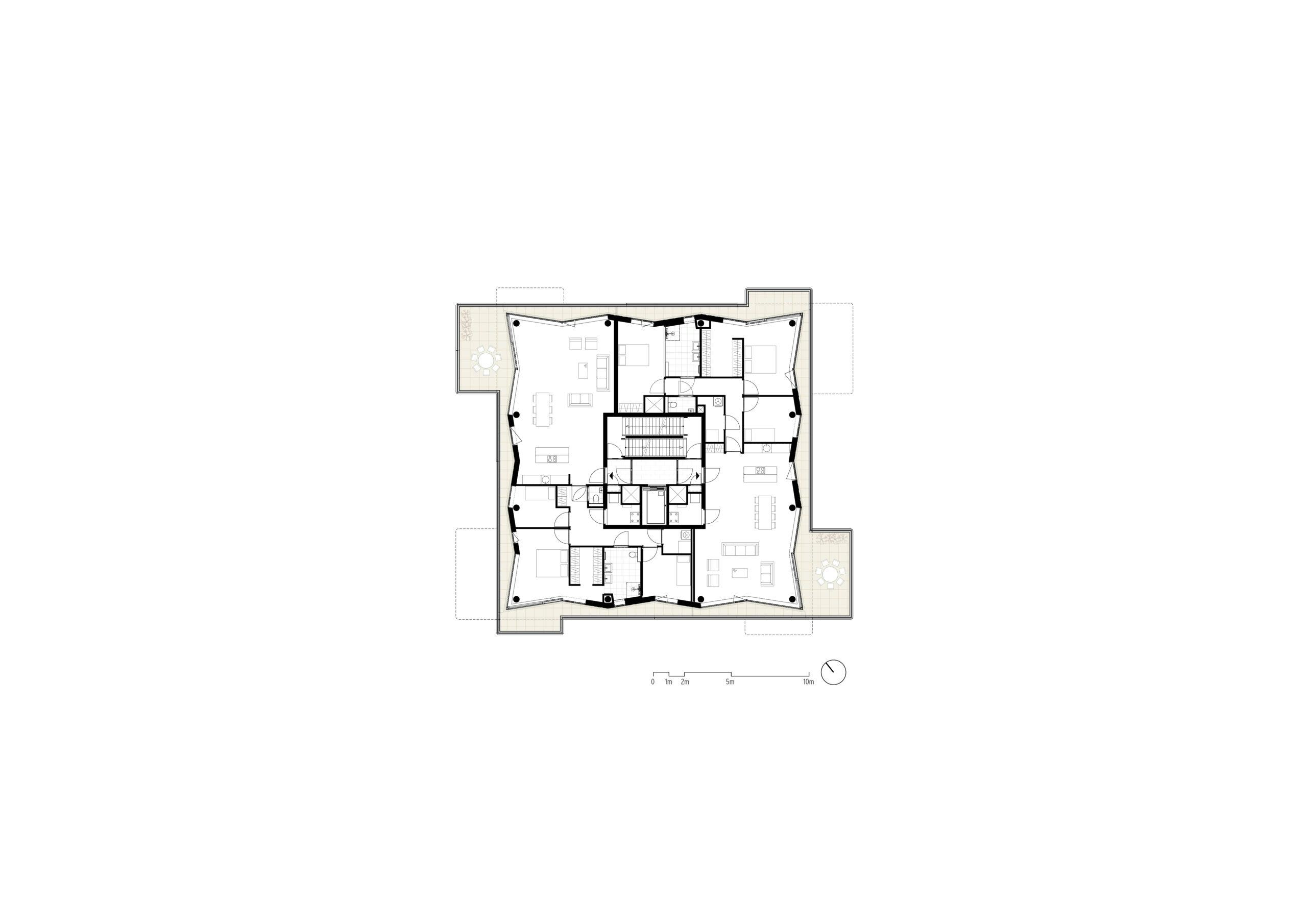
De thema’s ‘zand–stam–blad’ zijn de dragers van het concept en de materialisatie van de toren, waarbij de stapeling van deze thema’s – in lagen op elkaar – heeft geleid tot het uiteindelijke ontwerp. Hierdoor laat de toren zich lezen als een informele compositie van naar buiten vouwende balkons en borstweringen, waarmee het gebouw zich vanzelfsprekend vervlecht met haar bosrijke omgeving.
Samenwerking met andere disciplines
Orange Architects heeft in opdracht van Slokker Vastgoed en NCB Projectrealisatie een woontoren ontworpen, in de wijk Kerkebosch te Zeist. Door middel van ontwerpsessies tussen de ontwikkelaar, de adviseurs en het kwaliteitsteam is ervoor gezorgd dat het gebouw naadloos aansluit bij de kernwaarden van het masterplan. Door de interactieve en integrale samenwerking op basis van BIM konden de architect, de aannemer en de leveranciers aansturen op een esthetisch uitdagend maar maakbaar project.
Duurzaamheid
Het gebouw is ontworpen met het oog op veranderende behoeften, duurzaam materiaalgebruik en efficiënt energieverbruik. De kolomstructuur van het gebouw zorgt voor flexibiliteit en toekomstige aanpasbaarheid. De gevel is betimmerd met duurzaam frakéhout en aan de balkons hangen dunne, demonteerbare GRC-panelen. Een WKO-installatie, voor warmte en koeling, zonnepanelen op het dak, triple glazing, buitenzonwering en WTW-ventilatie zorgt voor een energieconcept dat ruimschoots voldoet aan BENG.
Materiaal en techniek
De toren oogt sculpturaal maar is rationeel opgezet binnen een gridstructuur, waarbij de kern en kolommen in de gevellijn de draagstructuur vormen. Dankzij zelfverdichtend beton en extra wapening is de gevel vrij van dragende wanden. Uitkragingen creëren royale buitenkamers. De flexibele kolomstructuur maakt zigzaggende, transparante gevels mogelijk. Glasvezelversterkt beton zorgt voor slanke, duurzame borstweringen met een zandkleurig, ribbelprofiel, wat de toren laat opgaan in zijn omgeving.
Maatschappelijke impact
Met de herstructurering van Kerckebosch heeft een opwaardering van de woonwijk plaatsgevonden. Naast dat de oorspronkelijke bewoners een fijne, nieuwe woonplek hebben gekregen creëert een project als Beaufort ook woningen voor nieuwe bewoners. Op buurtniveau is hierdoor een betere sociaal-economische mix ontstaan. Beaufort laat daarbij zien hoe op een gevoelige locatie grote woningen op een compacte, hoogwaardige en in harmonie met de omliggende natuur gerealiseerd kunnen worden.
Fysieke impact
Met Beaufort willen wij voortborduren op het stedenbouwkundige en landschappelijke thema van 'wonen in de natuur'. Daarnaast hebben we een gebouw willen maken dat zowel bijzonder als vanzelfsprekend is op deze locatie. Een gebouw dat met zijn voeten in de bosgrond lijkt te staan, al zit er een parkeerbak onder. Een toren die zowel iconisch is als assimileert met de omliggende natuur. Een materialisatie die uitgesproken is, maar tegelijkertijd lijkt op te gaan in haar bosrijke omgeving.
Omgevingsintegratie
Het natuurinclusieve landschapsontwerp rond het gebouw is gericht op het behouden en versterken van de bestaande biodiversiteit en de kwaliteiten van de natuurlijke omgeving. Doordat een rijke variëteit aan lokale vegetatiesoorten op de half verdiepte parkeergarage geplant wordt, strekt het bos zich uit tot aan de gevels van het gebouw. Om de parkeerplaats verder in het landschap te laten verdwijnen is gebruik gemaakt van turf bioblokken, open bestrating en boomstammen.
PDF bestanden
orange-architects-beaufort-01-situatie-2-scaled-1
Downloadorange-architects-beaufort-02-conceptschema-2-scaled-1
Downloadorange-architects-beaufort-03-aanzicht-noordwest-gevel-2-scaled-1
Downloadorange-architects-beaufort-04-plattegrond-tweede-verdieping-2-scaled-1
Downloadorange-architects-beaufort-05-gevelfragment-2-scaled-1
Downloadarc25-beaufort-documentatie-4-paginas
Download
Dit project is ingezonden voor de ARC25 Nieuwe Architectuur Award.














