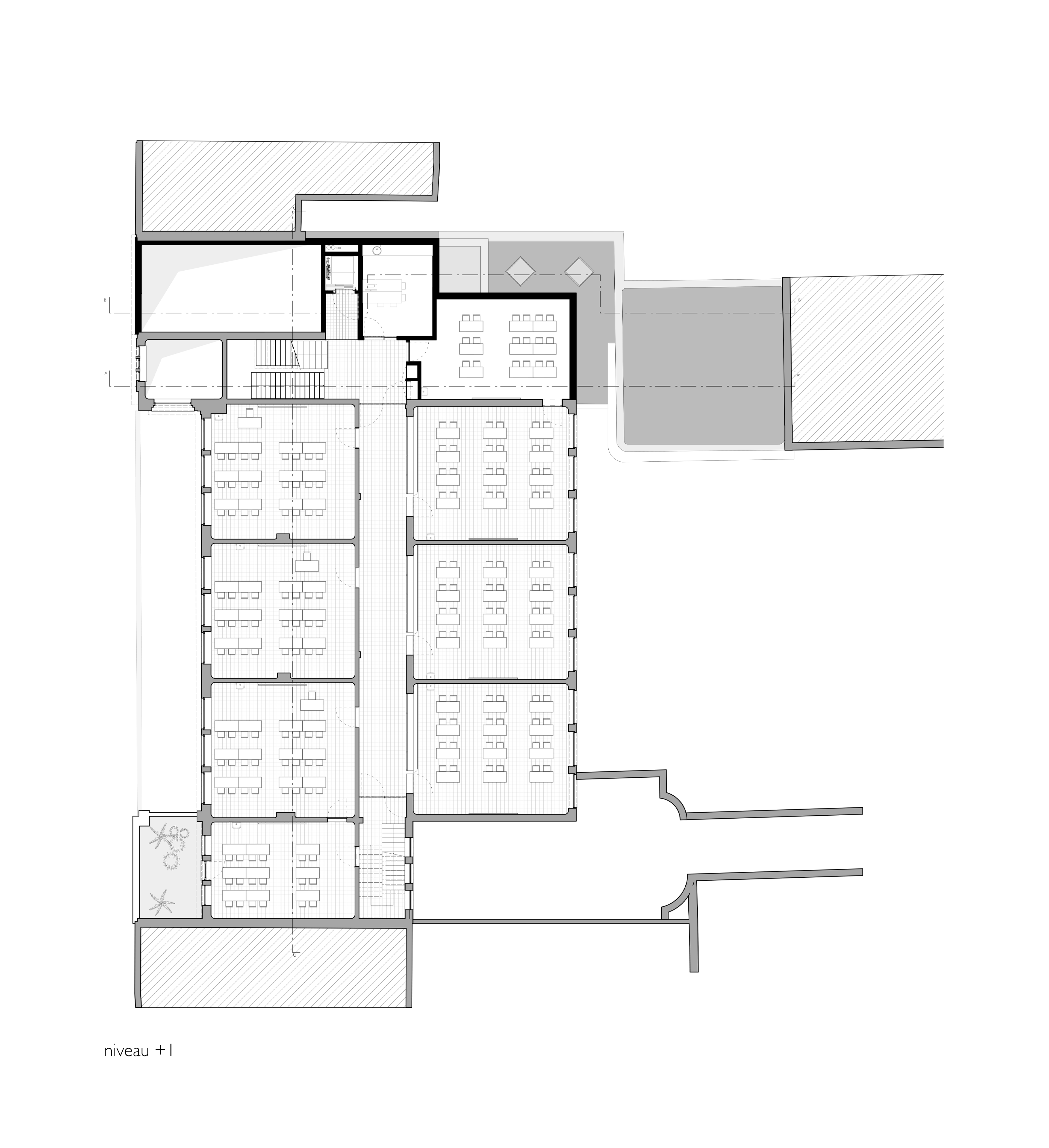
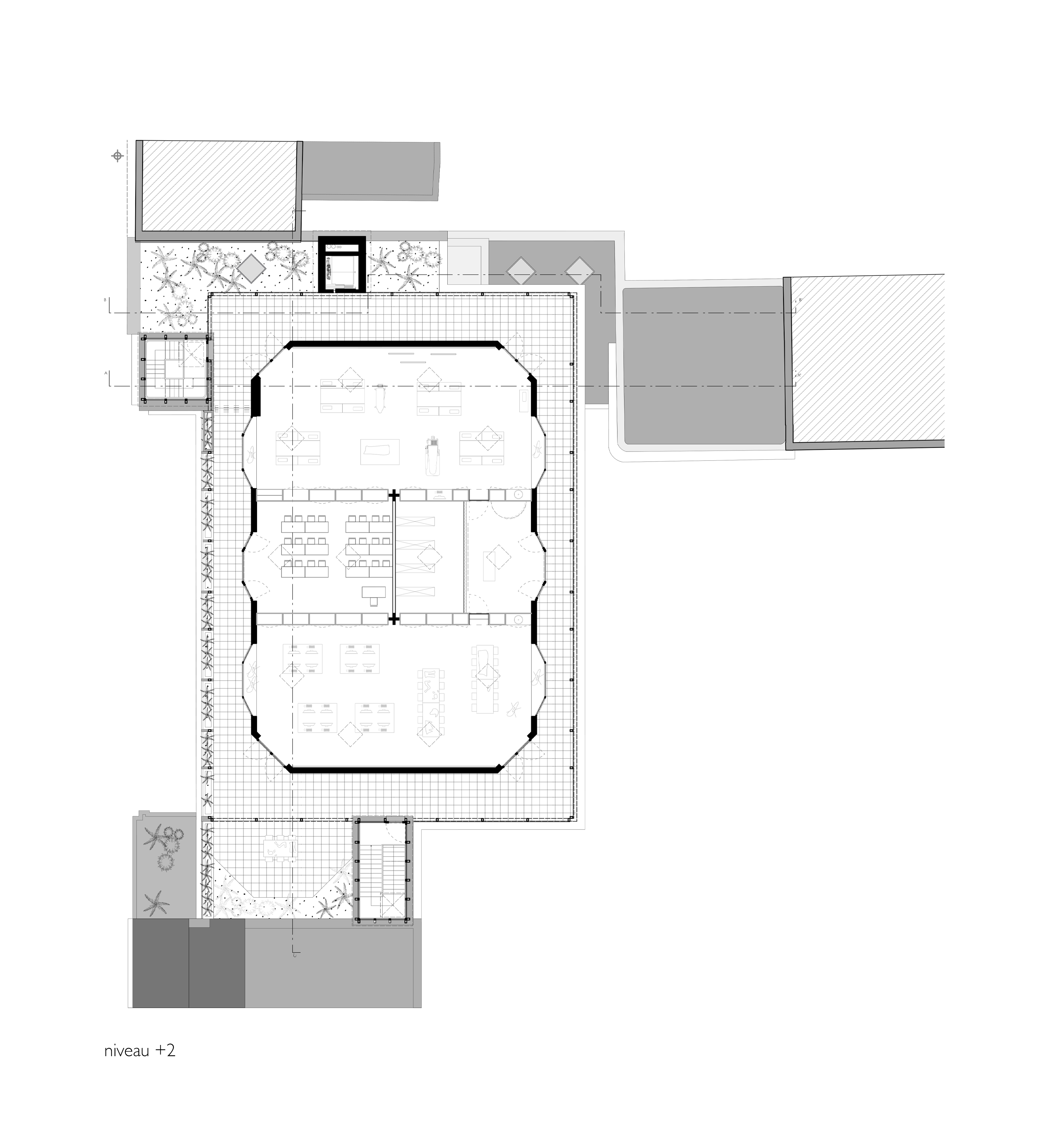
De nieuwe sculpturale, hexagonale vorm omvat zes flexibele lokalen waarbij de circulatie aan de buitenzijde wordt georganiseerd waardoor een minimale footprint wordt gebouwd en de overblijvende oppervlakte bijkomende, kwalitatieve buitenruimte kan worden. We bouwen op deze manier zéér compact en zuinig. Bovendien wordt aan een stedelijk gebouw veel groene ruimte toegevoegd.

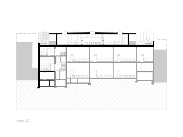
De luifel die in de hoeken verbreedt laat zich als een polyvalente ruimte gebruiken (een uitbreiding van deklassen, een overdekte speelplaats, etc.). De optopping toont zich vanuit het straatbeeld als één leesbaar, elegant en licht element gelegen in een groene daktuin. De erkers in de optopping refereren subtiel maar niet letterlijk naar de bouwstijl van de onderbouw.

De speelplaats wordt opnieuw aangelegd waarbij het bestaande niveauverschil wordt ingezet om een trappenlandschap te creëren dat kan gebruikt worden als amfitheater/tribune voor de leerlingen. Het landschapsontwerp gaat tevens in dialoog met het achterliggende oude klooster en de historische brug die als bouwkundig erfgoed beschermd worden.
Deze tekst is aangeleverd door Poot Architectuur en samengevat met behulp van ChatGPT.










































