De toren is onderdeel van de herstructurering van de wijk Kerckebosch te Zeist en vormt de sluitsteen in een reeks van nieuwe appartementengebouwen, aan de rand van het bos.
Het ontwerp is geïnspireerd op de groene omgeving, waarbij de thema's ‘zand’, ‘stam’ en ‘blad’ de basis vormen voor de materialisatie van de toren. De onregelmatige stapeling van balkons en borstweringen zorgt voor een natuurlijke integratie met het landschap, terwijl het gebouw als baken de entree van de wijk markeert.

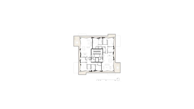
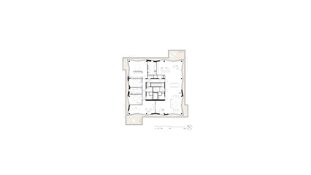
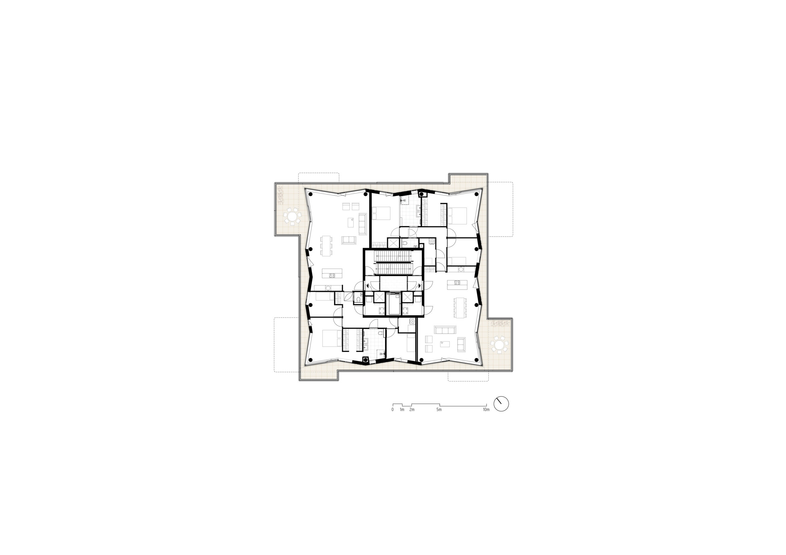
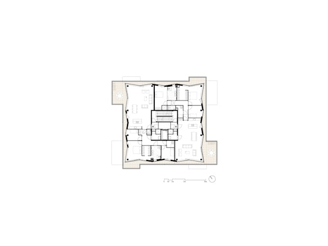
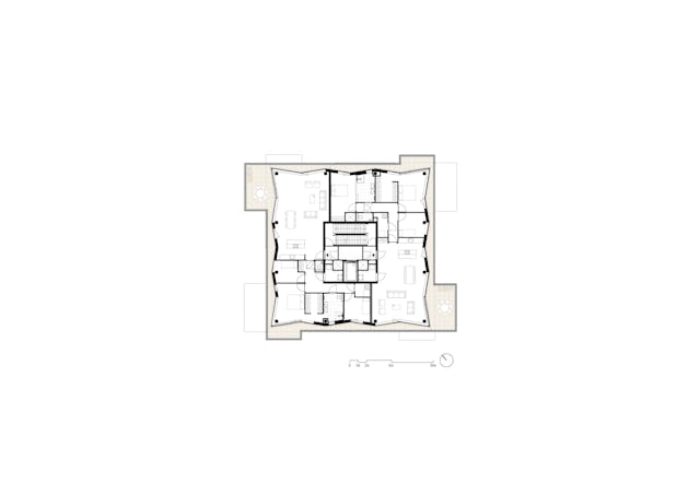
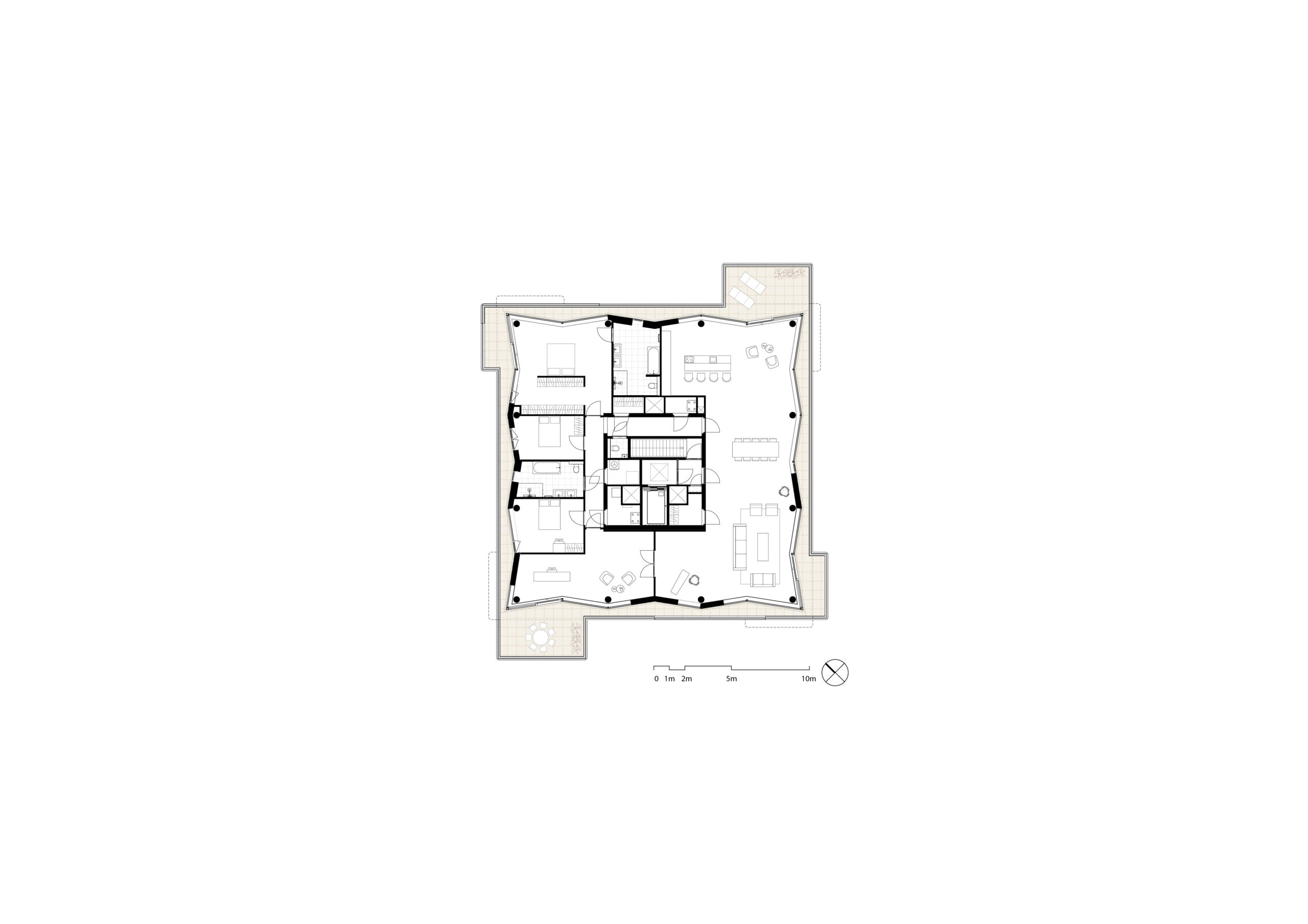
De toegang tot Beaufort verloopt via een glooiend bospad. De geknikte gevel creëert een uitnodigende entree, die leidt naar een dubbelhoge hal met uitzicht op de omgeving. De centrale kern met liften en trappen biedt toegang tot de appartementen. De toren is opgebouwd binnen een rationele grid-structuur, die doorloopt naar de half verdiepte parkeergarage. Het gebouw telt 10 verdiepingen met twee L-vormige appartementen per verdieping, terwijl de bovenste verdieping een penthouse biedt met een 360 graden uitzicht.
De appartementen zijn uitgerust met royale buitenruimtes, waarbij de gevels strategisch zijn geknikt om de grens tussen binnen en buiten te vervagen. De borstweringen zijn ontworpen met een patroon van zandribbels, terwijl de buitenplafonds zijn afgewerkt met ribbelvormige houtwolcement panelen. De gevelbekleding is uitgevoerd in Fraké-hout, wat het thema ‘stam’ weerspiegelt. Het landschapsontwerp rondom het gebouw bevordert de biodiversiteit, met lokale vegetatiesoorten op de parkeergarage en diverse oplossingen om deze in het landschap te integreren.

Beaufort is ontworpen met aandacht voor duurzaamheid en toekomstige aanpasbaarheid. De kolomstructuur biedt flexibiliteit voor veranderende behoeften. Duurzame materialen zoals Fraké-houten gevelbetimmering en prefab GRC-panelen zijn herbruikbaar. Een collectieve WKO-installatie, zonnepanelen en energie-efficiënte systemen voldoen aan de BENG-normen. Het gebouw is volledig drempelloos toegankelijk, wat de bereikbaarheid voor alle gebruikers optimaliseert. Grote ramen en balkons zorgen voor rustgevende uitzichten en een sterke verbinding met de natuur.
Deze tekst is aangeleverd door Orange Architects en samengevat met behulp van ChatGPT.













































