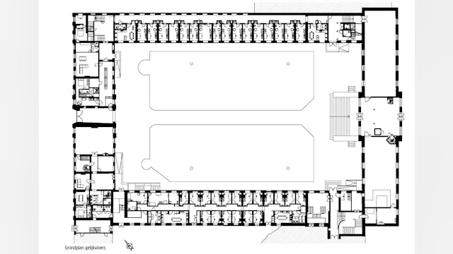
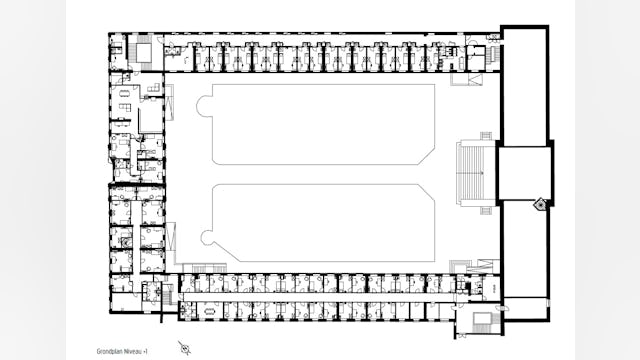
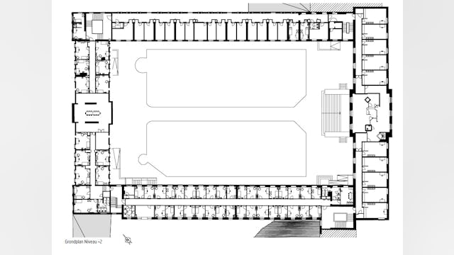
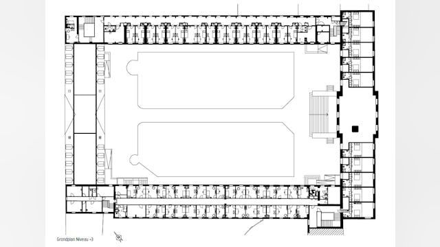
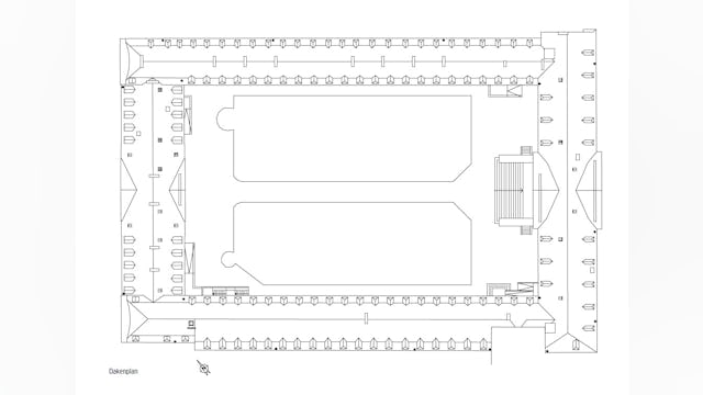
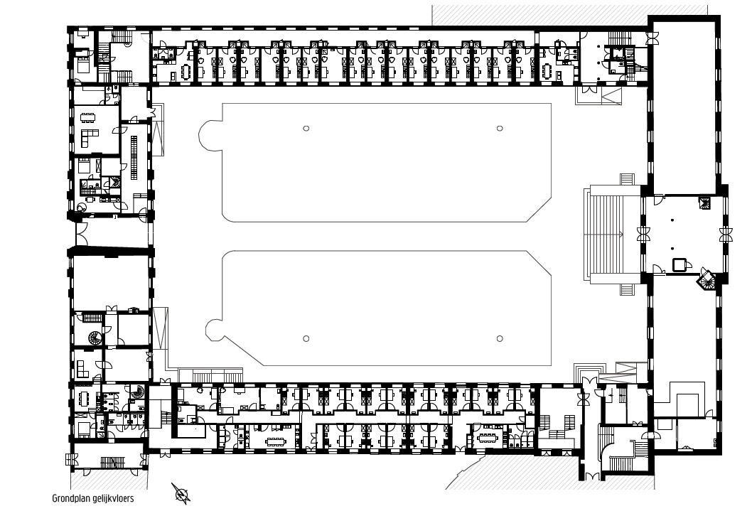
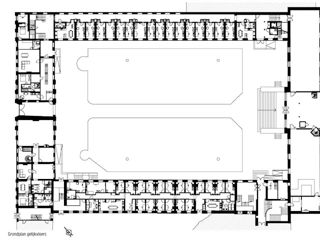
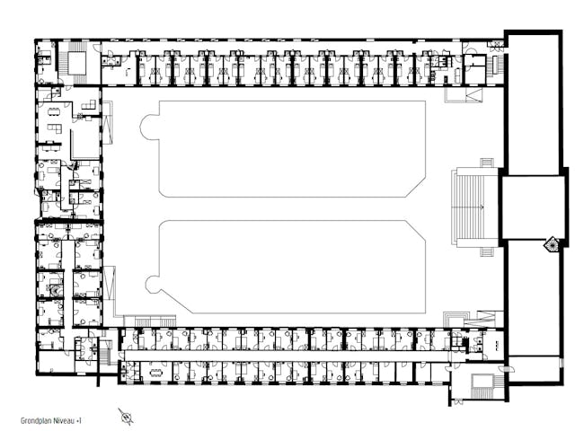
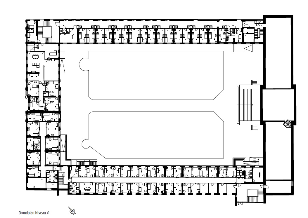
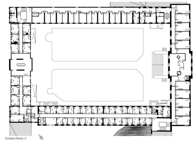
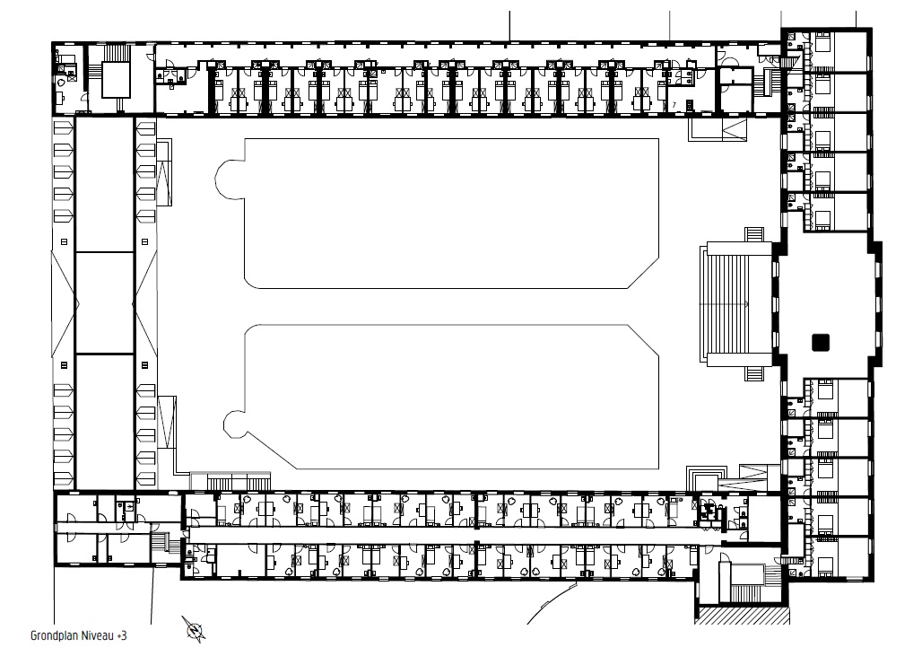
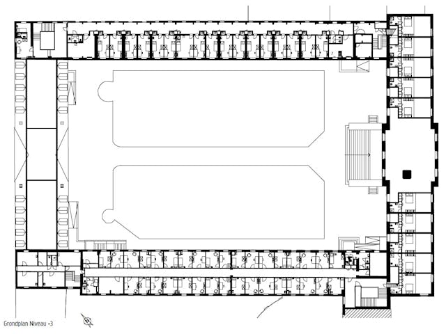
Dit monumentale gebouwencomplex, geklasseerd in 1973, bestaat uit vier vleugels rondom een centrale erekoer en biedt plaats aan ongeveer 180 studentenkamers en enkele publieke functies. Belangrijke historische elementen worden gerestaureerd, en het complex wordt aangepast aan de actuele wetgeving op het gebied van veiligheid, toegankelijkheid, akoestiek en kwaliteitseisen voor studentenhuisvesting. In samenspraak met betrokken partijen zijn keuzes gemaakt op basis van bouwhistorische en architecturale waarden, functionaliteit en financiële haalbaarheid. Het project is gefaseerd om continuïteit van bewoning te waarborgen.

Bij de renovatie van de studentenkamers ligt de focus op het behoud van bestaande structuren vanwege hun historische waarde. Beperkte aanpassingen zorgen voor de integratie van gemeenschappelijke functies zoals sanitair en keukens. De kamers en gangen worden gerenoveerd met aandacht voor het binnenbrengen van daglicht, wat bijdraagt aan een prettig leef- en studieklimaat voor studenten. In de rechtervleugel wordt het akoestisch comfort verbeterd met lichte voorzetwanden. De inkomruimte van een kamer fungeert als leefruimte, wat de akoestische afscheiding naar andere ruimtes verbetert.
De samenwerking tussen verschillende actoren vormde een uitdaging in dit traject. De KUL studentenhuisvestingsdienst streefde naar extra kamers, terwijl de dienst onroerend erfgoed de conservering van het gebouw benadrukte. De toegenomen normen voor studentenhuisvesting en brandveiligheid bemoeilijkten het ontwerp. Hierdoor konden de oorspronkelijke achttiende-eeuwse deuren van de studentenkamers niet behouden blijven door de vereiste brandweerstand.

In samenwerking met Barbara van de Wee is een subsidiedossier opgesteld voor de KUL. De opdrachtgever heeft dit dossier ingediend, met een totaal geraamd bedrag van 3.021.700,18 euro. De aanvraag is goedgekeurd door Onroerend Erfgoed Vlaanderen. Het project beoogt een zorgvuldige balans tussen restauratie, functionaliteit en het voldoen aan hedendaagse eisen.
Deze tekst is aangeleverd door A2D architecture 2 design en samengevat met behulp van ChatGPT.











































