Toelichting NEXT Architects
Het Amsterdamse eiland Oostenburg was eeuwenlang het centrum van handel en industrie en wordt op dit moment ontwikkeld tot een nieuwe, stoere stadswijk met ongeveer 1500 woningen. Er komt een mix van sociale, middensegment en vrije sector huurwoningen, koopappartementen, zelfbouwwoningen, horeca en bedrijvigheid.
Op kavel 6 zijn één woontoren, twee kleinere (woon)gebouwen en een bedrijfsruimte die de kernwaarden van het eiland Oostenburg verbeelden gekomen: stoer, levendig en contrastrijk. Het diverse woningaanbod op deze historische plek dichtbij het centrum van Amsterdam, maakt Oostenburg tot een unieke stadswijk voor iedereen.

Stork
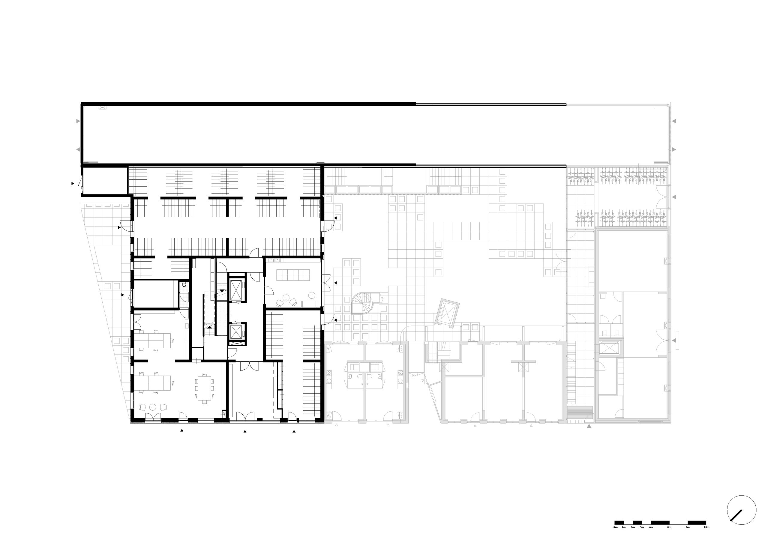
Het gebouw maakt onderdeel uit van een ensemble van woongebouwen en een bedrijfsruimte op kavel 6. De samenwerking tussen de verschillende architectenbureaus heeft geleid tot vier unieke gebouwen die samen een ensemble vormen, maar ook ieder een eigen karakter en identiteit hebben. Het samengestelde ontwerp voor jongeren én ouderen bood de kans om een stuk stad te maken dat inclusief is, waar uiteenlopende wensen worden samengebracht tot gedeelde waarden en tegelijkertijd de verschillende behoeften van de diverse bewoners gerespecteerd worden.
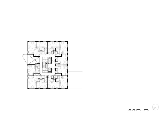
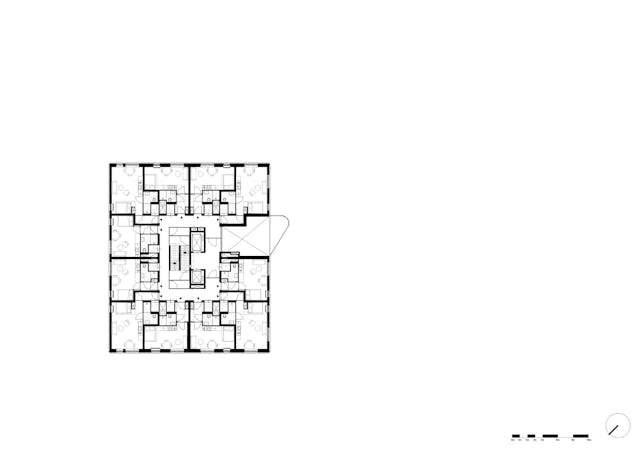
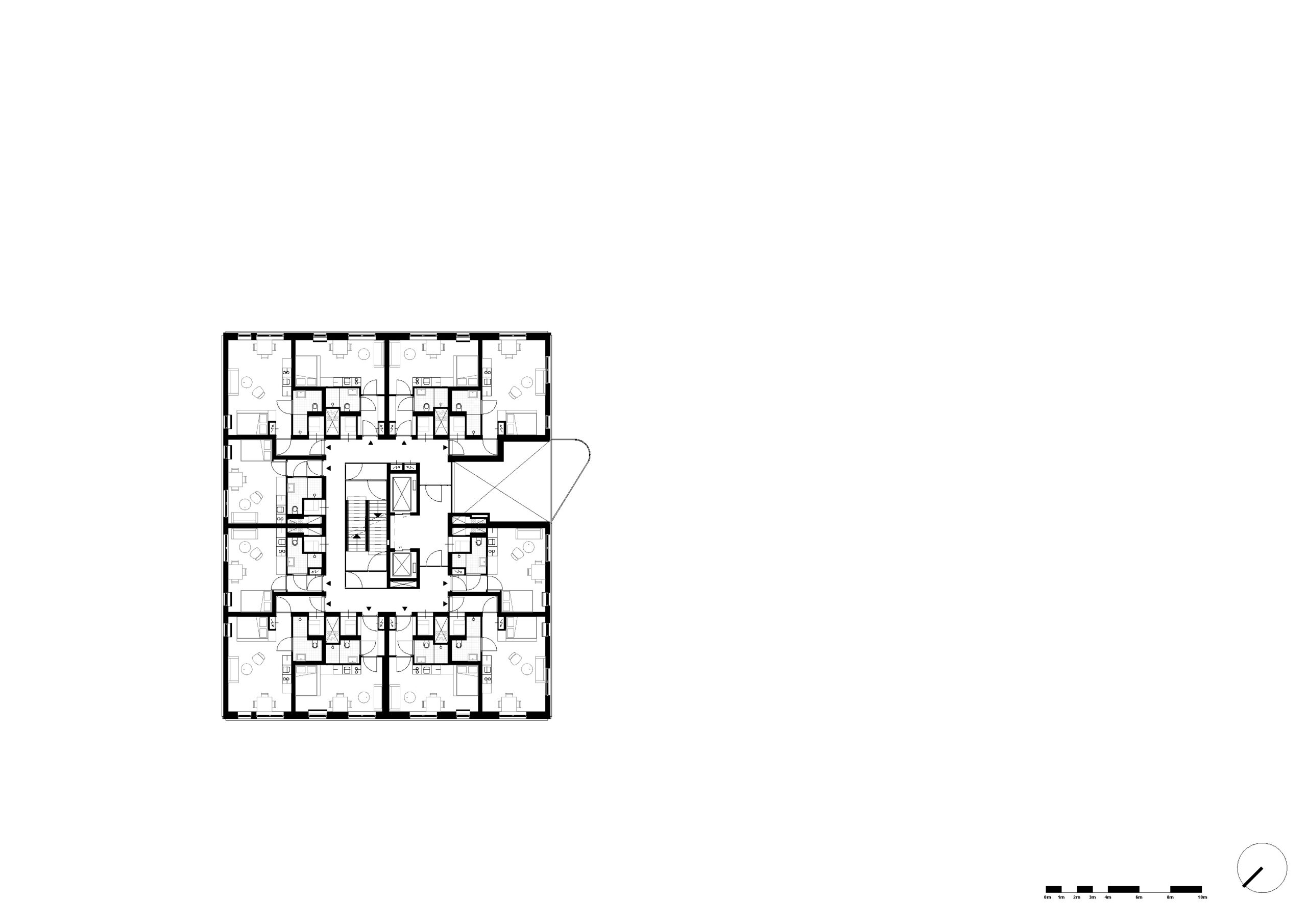
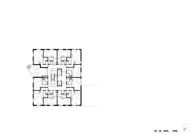
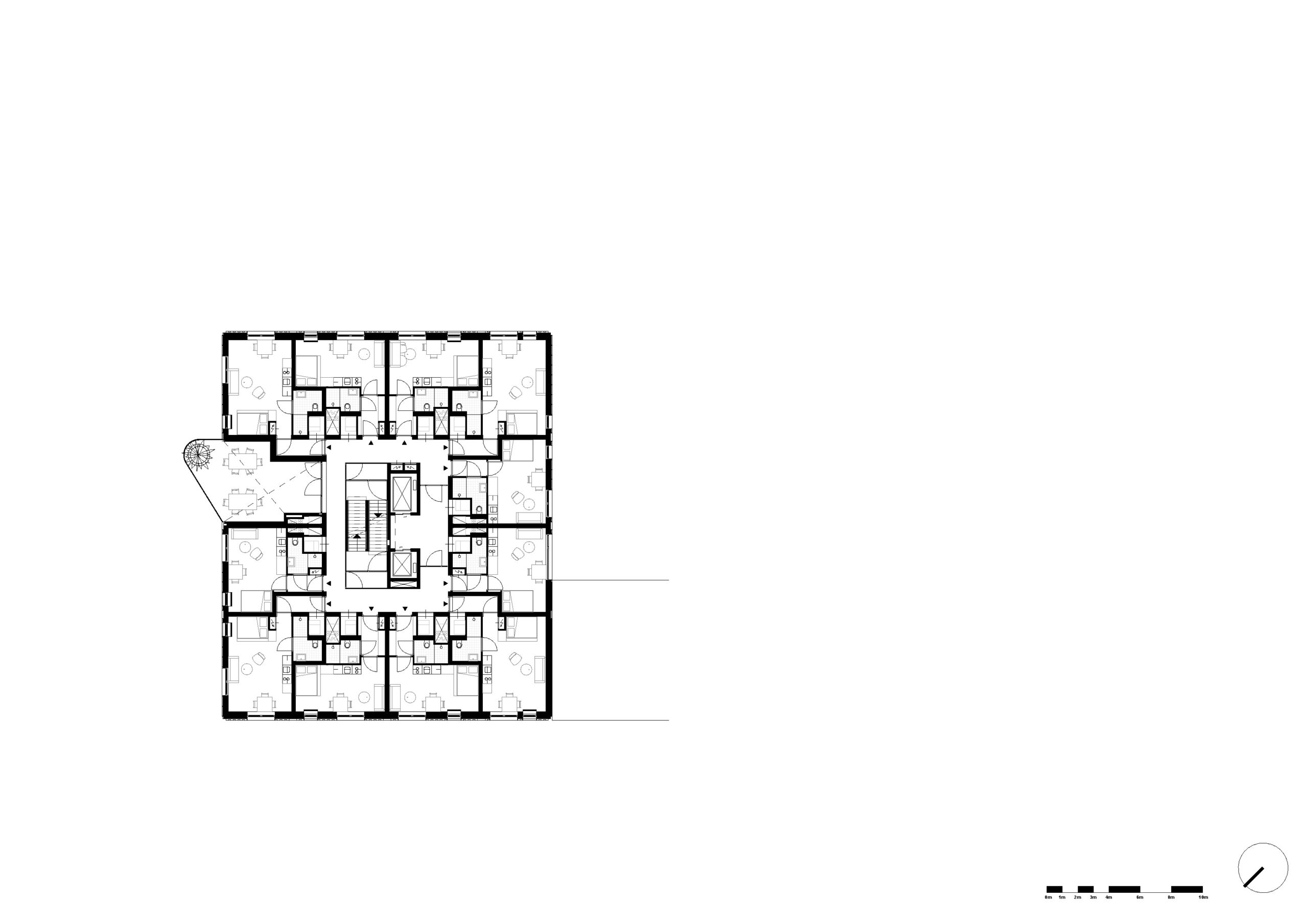
Het gebouw heeft karakter en een eigen identiteit waar de jongeren die het bewonen zich in kunnen herkennen: stoer, krachtig én ‘kwetsbaar’. De woontoren is opgebouwd als een stapeling van ‘buurtjes’ met collectieve binnen- en buitenruimtes waar interactie en samenkomst tussen bewoners wordt gestimuleerd. De gemeenschappelijke buitenruimtes beschikken over een dubbele hoogte, waardoor bewoners uit verschillende woonlagen samengebracht worden en ontmoeting wordt gestimuleerd. De trappen die naar deze ruimtes leiden en de grote raampartijen genereren een bron van licht in de toren. Vanuit de kern van het gebouw is de buitenwereld continu zichtbaar; een visuele verbinding met de stad en de omgeving. Een aantal bijzondere ontmoetingsplekken in het gebouw, met concepten zoals een wasbieb en verschillende co-working spaces, maken de toren tot een unieke woonplek.

De gevel van roestbruin cortenstaal met grote, diepgelegen ramen sluit aan bij industriële esthetiek van Oostenburg. Het robuuste staal biedt een interessant contrast met het omliggende groen van de beplantte daken en de collectieve buitentuin.




































