Toelichting Studio Groen + Schild | Beeld Mike Bink
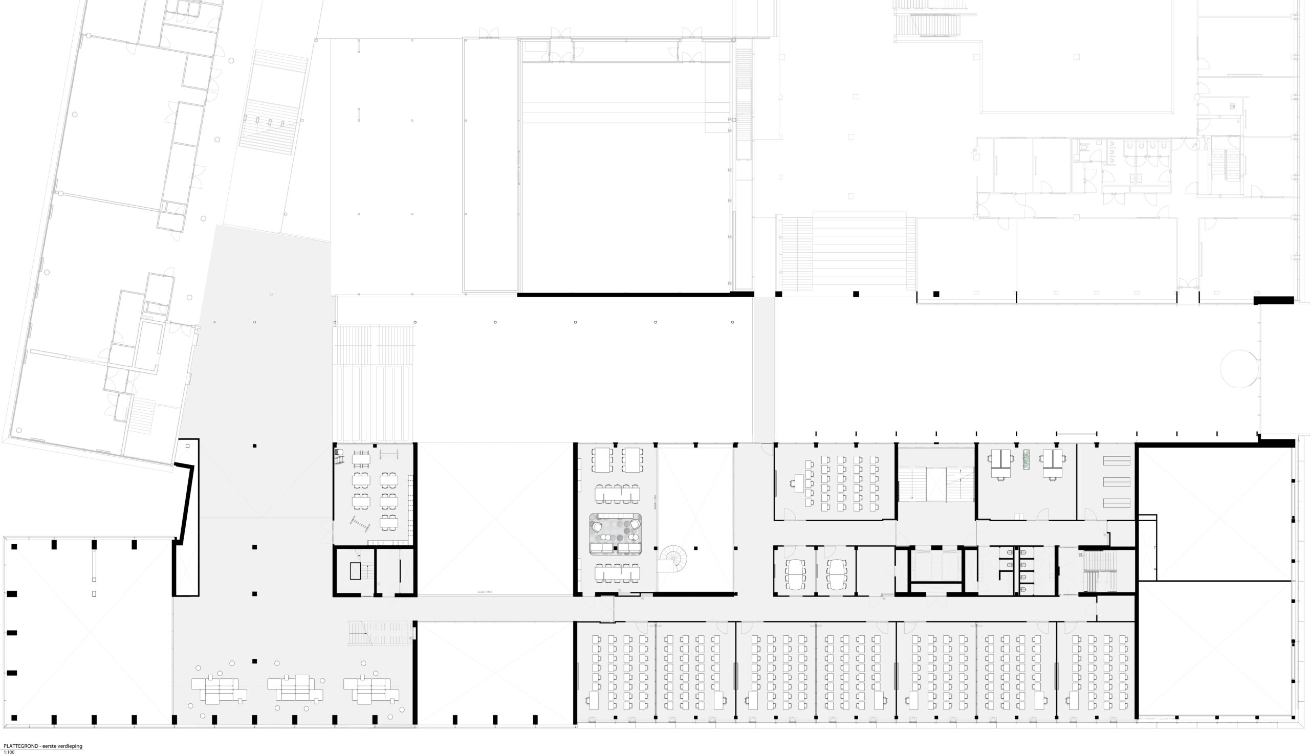
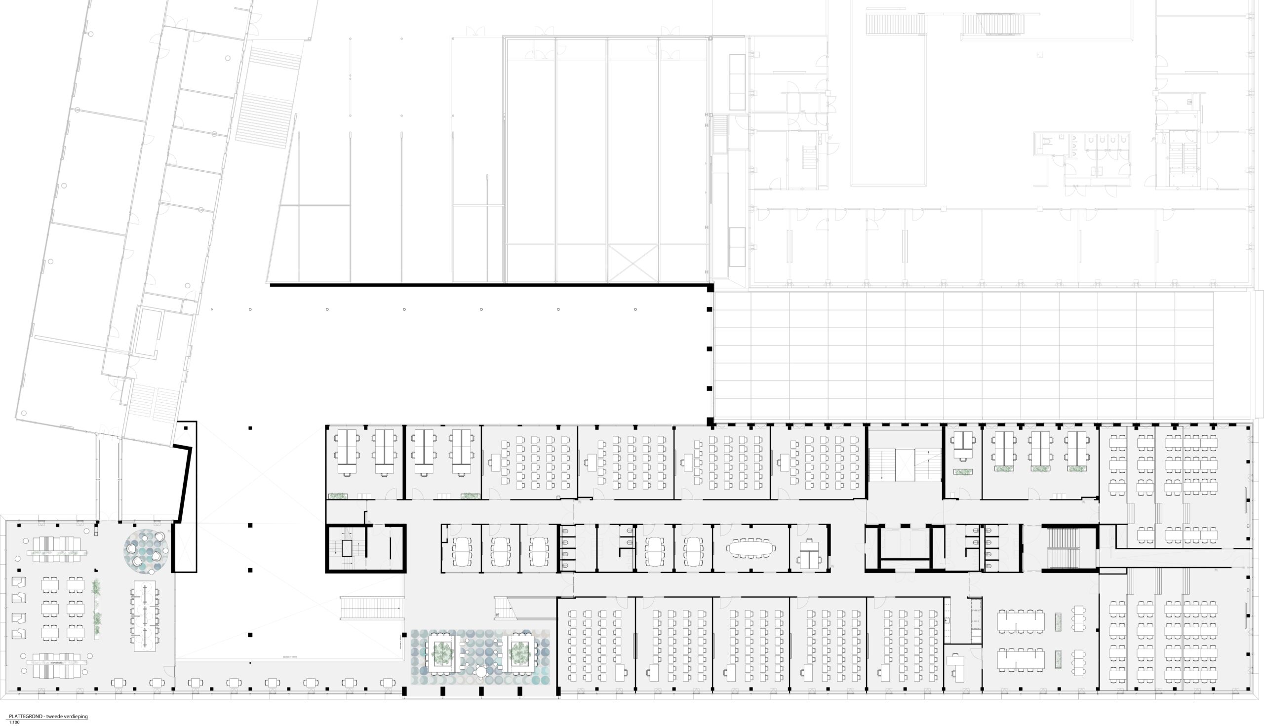
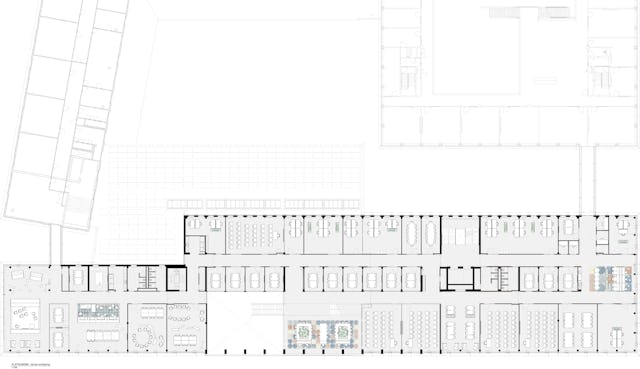
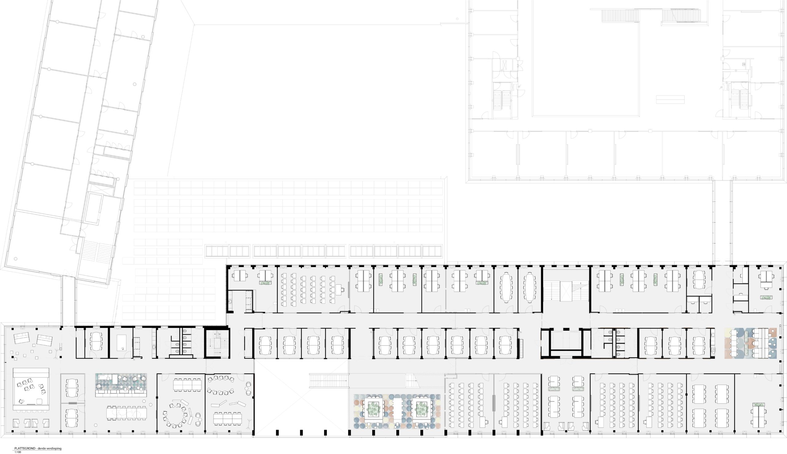
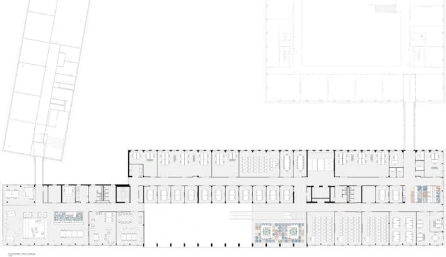
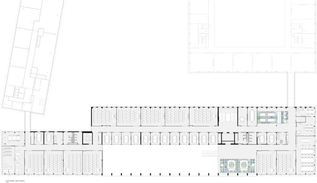
Het nieuwe gebouw, met een oppervlakte van 14.000 m2, huisvest alle economische opleidingen van de Hogeschool Rotterdam Business School. Markant in de architectuur is de imposante houten cascadetrap, goed zichtbaar achter de transparante gevel. De trap is dé verbinding in het gebouw en ligt in een groot atrium. Aan het atrium bevinden zich projectruimtes en werkplekken. Studiepleinen in het atrium en op de verdiepingen geven studenten de mogelijkheid voor ontspanning en interactie.
De functies op de begane grond, met name het Grand café en de Mediatheek zorgen voor contact tussen studenten, docenten en het bedrijfsleven. Het interieur is een schakel tussen de faculteit en de maatschappij en draagt bij aan het vormgeven van de Business School community.

Het Grand café, op de hoek van het gebouw en van buitenaf toegankelijk is dubbel hoog en ingericht met een aantal grote objecten. De bar is een ware eyecatcher. Warm kleurgebruik, spiegelstroken, diversiteit in verlichting en een messing frame met glazen en planten boven de bar, geven de ruimte een aangename horecasfeer.
De Mediatheek ligt direct naast de entree. Ook deze ruimte is dubbel hoog. De vloer is licht en alle kasten zijn opgebouwd uit witte aluminium frames. De wenteltrap die naar een hoger gelegen studieruimte leidt is ook wit. Architectuur en interieur zijn met elkaar verbonden. Houten tafels en groene planten kleden de ruimte aan.
De Werkgroepzalen, opgebouwd uit houten tribunes, zijn van buitenaf goed zichtbaar. Het losse meubilair kan in diverse opstellingen worden gepositioneerd. Er kan klassikaal onderwijs worden gegeven, maar ook in groepen worden gewerkt.
Flexibel en toekomstbestendig
Het onderwijs is de afgelopen jaren flink veranderd en zal door nieuwe ontwikkelingen, zoals bijvoorbeeld AI, in de toekomst zeker weer veranderen. Dit vraagt om andere ruimtes, groter, kleiner, het is nog niet te voorspellen. Het gebouw en het interieur zijn daarom uiterst flexibel ontworpen. Indelingen kunnen worden gewijzigd, met andere opstellingen in meubilair kunnen nieuwe onderwijsvormen worden gefaciliteerd.

Identiteit
De Rotterdam Business School (RBS) en de opleiding SportMarketing en Management (SMM) vormen samen één community, maar kennen ook hun eigenheid. De identiteit van de opleidingen hebben we samen met de studenten en medewerkers vertaald in kleuren, patronen en een heuse wall of fame. Hier kunnen opleidingspecifieke elementen worden getoond, zoals bijvoorbeeld foto’s van sporthelden bij Sportmarketing en foto’s van bedrijven waarmee wordt samengewerkt bij de Business School. In karpetten met uitgesproken patronen en kleuren komt de identiteit terug. Cirkels en bollen staan voor Connect & Activate. Bij RBS in blauw en camel, business like, en bij SMM in blauw en groen, gericht op sport. Bij RBS zijn stoelen toegepast van gerecyclede maatpakken, bij MMS tafelbladen van
hergebruikte sportvloeren. Couleur locale per opleiding.
Duurzaam en gezond
Het nieuwe gebouw is energieneutraal. De zichtbare zonnecellen op het dak van het atrium zorgen mede voor de energieopwekking. Er is veel aandacht besteed aan verse lucht en een prettige ruimteakoestiek.
Het interieur is ontworpen op herbruikbaarheid, los van het casco. Dit verlengt de levensduur van materialen en vermindert de behoefte aan nieuwe grondstoffen. In het ontwerp zijn bij voorkeur biobased materialen gebruikt. Hiermee dragen we bij aan het verminderen van onze ecologische footprint en een duurzame toekomst. Het gebruik van veel hout en natuurlijk groen draagt bij aan een gezond binnenklimaat en aan een prettige en stimulerende onderwijsomgeving.


































