Toelichting Atelier Kempe Thill | Foto's Ulrich Schwarz
Het hele complex werd ontworpen door architect Remy van der Looven in 1956 en is voltooid begin jaren 1960. Wat betreft de eenheid van de klassieke stedelijke structuur is Florair eerder een uitzondering, maar zonder de eentonigheid van grotere modernistische ensembles. Deze omstandigheid, evenals de architectuur die bijna als klassiek kan worden beschouwd en zeer veeleisend is voor de moderne sociale woningbouw, maakt de gebouwen tot een fascinerende afwijking in het stedelijk weefsel.
De eigenaar en ontwikkelaar is de Société du Logement de la Région de Bruxelles-Capitale (SLRB), het grootste openbare huisvestingsbedrijf in de metropool, samen met zijn lokale afdeling Foyer Jettois. De opdrachtgever was op de hoogte van de architectonische kwaliteiten van de bestaande gebouwen en wilde deze behouden of adequaat overbrengen naar de gerenoveerde staat. Het beschikbare budget omvatte echter alleen voorzieningen voor onderhoud en een beperkte subsidie. Om een totaalplanningsteam van architecten en ingenieurs te selecteren, organiseerde de SLRB een competitie, die Atelier Kempe Thill in 2014 won in samenwerking met Canevas Architectes et Ingénieurs en het ingenieursbureau Greisch.

Ambachtelijke architectuur
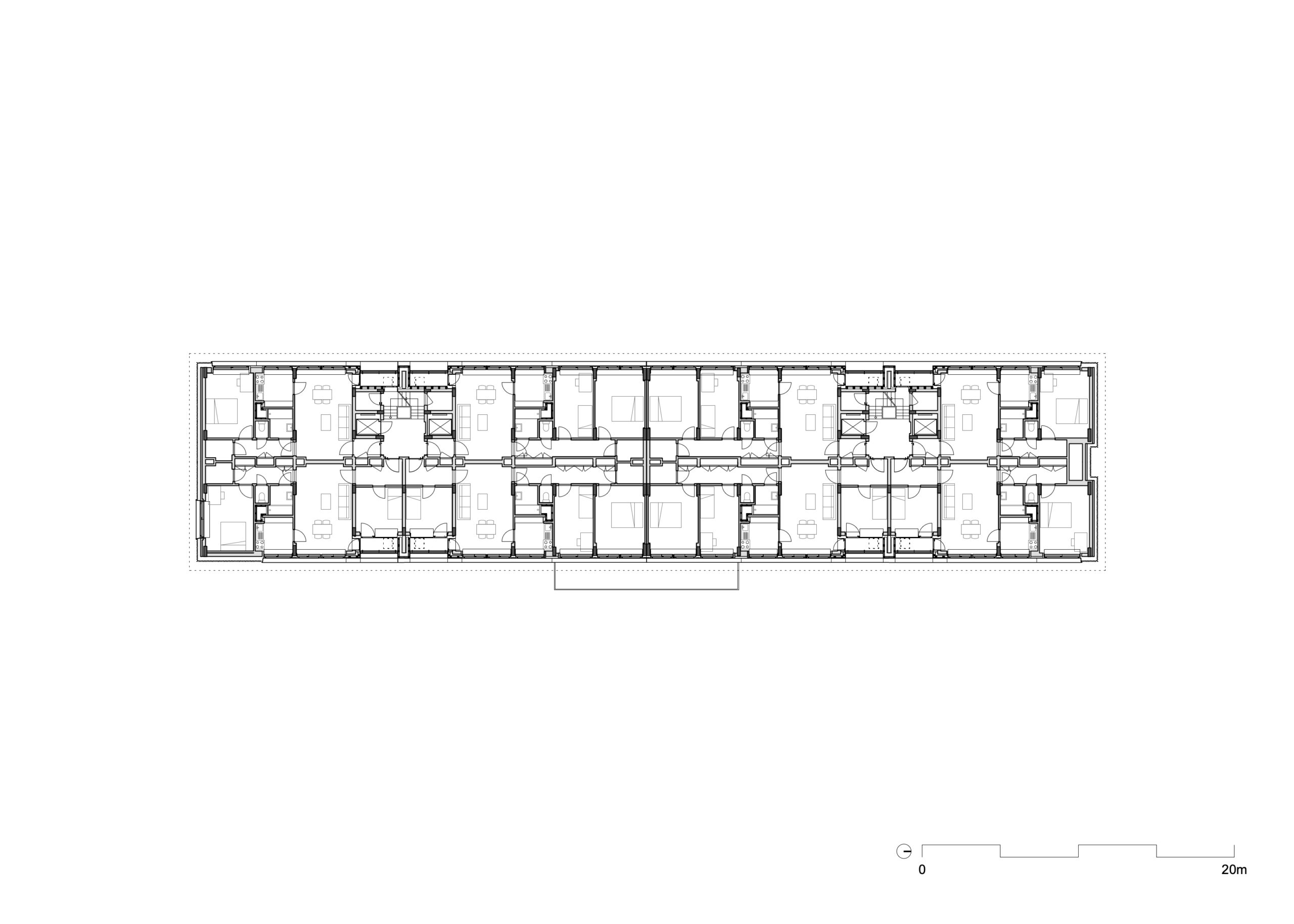
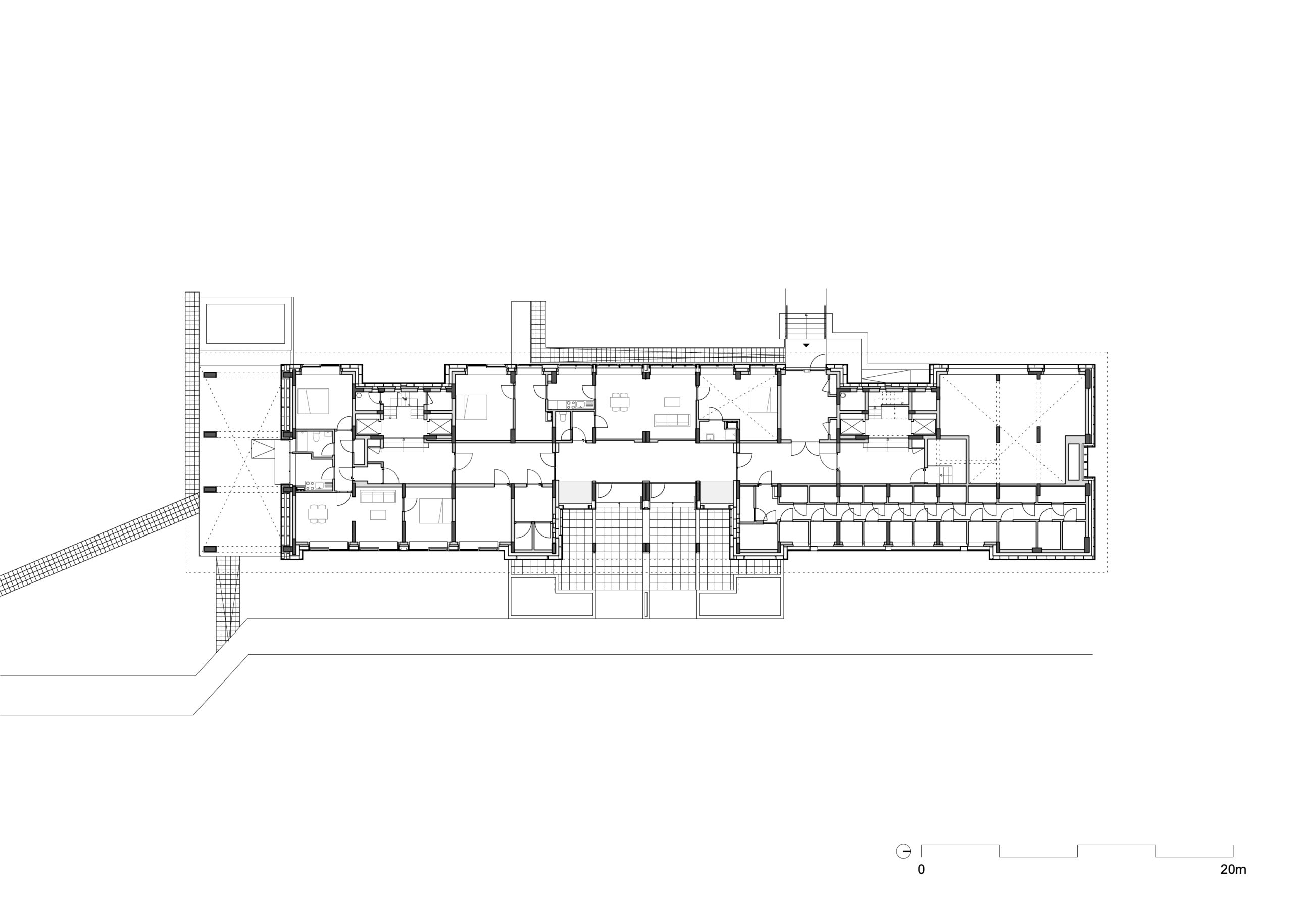
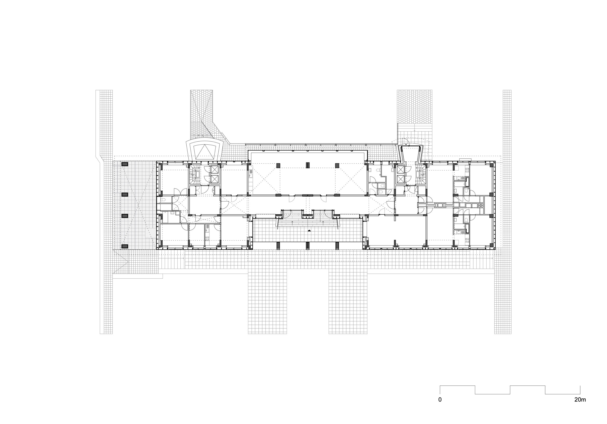
De twee gebouwen Florair 2 en 3 bevatten elk ongeveer negentig appartementen. Ze zijn georganiseerd zoals veel sociale woningbouwgebouwen in Brussel destijds waren ontworpen: rond twee trappenhuiskernen per gebouw, die samenkomen in een gemeenschappelijke entreehal. Elke trappenhuiskern geeft toegang tot vier appartementen per verdieping, georiënteerd aan één zijde respectievelijk met uitgebreide panoramische beglazing. Binnen de appartementen zijn de kamers bereikbaar via een gang die ook badkamers, toiletten en opslagruimtes verbindt.
De constructie bestaat uit een skelet van in situ betonnen steunen, balken en plafonds. Dit skelet is gevuld met gemetselde borstweringen waarop de ramen zijn gemonteerd. De balkons zijn ook omzoomd met bakstenen borstweringen. De buitenste bekleding voor het metselwerk bestaat uit prefab betonnen elementen, elk verankerd met twee stalen wapeningen in het metselwerk van de borstweringen. In tegenstelling tot het meer geïndustrialiseerde modernisme van de jaren 1960 en 1970, is het Florair-project technisch gezien voornamelijk een ambachtelijk gebouw met enkele industriële componenten.

De architectuur is ontworpen in de optimistische geest van de jaren 1950: ruime, natuurlijk samengestelde horizontale gevels met elegante stalen raamkozijnen, prefab betonnen delen, deels gekleurde tegels, een begane grond van Belgisch blauwe steen, en een symmetrisch samengestelde ingang, elk met een ruime luifel die doet denken aan Amerikaanse hotels uit die periode. Zelfs kunstwerken zijn geïntegreerd op de begane grond. Bovendien verschillen alle vier de gebouwen op subtiele wijze, zowel in hun gevelstructuur met verschillende uitstulpingen en terugtrekkingen, half-loggia-achtige balkons, enzovoort, als in hun materialen en kleuren.
Na meer dan zestig jaar waren de gebouwen toe aan renovatie. Sommige betonelementen waren losgeraakt, wat gevaarlijke situaties creëerde. Op het gebied van energie en akoestiek waren de gebouwen volledig onaanvaardbaar vanwege de niet-geïsoleerde borstweringen, maar vooral vanwege de stalen raamkozijnen met enkele ruiten.

Externe isolatie versus bestaande kwaliteiten
De door de opdrachtgever gevraagde renovatie was aanvankelijk gebaseerd op een upgrade van de niet-geïsoleerde gevels. De enkelglasramen moesten worden vervangen door nieuwe ramen met dubbele beglazing. Daarnaast moesten alle drinkwater- en afvoerleidingen, de ventilatie, de badkamers en een deel van de keukens vernieuwd worden. Dit alles moest grotendeels gebeuren in bewoonde staat, omdat het onmogelijk was voor de woningcorporatie om de appartementen leeg te maken en een groot aantal huurders te verhuizen.
Het uitgangspunt voor thermische isolatie was externe isolatie, aangezien interne isolatie vanwege de onbeheersbare thermische bruggen en de noodzaak om de bouwwerkzaamheden in de appartementen tot een absoluut minimum te beperken, niet haalbaar was.
Om de strategie voor het renovatieproject te bepalen, was eerst een grondige studie van de kwaliteiten van het bestaande gebouw nodig. De materialisatie van het bestaande complex gaf aanvankelijk het geheel een monolithisch uiterlijk. Het gebruik van verschillende materialen benadrukte echter bepaalde elementen, met name de balkons, de ingangen en de kunstwerken, waardoor de eenheid werd gevarieerd zonder deze tegen te spreken. De verfijnde behandeling van het beton, steen en keramische bekleding creëert een subtiele tweede lezing van het gebouw. Al deze kwaliteiten werden volledig ter discussie gesteld door de noodzakelijke externe isolatie.

Borstweringbanden
Vanwege de beschreven omstandigheden was het uitgangspunt voor het concept een herinterpretatie van de bestaande architectuur door middel van een nieuwe gebouwschil, een soort vertaling van de bestaande kwaliteiten in een nieuwe vorm die sterk gebaseerd was op de oude vorm. De behandeling van de ramen en de gesloten delen van de gevel tussen de ramen was beslissend.
Technisch gezien was er het probleem dat de metselwerk borstweringen van slechte kwaliteit waren volgens de huidige constructienormen. Ze waren niet voldoende verbonden om de veel zwaardere nieuwe ramen, de dynamische belastingen van het openen en sluiten van de ramen en de winddruk te ondersteunen. Er waren zelfs twijfels of de isolatie en zelfs lichte gevelbekleding konden worden bevestigd aan de borstweringen. Dit betekende dat de nieuwe ramen en nieuwe gevelbekleding niet op de borstweringen konden worden gemonteerd, maar in plaats daarvan direct aan de betonnen steunen en panelen van de verticale draagstructuur met een hulpconstructie moesten worden bevestigd.
Om deze redenen werd aanvankelijk voorgesteld dat de horizontale borstweringbanden tussen de ramen van prefab betonnen delen zouden worden gemaakt, die als balken tussen de ondersteunende kolommen zouden strekken en dienen om de ramen te ondersteunen en te beschermen tegen het weer. Toen deze oplossing na een eerste aanbesteding te duur bleek, besloot de opdrachtgever het project in een iets kostenefficiëntere variant uit te voeren met gevelbekleding van golfplaten. Echter, om de golfplaten en vooral de nieuwe ramen te kunnen bevestigen, moest een stalen constructie de overspanning tussen de ondersteunende kolommen overnemen. Het effect is een modernistische aanscherping van de bestaande architectuur: de horizontaliteit van de borstweringbanden wordt aanzienlijk versterkt door de vereenvoudiging van de gevel. De klassieke structuur met de uitstekende dakrand en het bewuste onderscheid tussen de begane grond en de kelder versterken ook dit effect. Florair 3 kreeg een grijs-brons kleurenschema, Florair 2 een donker bronzen.

Vergroving van de ramen en mozaïektegels
De ramen zijn het tweede element dat de architectuur beslissend bepaalt. De elegante stalen frames van de bestaande ramen waren alleen gevuld met enkel glas. De nieuwe ramen vereisen zware dubbele beglazing, wat profielen vereist die vier tot vijf keer zo breed zijn. Om deze reden werden de verdelingen van de ramen sterk verminderd om een harmonieuze verhouding tussen glasoppervlakken en profielen te waarborgen. Paradoxaal genoeg moest de gevel sterk worden vereenvoudigd om een zekere elegantie te bereiken.
De vensterbanken zijn nu meer geaccentueerd dan oorspronkelijk het geval was dankzij de nieuwe afgeboorde elementen in plaatwerk. Deze maatregel dient als een zowel technisch als architectonisch bemiddelend element. Technisch gezien is een strategie om de bouwtoleranties op te vangen essentieel vanwege de vele uitstulpingen en terugtrekkingen binnen de gevelgeometrie. Architectonisch gezien maken de vensterbanken de openingen iets groter, waardoor het gebouw een beetje meer visuele openheid en ruimtelijkheid krijgt.
De begane grond in Belgisch blauwe steen is ook geïsoleerd. Om het karakter te vertalen naar een vergelijkbare vorm, werd een isolatiesysteem met gelijmde mozaïektegels gebruikt. Bij Florair 2 zijn ze donkerbruin, bij Florair 3 middelbruin. De blauwe steen werd behouden op de vloeren in het centrale entreegebied.
Het bestaande kunstwerk in Florair 3 werd geïntegreerd in het nieuwe uiterlijk. Het werd uitgesloten van isolatie en kreeg een glazen vitrine met indirecte verlichting.

Duurzaamheid door vernietiging
De confrontatie van de hoogwaardige bestaande architectuur met de onvermijdelijke externe isolatie toont het fundamentele dilemma van het project: als architect is het in het geval van een architectonisch sterk bestaand project eigenlijk het overtuigendst om een meer terughoudende en respectvolle houding aan te nemen ten opzichte van de gebouwen. Door de onvermijdelijke externe isolatie hield de taak uiteindelijk de vernietiging van de bestaande architectuur in. Originele sculpturaliteit, ornamentatie en dunne raamprofielen waren onhoudbaar onder de omstandigheden. Er moest als het ware een nieuwe architectuur voor de isolatie worden gecreëerd, die de geest van het historische gebouw in een nieuw ontwerp vertaalt en zo de geest van moderniteit naar de 21e eeuw brengt. De klassieke structuur en horizontaliteit, de subtiele sculpturale aard van de gevel door verschillende kleine uitstulpingen en terugtrekkingen, en de panoramische ramen moesten op een nieuwe manier worden gecreëerd.
De massieve stenen architectuur werd vervangen door een gelaagde structuur en een buitenhuid van plaatwerk van slechts 0,75 millimeter dik. Na zestig jaar intensief gebruik had het slechts iets meer budget nodig om het project nog solider te kunnen realiseren. Het project is echter energetisch geoptimaliseerd voor de woningcorporatie en bewoners, wat een zeer positief effect heeft op het leven in de huizen.
















































































