Toelichting Orange Architects | Beeld Sebastian van Damme, Orange Architects
Waalfront ligt ten westen van de middeleeuwse stad Nijmegen. De plek is bijzonder vanwege zijn vele historische tijdlagen. Rond 200 n.C. stond hier de eerste Romeinse nederzetting binnen de huidige landsgrenzen, het Ulpia Noviomagnus Batavorum. In de vroeg 19e eeuw werd op deze locatie het verdedigingsbolwerk Fort Krayenhoff gebouwd. In de vroege 20e eeuw neemt de industrie de plek over met onder andere de Honig- en Nyma fabriek. In het nieuwe masterplan van Ontwikkelingsbedrijf Waalfront, een samenwerking tussen BPD en de gemeente Nijmegen, worden de tijdslagen vertegenwoordigd in een residentiële stadsuitbreiding.

Park Fort Krayenhoff omvat drie urban villa’s gelegen in een publiek park aan de Waal. In nauwe samenwerking met landschapsarchitect bureau Oslo zijn door Orange Architects 42 appartementen ontworpen, verdeeld over de drie paviljoens in het groen. De paviljoens zijn identiek maar ten opzichte van elkaar gedraaid en gespiegeld. Als onderdeel van het park werd de historische fortwand, aan de oostzijde van het park, gereconstrueerd op de oorspronkelijk positie, met een groene gracht die dienst doet als overloopgebied.
De paviljoens liggen als zwerfkeien in een losse setting langs en aan deze fortwand, waarbij zij tezamen een ensemble vormen waarin doorzichten, bezonning en borging van privacy optimaal zijn verwerkt.
Diamantvorm
De vormgeving van de paviljoens is geïnspireerd op de diamantvorm van de lunetten van het verdedigingsbolwerk. In het, naar de Waal toe, oplopende park is een half ondergrondse parkeergarage geïntegreerd die de paviljoens verbindt. Hierdoor liggen de paviljoens iets opgetild ten opzichte van het park waardoor ook op de begane grond privacy wordt gegenereerd. De gebouwentrees bevinden zich op begane grond niveau en zijn bereikbaar vanuit het park en via bruggen over de groene gracht aan de oostzijde.
De paviljoens tellen vijf bouwlagen boven maaiveld, die op de bovenste twee verdiepingen iets terugtrappen. Een compacte kern geeft toegang aan drie appartementen per laag en twee penthouses op de bovenste verdieping. De daken zijn voorzien van groen en pv-panelen. Het paviljoenachtige karakter komt tot uitdrukking in de losse setting van de drie gebouwen in het groen en in het thema van de tweede huid, die als een fragiele voile, in de vorm van dunne kolommen, de verschijningsvorm bepaalt. Om de lichtheid van de paviljoens verder te accentueren sluit het park iets lager aan zodat de vloerbanden ter hoogte van de begane grond net iets boven het maaiveld zweven.

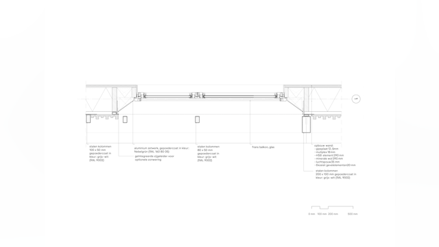
Ter plaatse van de inpandige buitenruimtes vouwt de thermische schil naar binnen en blijft de buitenhuid de contour van het gebouw volgen. Het ritme van de gevelkolommen verdicht en verdunt en is gekoppeld aan de achtergelegen dichte geveldelen, de te openen ramen en de inpandige balkons. De thermische schil is bekleed met steenachtige verdiepingshoge panelen in een lichte groen tint met een subtiele verticale profilering die in hetzelfde ritme meeloopt met de buitenhuid. De ontwikkeling van het park en de paviljoens vormt een belangrijke schakel in de ontwikkeling van het Waalfront Masterplan, en een nieuwe plek aan de Waal.




















































