Toelichting Studioninedots | Foto's Peter Tijhuis
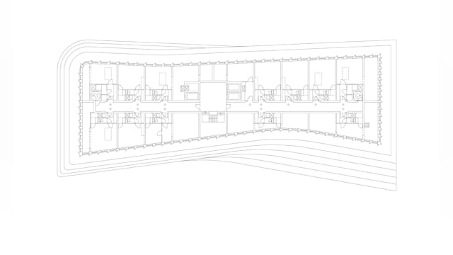
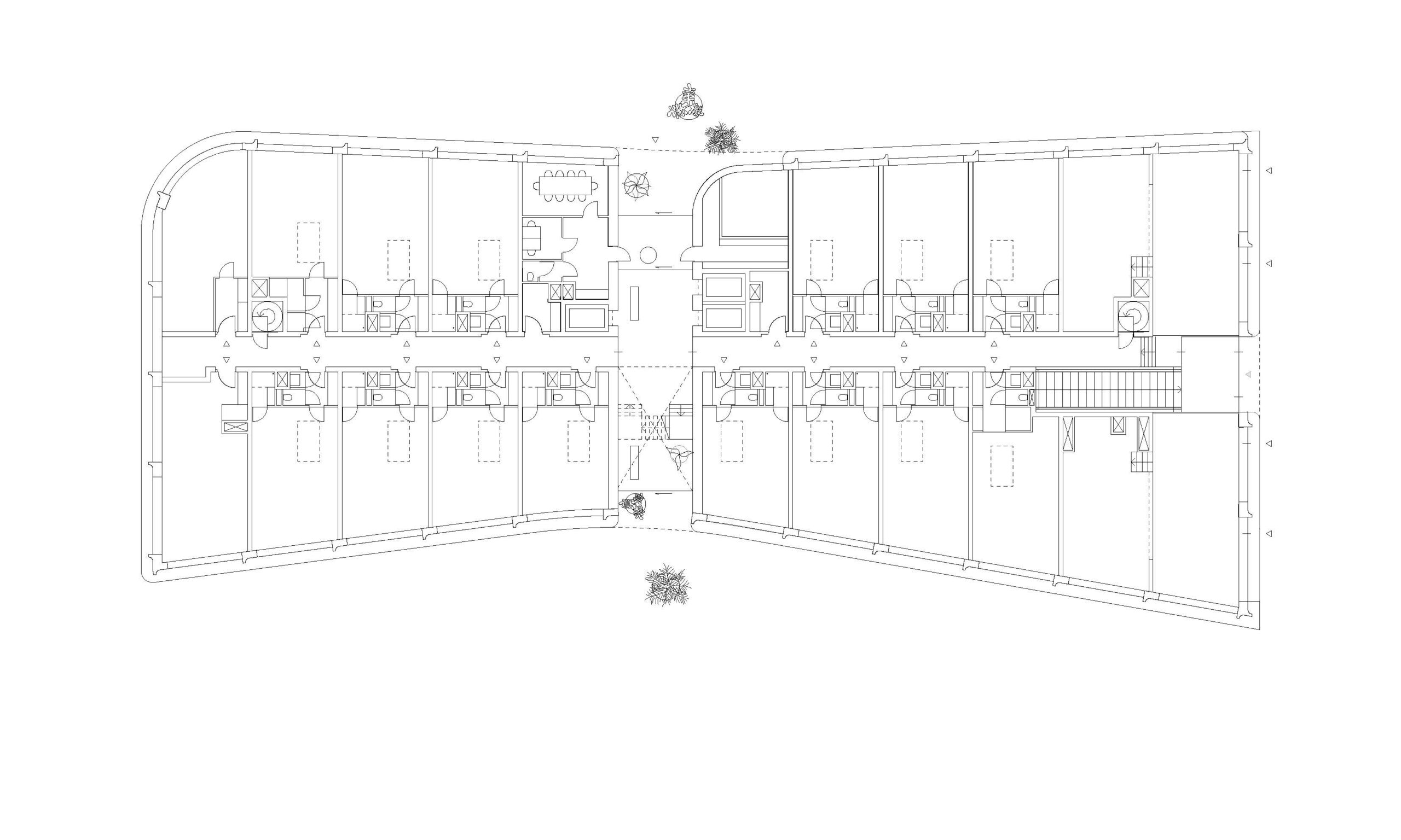
Binnen het rechtlijnige stedenbouwkundige plan voor Overhoeks – dat met zijn ‘campusachtige’ setting nogal on-Amsterdams is – hebben we een eigen interpretatie gegeven aan de gestelde regels. In het plan zijn voor de gebouwen setbacks gespecificeerd om de volumes vanaf het straatniveau te minimaliseren. We hebben van deze conditie gebruik gemaakt door het hele volume van De Jakoba naar binnen te buigen, waardoor het gebouw niet alleen op de bovenste verdiepingen, maar over de volledige hoogte en lengte verspringt en geleidelijk naar boven afbuigt. De vier verschillende gevels en de golvende balkons die zo ontstaan creëren rondom een herkenbaar gezicht in het gebied.
Vanwege de sculpturale vorm van het gebouw heeft elk van de 135 studiowoningen een unieke indeling. In het hart, het smalste deel van het gebouw, ligt de entreepassage die de open gemeenschappelijke tuin met de straat verbindt. Doordat het gebouw naar binnen buigt, omarmt het de tuin en creëert het een gevoel van beschutting. De tuin en de hoge multifunctionele ruimtes op de begane grond langs de Docklandsweg brengen nieuwe levendigheid op straatniveau.
We hebben de entree ontworpen om een gevoel van aankomst te creëren. De entree strekt zich uit als een glazen vide over de volle hoogte van het gebouw en voorziet vanaf alle verdiepingen een weids uitzicht op de gemeenschappelijke tuin en de nieuwe stadswijk aan het IJ.
Door in te zetten op prefab gevelelementen is De Jakoba in een zeer korte tijd gerealiseerd, waarmee niet alleen de bouwkosten sterk konden worden verlaagd, maar bewoners ook veel eerder hun woningen konden intrekken.
De heldere architectuur wordt versterkt door de toepassing van één enkel materiaal: lichtgroen beton. Het lijnenspel tussen de horizontale banden en penanten van het zachtgroene materiaal onderscheidt De Jakoba verder van de omliggende gebouwen. Doordat de smalle uiteindes van de groene betonpanelen in één beweging konden worden gepolijst, hebben we op een eenvoudige manier de gevels een aantrekkelijke detaillering kunnen geven. De materialisatie wordt verrijkt met kozijnen en balustrades met een poedercoating in zilvergoud, die een warme gloed toevoegen. De subtiel gebogen pijlers creëren een wisselend spel van licht en schaduw gedurende de dag.

Over kwantiteit en kwaliteit
Amsterdam breidt snel uit. De hoeveelheid woningen die de komende decennia wordt verwacht is enorm: tot 2025 52.500. Daarom is verdichting de belangrijkste strategie binnen de stad, waarbij Amsterdam-Noord voorop loopt. Vooral door de toename van eenpersoonshuishoudens wordt vooral ingezet op het aanbieden van studiowoningen.
Compact wonen is alleen comfortabel als er uitgebreide voorzieningen zijn en als deze gedeeld kunnen worden. Wij geloven dat deze gemeenschappelijke ruimtes nodig zijn om sociale interactie aan te moedigen. Met de toenemende woningdichtheid biedt dit nieuwe mogelijkheden voor mensen om gemeenschappelijke ruimte te delen – in elk segment. Ook, zo niet vooral, voor sociale woningbouw hebben opdrachtgevers en architecten de verantwoordelijkheid om een sociale opdracht om te vormen tot een karaktervolle plek die een positieve bijdrage levert aan de stad.



































