Toelichting Fokkema & Partners | Beeld Stijn Poelstra
Eind 2019 besloot Upfield om zijn Research & Development-kantoor te verplaatsen van Rotterdam naar de Universiteitscampus van Wageningen (WUR), ook wel bekend als Food Valley, waar het bedrijf samenwerking zoekt met start-ups en de universiteit. Fokkema & Partners werd gevraagd om op een centraal gelegen L-vormig kavel een gebouw te ontwerpen met 110 kantoorwerkplekken, laboratoria, een proeffabriek, proefkeukens en een bedrijfsrestaurant. Projectarchitect Twan Steeghs: ‘Upfield is het eerste complete gebouwontwerp waarin we onze duurzaamheidsambities van de gevel tot en met het meubilair hebben kunnen realiseren. Een maatpak waarin interieur en exterieur naadloos samengaan, bedacht vanuit de beleving van de gebruiker en de ervaring van de groene campus. Dat heeft geleid tot een vriendelijke, groene architectuur, die zich open opstelt naar zijn omgeving. We hebben de producten en productieprocessen letterlijk in de etalage gezet.’

Heldere organisatie
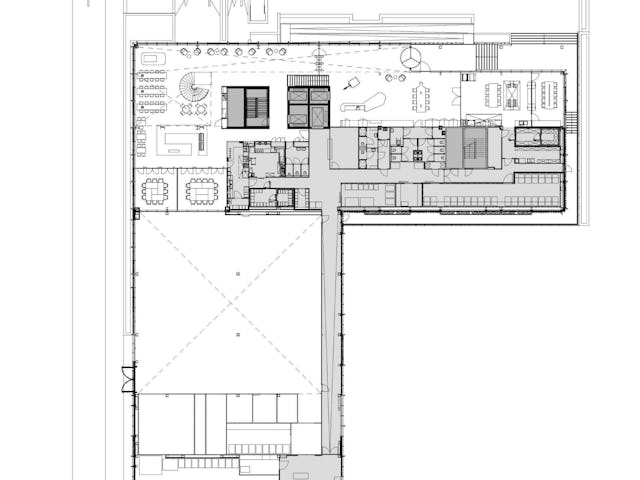
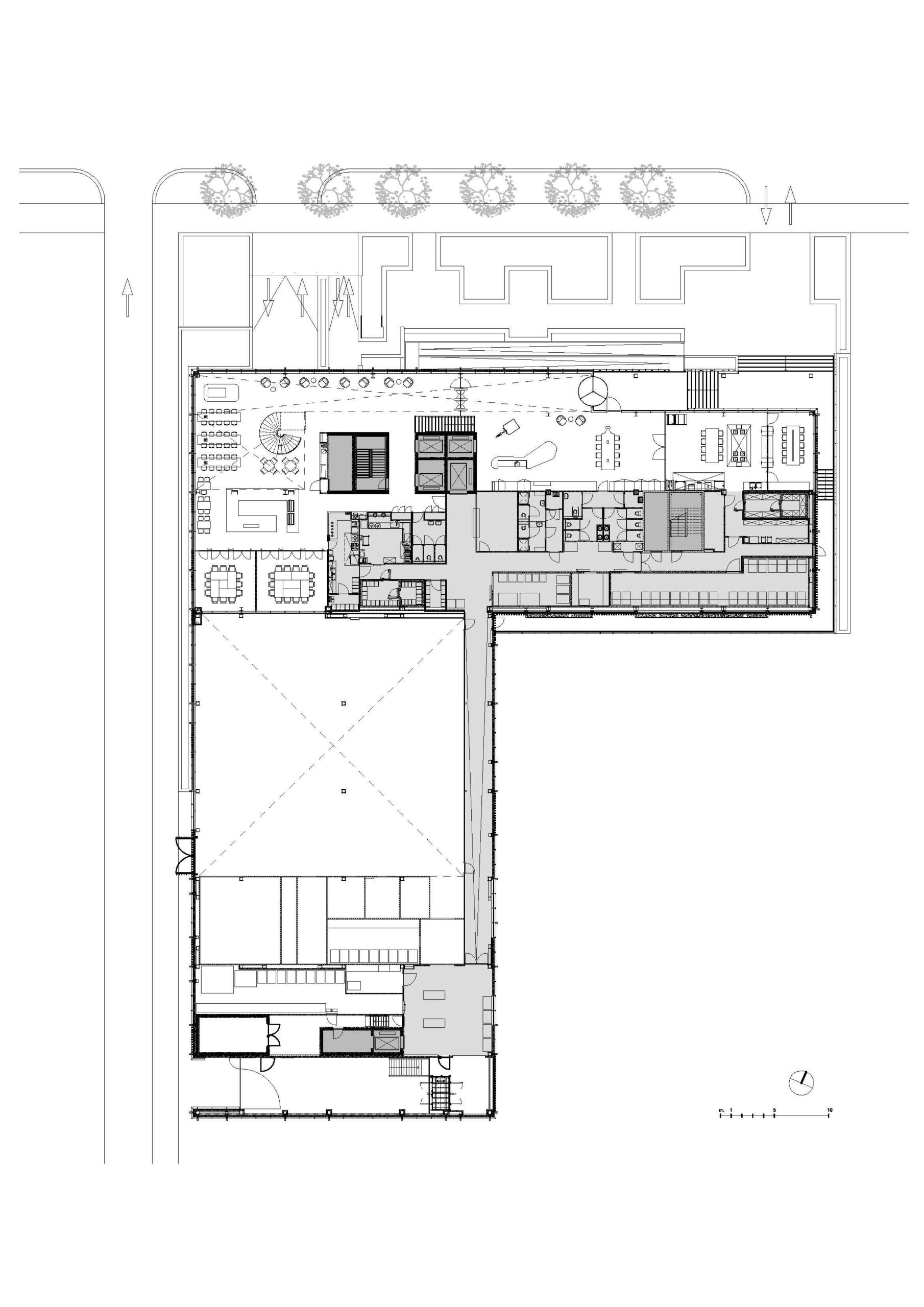
Het gebouw, opgebouwd uit een staalconstructie en prefab betonnen vloeren, is rationeel opgezet. In het glazen bouwdeel aan de voorzijde bevinden zich de kantoorfuncties, haaks daarop staat de proeffabriek met expeditie, in de oksel van het gebouw vind je de liften en trappen, half verdiept eronder ligt de parkeergarage. De installaties zijn weggewerkt in de – teruggelegen – bovenste verdieping. Het geheel is omkleed met een aluminium gevel, afgewerkt met een houten raster waarlangs planten groeien. Bezoekers komen vanaf de campus via een weelderig begroeid voorplein over een brede trap met hellingbaan binnen. De dubbelhoge entreehal met houten ontvangstbalie biedt direct doorzicht richting de proefkeuken, het bedrijfsrestaurant en de bovengelegen kantoren, met weids uitzicht over de campus. Grote tafels in de vorm van snijplanken verwijzen met een knipoog naar de plantaardige boter die Upfield ontwikkelt.
Ontmoeten en bewegen
Door de heldere looplijnen, waarbij trappen consequent in het zicht zijn geplaatst, vind je als vanzelf je weg door het gebouw. Door de trappen te koppelen aan collectieve functies zoals pantry’s en vergaderplekken, krijgen verkeersruimtes ook een sociale functie, en is een werkomgeving gecreëerd die uitnodigt tot bewegen en ontmoeten. Vanuit de kantoren en laboratoria heb je op verschillende plekken doorzicht richting de fabriek en vice versa. Steeghs: ‘Door het onderlinge contact ervaar je het proces van heen en weer denken, proeven, aanpassen, onderzoeken; dat je samen aan de producten van de toekomst werkt.’ De kantoorvloeren zijn flexibel indeelbaar, wat bijdraagt aan de duurzaamheid van het gebouw, dat een BREEAM Outstanding certificering heeft.

Natuurlijke expressie
‘Hoe geef je uitdrukking aan een duurzame manier van bouwen, zonder daarbij te vervallen in dogmatisch vorm- en materiaalgebruik? Die vraag was een belangrijk vertrekpunt voor het architectonisch ontwerp’, vertelt Diederik Fokkema. ‘Uit onderzoek naar visuele waarneming blijkt dat het menselijk oog ingesteld is op het waarnemen van totaalvormen, en daarna pas inzoomt op details. Als je een foto bekijkt van gebouwen in Hong Kong, ingezoomd op de eindeloze repetitie van balkons, blijkt het oog niet in staat om met die details een totaalbeeld samen te stellen. Dat geeft stress. Maar als we een beeld van aan bladerdek zien, herkennen we direct de boom; bladeren en boom vormen een natuurlijk geheel, zo’n beeld geeft rust. Dat is de natuurlijke expressie waarnaar we hebben gezocht bij dit project.’
Groener groeien
Het houten raster dat rondom het gebouw is ontworpen, zorgt voor een samenhangend, alzijdig gevelbeeld dat tegelijk gevarieerd oogt door de verschillende ‘vertakkingen’. Op gezette plaatsen verspringt het raster, waardoor dubbelhoge en -brede raampartijen ontstaan, met bijzondere doorzichten. In het raster zijn beweegbare lamellen-frames geplaatst, die de gevel textuur geven, en schaduw bieden. Vanaf het balkon op de tweede verdieping groeien hangplanten als een waterval naar beneden. Op de gesloten geveldelen zijn stalen roosters aangebracht waarlangs klimplanten omhoog groeien. Met de seizoenen zal het gebouw van kleur veranderen, met de jaren zal het steeds groener ogen; een aanlokkelijk toekomstperspectief!

































