Toelichting Steenhuis Bukman Architecten | Beeld Jannes Linders
Voor dit winkelgebied en de omliggende woonomgeving, heeft de gemeente Barendrecht in 2015 een centrumplan (inclusief beeldkwaliteitsplan) ontwikkeld, waarvan het bouwplan aan de Mr. Lohmanstraat onderdeel is. Dit centrumplan voorziet o.a. in een forse uitbreiding van het aantal parkeerplaatsen aan het Achterom (onderaan de bovengenoemde dijk) in een brede openbare zone tussen winkelgebied en de vijftigerjarenbuurt De Driehoek.
Deze vroeg-naoorlogse buurt, van architect en stedenbouwkundige Willem Wissing, is een kleinschalige wijk met eengezinswoningen in korte blokken met licht hellende daken in een losse open verkaveling; kenmerkend voor die tijd.
Om de ingrepen uit het centrumplan mogelijk te maken moest een aantal eengezinswoningen van corporatie Patrimonium Barendrecht afgebroken worden. De nieuwbouw moest vervolgens de stedenbouwkundige structuur van de wijk weer herstellen, en tegelijk een nieuw gevelfront vormen aan de parkeerzone. Daarbij was het van belang dat deze nieuwe openbare ruimte beslist geen anonieme achterkantsfeer zou oproepen, maar een volwaardige en aantrekkelijke entree van het centrumgebied zou zijn.

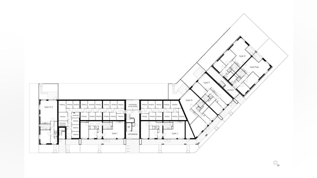
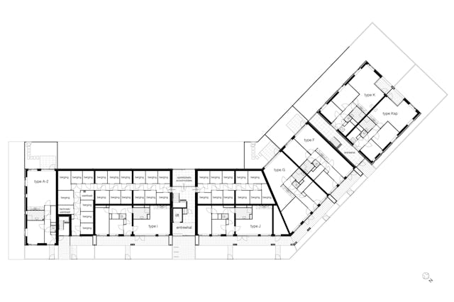
Ons plan is in opdracht van Patrimonium gemaakt en bestaat uit drie appartementengebouwen met in totaal 93 sociale huurwoningen. Vanwege de doelgroep (levensloopbestendige woningen) stond de gebouwtypologie met galerij-ontsluiting daarbij vast. Vanzelfsprekend dat deze galerijen aan de parkeerzone zouden liggen; de minst aantrekkelijke kant wat betreft uitzicht en zonlicht. In het ontwerp wilden wij voorkomen dat door de grote gevellengte van bijna 300 meter, er aan de straatzijde (parkeerzone) een anoniem en monotoon beeld zou ontstaan. Dit was een cruciaal uitgangspunt voor het ontwerp.
Door het hoofdtrappenhuis centraal te positioneren, is ieder blok visueel opgedeeld in kleinere bouwdelen en is de galerij beperkt tot slechts enkele voordeuren per galerij. In het gebruik is anonimiteit daardoor geen issue meer want iedere woning heeft maar enkele buren. De galerijen lopen enkel voor de tussenwoningen langs, zodat de galerijlengte minimaal is en de kopappartementen tevens zicht op straat hebben. De horizontale belijning van de galerijen is onderbroken door verticale baksteenpenanten, afgewisseld met kleinere metselwerkkolommen in verticaal tegelverband, en grote betonkaders met matglas tegenover elke voordeur.

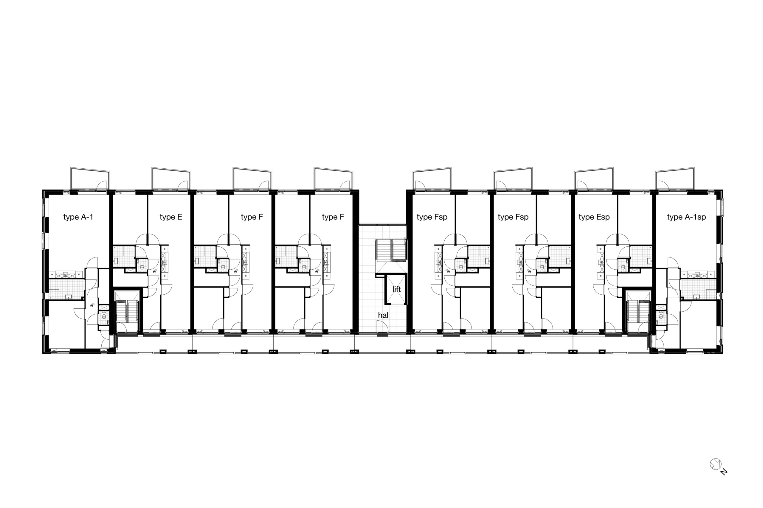
Het metselwerk is in hoogwaardige wasserstrichsteen en alle prefab beton is met witte cement uitgevoerd. De woningen zijn royaal bemeten in oppervlak, met veel glas en grote balkons op het zuidwesten.
De nieuwbouw is deels vierlaags en drielaags bij de aansluiting op de 2e Barendrechtseweg, passend bij de schaal van de bestaande vijftigerjaren tweekappers. Op de begane grond liggen steeds bijzondere woningtypes, die direct vanaf de straat ontsloten worden. Het beeld van de bovenste verdieping van de vierlaagse blokken is verbijzonderd met een metselwerk borstwering waardoor het geheel lager oogt. De tussengelegen lagen, met de aparte gevelritmiek, geven het geheel een mooie geleding, passend in de schaal van het dorpse. De toepassing van een schuin pannendak is daarbij essentieel en maken het buurtje De Driehoek weer als geheel herkenbaar.










































