Toelichting Studioninedots | Beeld Sebastian van Damme
'De verschillende groene ruimtes verleiden de bewoners om hun focus van binnen naar buiten te verschuiven, met als doel een sterke binding met de flora en fauna van de stad, en met andere bewoners op te wekken', zegt Jurjen van der Horst, associate bij Studioninedots.
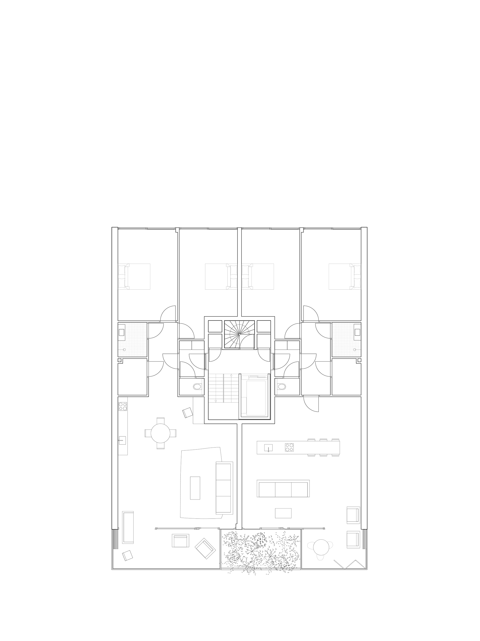
We hebbende buitenkamers van YCON zo ontworpen dat ze functioneren als volwaardige leefruimtes, onafhankelijk van het veranderende ritme van de dag en de seizoenen. Verdiepinghoge, glazen vouwwanden kunnen de kamers volledig sluiten of openen, waardoor de woonruimte op elk moment kan worden uitgebreid.

Elke buitenkamer grenst aan een weelderige gezamenlijke tuin, die op elke verdieping van positie verandert. De tuinen dragen bij aan verkoeling en luchtzuivering en trekken insecten en vlinders aan. Het groen en de focus op comfort maken van de buitenkamers de favoriete plek in huis.
De constructie van het gebouw is gemaakt met geprefabriceerde, demontabele betonelementen, zodat deze eventueel kan worden gedemonteerd en hergebruikt in de toekomst. Om de geveltuinen te ondersteunen, integreert de constructie een dikke, verdiepte laag grond om verschillende soorten inheemse planten, struiken, bloemen en groenten te kunnen kweken. Via het dak wordt regenwater opgevangen, opgeslagen en hergebruikt voor de irrigatie van tuinen, wat de druk van overtollig regenwater op het rioleringssysteem vermindert.
Het vijf verdiepingen hoge gebouw biedt ruimte aan twaalf appartementen en een gemeenschappelijke groene binnenplaats met fietsenstalling op de begane grond. Door de ligging aan het water en de zonnige oriëntatie zal de groene uitstraling van YCON nog jaren lang weelderiger worden. De dynamische gevel en de materialen die aansluiten bij de industriële context van het gebied maken YCON tot een architectonisch icoon in Amsterdam Buiksloterham.










































