Toelichting Studioninedots | Beeld Sebastian van Damme
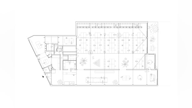
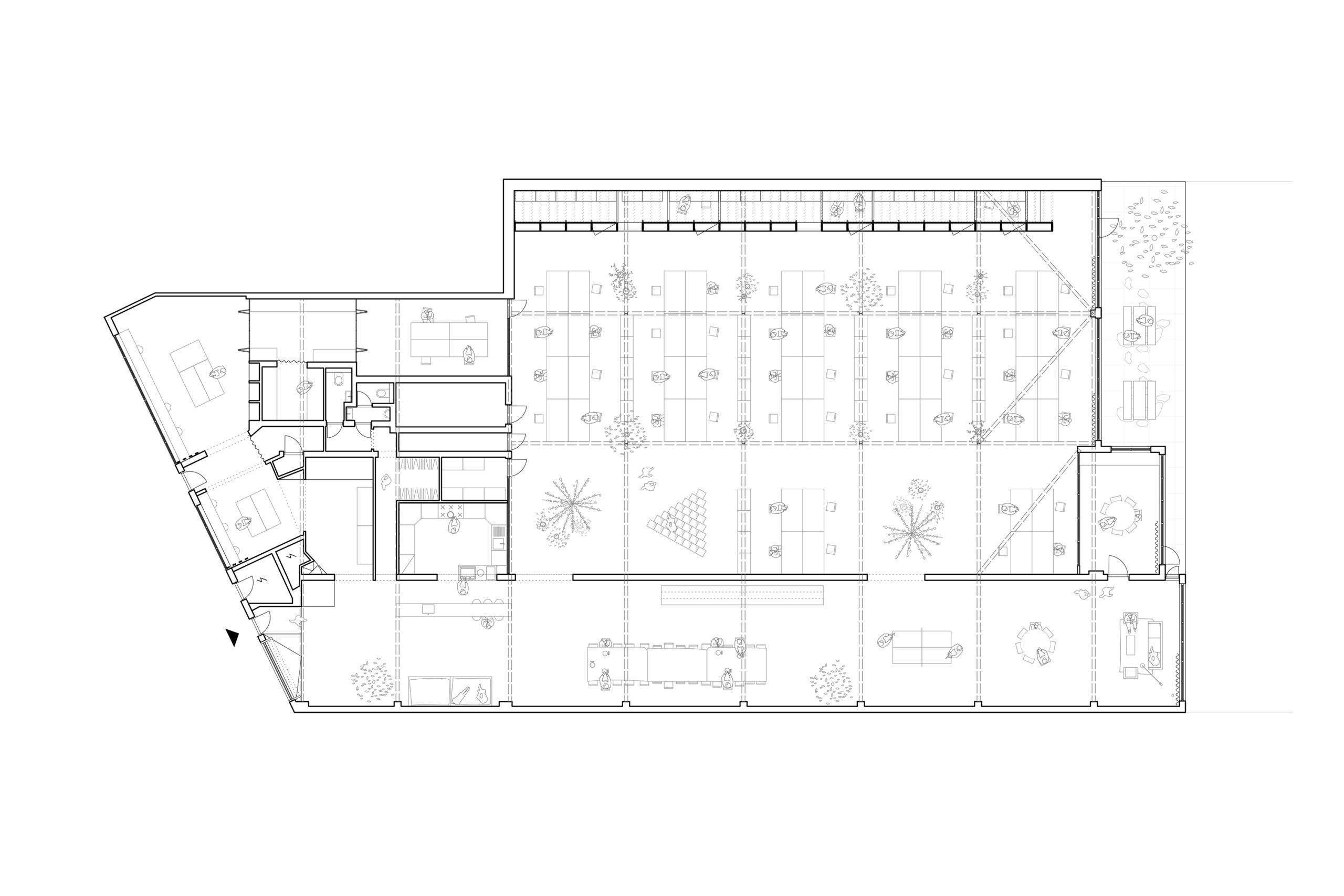
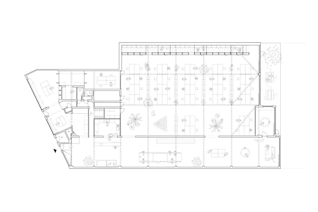
Studioninedots wilde de rauwheid van de oorspronkelijke plek behouden en een sfeer creëren die de creativiteit van het gebouw aanwakkert. Overdag werken alle verschillende bedrijven naast elkaar in de open ruimte aan de oostkant van het gebouw. Om de bestaande samenwerkingen en uitwisseling tussen de bedrijven maximaal te ondersteunen, is de werkruimte transparant en eenduidig vormgegeven.

De lange hal langs de werkplekken is de Free Space: een uitgestrekte ruimte die volledig vrij is in vorm, functie en moment van gebruik. De verwonderende ruimte stimuleerteen scala van culturele evenementen en exposities, materiaaltesten en clubavonden. Momenteel is door de volledige ruimte een lichtinstallatie opgezet, ontwikkeld in samenwerking met Synthetic State. Aan de straatkant ligt de makerspace, die door zijn hoge ramen fungeert als de fysieke etalage van Karper K.

Om de eenheid van de plek en de gebruikers te benadrukken en een ruimte te maken die continu in functie kan veranderen, zijn alle wanden, kasten en zelfs relicten één egale, zachtgrijze kleur uitgevoerd. Een centraal element is de doorlopende kast aan de zijkant van de werkruimte, die plek biedt voor fysieke samples, maquettes en intieme overlegruimtes. Kleurrijke meubels en zitelementen versterken de identiteit van de plek. Door de sheddaken wordt de gehele werkvloer overdag overladen met indirect zonlicht. Met PV-panelen op het dak, twee luchtwarmtepompinstallaties en vloerverwarming en -koeling is het gebouw duurzaam herontwikkeld.





















