Toelichting Studioninedots | Beeld Maarten Willemstein
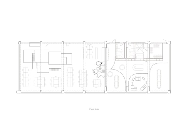
Sinds de oplevering in 2021 kenmerkt Westbeat zich door de betonnen boogconstructies in de plint. Tussen de bogen ontstaan spannende ruimtes die door een verscheidenheid aan gebruikers en voor allerlei doeleindes kunnen worden ingezet. In opdracht van Gerimedica heeft Studioninedots een kantoorconcept bedacht met drie ruimtelijke elementen die mensen verbinden en nieuwe impulsen geven. 'Wet Beast' is een omgeving die creativiteit en gemeenschapszin stimuleert.

Als ogenschijnlijk vreemde objecten in een goed georganiseerd werklandschap van tafels en stoelen zijn er drie ‘meubelstukken’ toegevoegd, die een eigen interpretatie uitlokken. Wet Beast faciliteert onderdak, zitgelegenheid, ontmoetingsruimte, plek voor lezingen, evenementen, spel, ontspanning, contemplatie en meer. De vormgeving van deze meubels staat volledig los van de architectuur en de vrije interpretatie in functie uit zich in het diverse palet van kleuren, vormen en materialen in het geheel. De meubelstukken zijn zo gemaakt dat ze tijdelijk of permanent kunnen zijn in hun gebruik en blijvend in vormgebruik en functie kunnen veranderen.

Naast vergaderen kan van alles in 'The Beast'. Trappen, afwisselende vaste elementen en doorgangen verleiden tot een eigen invulling of gebruik. Grote glazen wanden zorgen voor de interactie tussen de beschutte kern en de ruimte rondom. 'Jungle' is de verbindende trap tussen de twee niveaus. De treden fungeren bovendien als podium voor een presentatie of juist als plek om even te ontspannen. De trap ontleent zijn naam aan de organische vormen en de geïntegreerde beplanting.
'Town Hall' is gemaakt met vriendelijke houten zitelementen en lichte gordijnen, een intieme plek die half schuilgaat achter de gordijnen, of juist een voortzetting van de open ruimte.




























