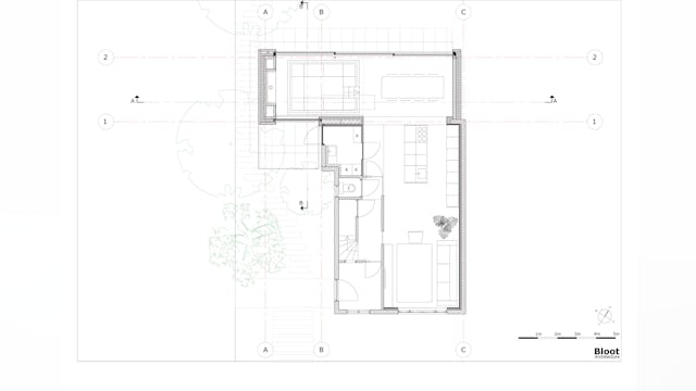
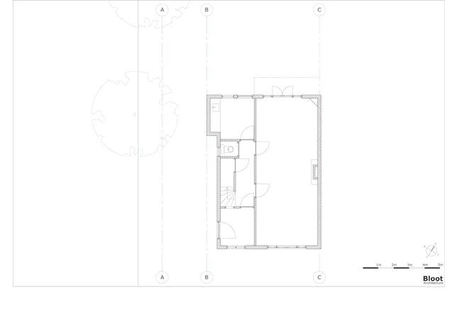
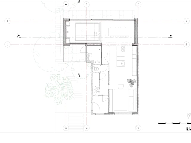
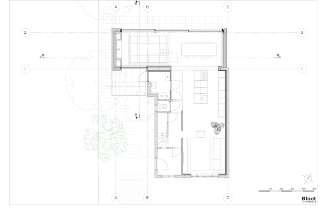
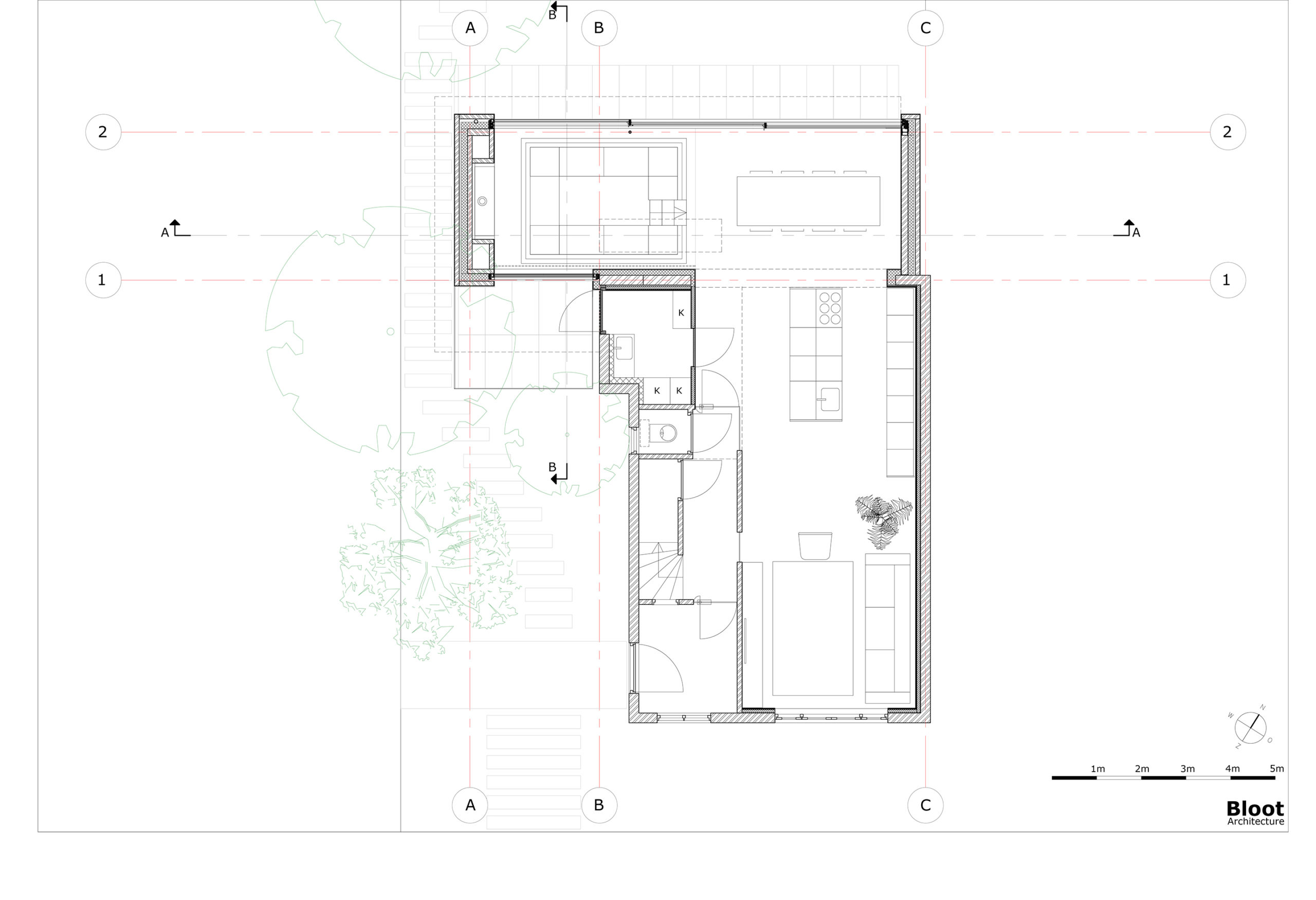
Toelichting Bloot Architecture
De opdrachtgevers vroegen om meer ruimte, een open keuken en een directere relatie naar de tuin. In het ontwerpproces kwam naar voren dat er ruimte genoeg was om een tweede zitplaats op de begane grond te creëren als de uitbreiding voorbij de breedte van het huis zou worden getrokken. Door de ontwerper is daar een plek gecreëerd waar geen televisie is, waar je op een ander niveau kan leven en van het buitenleven kan genieten. Een zitplaats verzonken in de grond.

De zitkuil vormt een speelse plek om de open haard om met elkaar te kunnen verblijven. Op ooghoogte vanuit de zitkuil gezien, is er aan de straatkant een verticaal schuivende pui. Door deze open te schuiven (elektrisch) evenals de grote schuifpui aan de achterzijde, waan je je als het ware buiten in een zitkuil, aan een haard en onder een afdak.
Het lage raam geeft ook de mogelijkheid voor kinderen om daar lekker te kunnen spelen rond de zitkuil. Doordat de zitkuil vrij in de ruimte naast het huis ligt, is er nu naast een directe relatie met de tuin ook een directe relatie naar de straat, wat weer een nieuwe dynamiek voor het gebruik van het huis oplevert.

De haard zit in een solide blok die samen met een dikke wand aan de andere zijde en een wand parallel aan de zitkuil het dak draagt. Deze drie elementen zijn uitgevoerd in betonstuc. Op die manier zijn het oude huis en de nieuwe interventie aparte entiteiten.
De grote glasvlakken vormen een scherp contrast met het bakstenen huis. De materialisatie van de dakrand en het plafond van de uitbreiding zoeken in dit contrast juist weer de aansluiting met de bestaande situatie. Het Cortenstaal en de houten latten geven het ontwerp een warme sfeer die past bij het bruin-rode bakstenen huis.



































