Toelichting Marc Koehler Architects
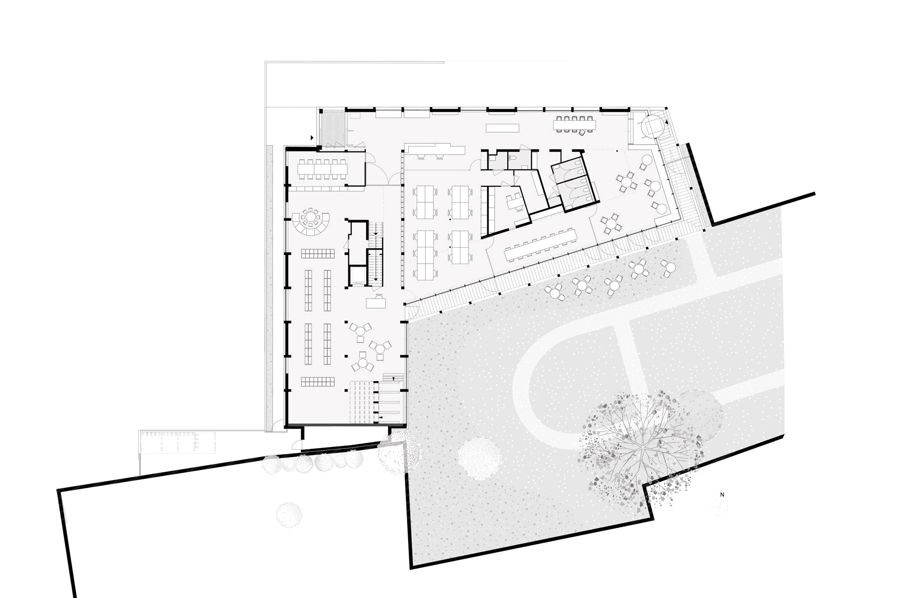
De nieuwe bibliotheek is het culturele hart van Edegem en vormt een ruimtelijke link tussen het stadsplein en het naastgelegen sportcomplex. Het gebouw versterkt de sociale cohesie in het historische dorp. Twee paviljoenachtige houten volumes zijn zorgvuldig
gepositioneerd in een L-vorm en scheiden de parkeerplaats van de historische tuin van het monumentale Huis Hellemans. Deze tuin functioneert nu als een rustige plek voor lezen en reflectie. Het gebouw verenigt een aantal functies die verspreid lagen in de gemeente: de bibliotheek, Huis Hellemans en enkele administratieve diensten.

Het gebouw biedt bibliotheekruimtes om gedrukte en digitale media te lezen, een infobalie, flexibele kantoorruimtes voor verschillende maatschappelijke organisaties en een boekencafé waar je op je laptop kunt werken. Ook zijn er cursus-, workshop- en vergaderruimten. Het gebouw speelt in op de behoeften van lokale verenigingen en kunstenaars kunnen er hun werk tentoonstellen. Het gebouw beschikt over een grote trap die fungeert als een podium met uitzicht op de tuin. En zo is de bibliotheek meer dan een plek voor boeken. Het is een plek om te ontmoeten, te leren, te ontspannen en om geïnspireerd te raken.
De nieuwe bibliotheek is gelegen naast het bestaande, Huis Hellemans, dat expositieruimte biedt aan kunstenaars. De omgeving van het gebouw is een beschermd dorpsgezicht en kenmerkt zich door een combinatie van een oud 19e-eeuws huis, een pastorie en een omgeving van historische tuinmuren en binnentuinen. Hierdoor straalt de omgeving een zekere rust uit, ook al ligt het midden in het centrum. De open, transparante architectuur en de situering van het gebouw geven levendigheid aan het straatbeeld en creëren een eenheid met de omgeving. Wat vroeger een verwaarloosde en donkere parkeerplaats was waar bewoners niet graag kwamen, is nu een warme plek geworden waar iedereen zich welkom voelt. Door deze investering in functies voor de gemeenschap blijft de leefbaarheid van het historische centrum van Edegem behouden als een inclusieve plek voor alle leeftijden.

Houtbouw in het publieke domein
Het houten gebouw is een nieuwe standaard voor innovatieve houtbouw binnen het publieke domein. De Belgische overheid toont visie door alternatieve technieken, een prefab constructie en flexibele architectuur toe te passen. Hout is een zeer gezond bouwmateriaal dat ‘ademt’. Het reguleert de luchtvochtigheid, dempt geluid en isoleert. Het gebouw slaat CO2 op in zijn structuur. In tegenstelling tot beton en staal heeft hout een klimaatpositief effect. Andere duurzaamheidsaspecten zijn het groene dak, het slimme ventilatiesysteem, de zonne-energie, de warmtepomp en het gebruik van grijs water om toiletten door te spoelen.

Pleidooi voor openheid
De houten bibliotheek is een pleidooi voor openheid en is de volgende stap in de houtrevolutie in Vlaanderen. Een open en transparant gebouw vraagt om originele, innovatieve ideeën voor zonwering en temperatuurbeheersing. Omdat er gebruik wordt gemaakt van passieve zonne-energie, is in het gebouw een ‘Hollandse klimaatgevel’ toegepast. Het zonnescherm bevindt zich achter de beglazing en bij veel zonlicht gaat het zonnescherm automatisch omlaag. De warme lucht in de spouw tussen scherm en beglazing stijgt op naar het plafond en wordt tijdens de wintermaanden gebruikt om andere ruimtes te verwarmen.
In de zomer wordt de warme lucht naar buiten afgevoerd waardoor hittestress wordt voorkomen. Met deze eenvoudige oplossing kan het gebouw zijn transparante esthetiek behouden. De grote raampartijen zorgen ervoor dat het gebouw aanvoelt als een open, toegankelijke plek.




































































