Toelichting Carve
Om dit op een logische wijze te realiseren heeft Carve inspiratie gehaald uit de lokale context. Piëmont, wat in het Italiaans letterlijk “aan de voet van de bergen” betekent, heeft een prachtig en gevarieerd landschap. De centraal gelegen Povlakte wordt aan het noordwesten omringd door het hooggebergte en aan het zuidoosten door een heuvellandschap. De karakteristieke en charmante dorpen, met hun kronkelende kruipdoor-sluip-door klinkerstraten, arcades en verspringende gevels, die als parels verscholenliggen in het groene landschap, vormen het uitgangspunt voor het ontwerp.

Een kleurrijk dorp
Het speellandschap is door Carve opgevat als een klein en kleurrijk dorp, dat qua schaal aangepast is aan de belevingswereld van een kind. Carve wil hiermee de nieuwsgierigheid prikkelen van alle gebruikers zowel jong als oud. De aantrekkelijke en uitdagende speelomgeving is opgebouwd uit hexagonale plateaus en torens, die net als de bergdorpen in de Piëmonte langzaam stapsgewijs omhoog klimmen. De verschillende entrees bieden toegang tot een doolhof van steegjes en pleintjes met steeds weer verrassende doorkijkjes: hierdoor kan iedereen zijn eigen route bepalen en steeds weer nieuwe speelplekken ontdekken.

Het evenementenplein
Het speellandschap ligt op een plein dat één van de hoofdtoegangen van het winkelcentrum is en dus dagelijks veel bezoekersbewegingen moet verwerken. Naast deze functionele invulling als circulatieruimte moest deze plek vooral ook een aangename verblijfsruimte te worden voor bezoekers, ouders van spelende kinderen, passanten en de lokale gemeenschap. Het plein is opgevat als een 'event space': een plek waar verschillende activiteiten, zoals promoties, buiten bioscoop en exposities georganiseerd kunnen worden. Om ervoor te zorgen dat dit openbare gebied gedurende alle dagdelen en alle seizoenen flexibel gebruikt kan worden is het plein voorzien van een diversiteit aan zitplekken en wordt het deels overdekt door een groot zonnescherm.
Groene plint
Het centrale plein met het speellandschap is omzoomd door een lint van groen, een horizontale plint die om en door het plein loopt. Hierdoor worden het enorme parkeerterrein aan het zicht onttrokken, en ontstaat er een omsloten groene ruimte, als het ware “een dorp in het groen”, waar bezoekers en kinderen prettig kunnen verblijven en vrij en veilig kunnen spelen.

Gemeenschappelijke picknickplek
Het centrale plein is voorzien van een picknickplek, vrij te gebruiken voor bezoekers, voorbijgangers en de lokale gemeenschap. Speciaal voor de kampeerders is de picknickplek voorzien van drie openbare geïntegreerde barbecues.
Het gehele plein is geplaveid met, voor dit project speciaal ontwikkelde driehoekige betontegels die zijn voorzien van toeslag van natuursteenkorrels. Tezamen vormen de driehoekige tegels een hexagonaal patroon, dat aansluit bij de de vormgeving van het speellandschap. Het subtiele kleurverloop in de grijstinten van de betontegels geeft het plein een zachtere natuurlijke uitstraling.
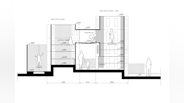
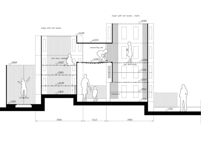
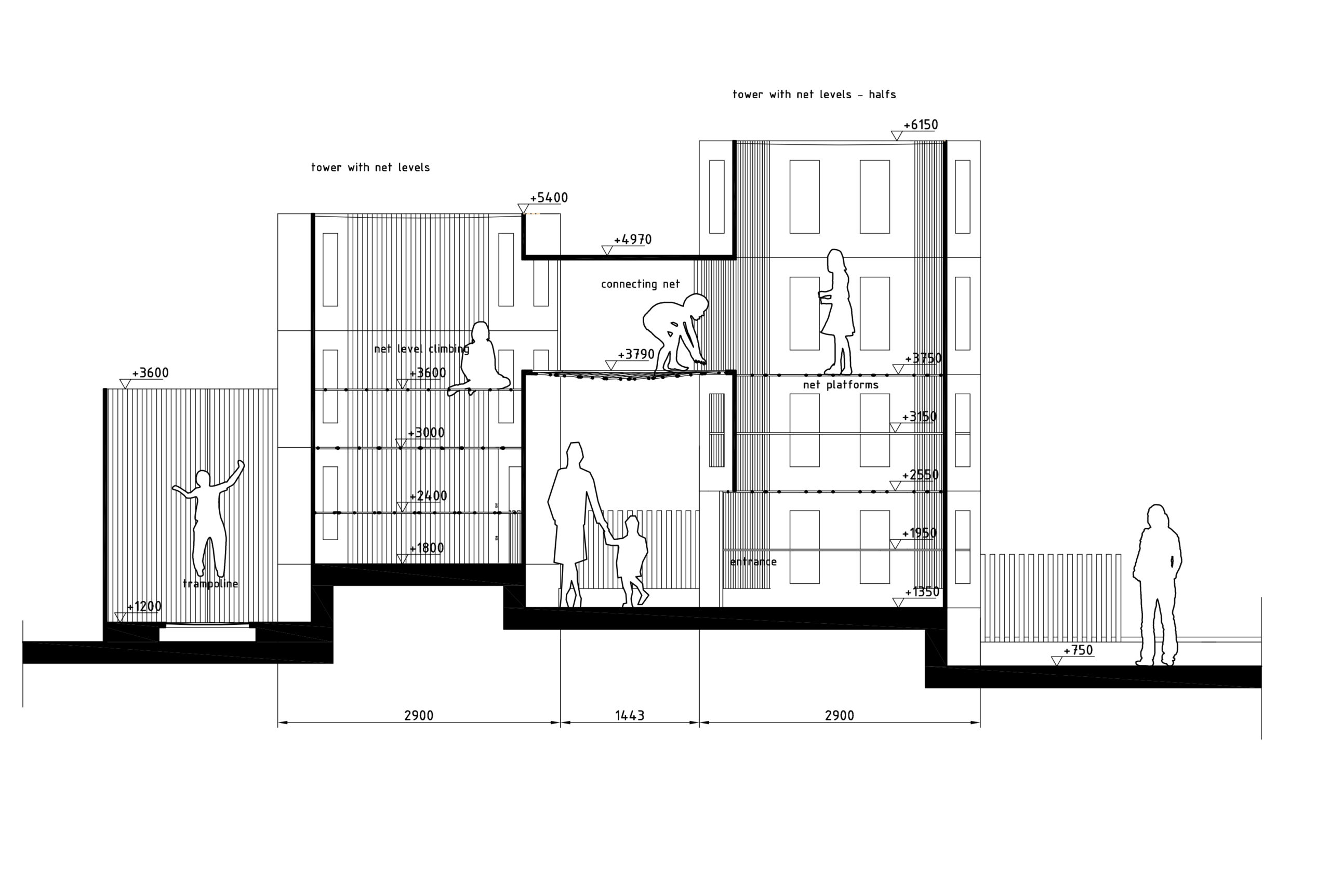
Het speeldorp
Het speeldorp bestaat uit vier verschillende zones, onderverdeeld in twee separate torenclusters. Eén cluster is speciaal voor kinderen in de leeftijdsgroep van twee tot vijf jaar. In het tweede grotere cluster zijn zones die zich richten op zintuiglijk spel, actief en avontuurlijk spel en een deel is voor observatie en rust. Ieder kind kan zijn eigen weg vinden in deze wereld van bonte kleuren en vormen, en een oneindig aantal routes verkennen. De verschillende speelfuncties zijn onderverdeeld naar leeftijd, sommige zijn eenvoudig en andere vergen meer vaardigheden en ervaring. De kinderen vinden het fantastisch om te rennen over de trappen, te glijden, verstoppertje te spelen en het
interieur van de torens te ontdekken; een speelwereld van tunnels, trampolines, hangmatten en netten, caleidoscopische kijkers, spiegels, tactiele objecten en touwen en nog veel meer.

Inclusief ontwerpen
Het sociale aspect van spelen wordt gestimuleerd door de interactie tussen de binnenwereld van de speeltorens en de zichtbare activiteit op 'straat en op het plein'. Zowel fysiek, via hellingbanen, netten en klimgrepen en ook visueel, middels spleten in de houten bekleding en perforaties in de kleurrijke metalen beplating worden de binnen- en buitenwereld verbonden en kinderen uitgenodigd om van de ene naar de andere wereld te gaan. Het gehele speellandschap is toegankelijk voor kinderen met een handicap en veel van de torens zijn bereikbaar via een hellingbaan. De randen van de hexagonale platforms worden door ouders gebruikt als zitelement, vergelijkbaar met de banken die je vindt op straathoek van elk Italiaans dorp.
Spelen met contrasten
Carve ontwerpt speelomgevingen waarin schijnbare contrasten in balans worden gebracht. In dit geval is inspiratie gehaald uit de lokale Italiaanse context, maar in plaats van het letterlijk nabootsen van een slaperig, rustiek dorp, is er bewust voor gekozen om door middel van kleur deze erfenis nieuw leven in te blazen. En daarmee een ervaring te creëren waar kinderen én volwassenen keer op keer voor terugkomen.
































































