Toelichting BURO/S Architects
De opdrachtgevers wilden graag een duurzame nieuwe praktijk die volop ruimte biedt aan zowel medewerkers als pa1ënten, zonder dat de basis en constructie van het bestaande gebouw ingrijpend zouden wijzigen. Daarnaast was het een uitdaging om tegemoet te komen aan de wens van de opdrachtgevers voor een open, transparante praktijk, terwijl de privacy van patiënten optimaal gewaarborgd moest worden.
Het integrale ontwerp van BURO/S Architects combineert een nieuwe lay-out met een slimme toepassing van transparante materialen en daglicht. Zo is een efficiënte en toekomstbestendige praktijk gecreëerd met een frisse uitstraling, waar patiënten hoogwaardige tandheelkundige zorg op maat kunnen verwachten.

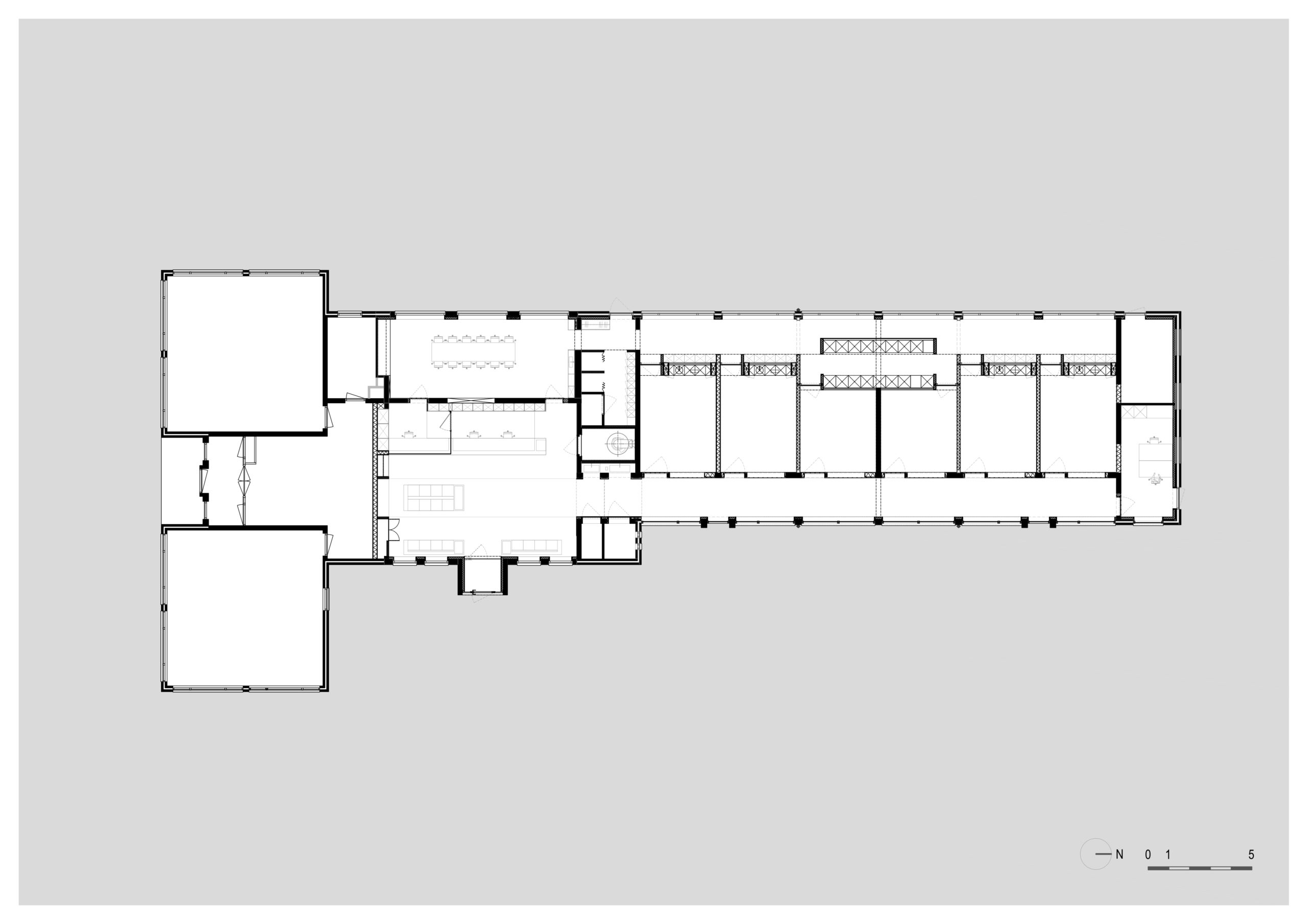
Routing
De officiële richtlijnen voor tandartspraktijken vragen in verband met de hygiëne om een strikt gescheiden routing voor medewerkers en patiënten. In de praktijk in Echt zijn de zes behandelkamers in de voormalige klaslokalen ondergebracht, en wordt de oude schoolgang de route voor patiënten.
Aan de andere kant van de behandelkamers is een tweede gang gemaakt die alleen door de medewerkers wordt gebruikt en toegang geeft tot de kantoren, kantine, sterilisatieruimte en kleedruimte. Deze logische indeling splitst de twee zones van de praktijk en maakt optimaal gebruik van de bestaande structuur van het gebouw.
Een transparante praktijk
Grote nieuwe ramen in de behandelkamers zorgen voor ruime daglichttoetreding in de praktijk. Om de privacy van de patiënten te garanderen hebben de ramen een zeefdruk gekregen van lichtdoorlatend materiaal in een gradueel verlopend patroon, dat zich op ooghoogte verdicht. Zo kunnen voorbijgangers niet in de behandelkamers kijken.
Vanuit de wachtruimte is er een directe zichtlijn naar de patiëntengang en behandelkamers. Dit brengt overzichtelijkheid en rust in het interieur. De openheid van de praktijk wordt nog verder benadrukt door de sterilisatieruimte volledig in het zicht te plaatsen, achter een glazen wand. Het was een uitdrukkelijke wens van de opdrachtgever om deze belangrijke plek meer bij de praktijk te betrekken en zo te laten zien met hoeveel zorg en aandacht dit werk wordt uitgevoerd.

Lichte materialen en bronzen accenten
In de lichte, ruime wachtruimte voelen de patiënten zich welkom en op hun gemak. Een essenhouten balie en strakke houten banken – die refereren aan de schoolbanken die ooit de ruimtes vulden – brengen hier een warme sfeer. Het interieur van de praktijk is zo eenvoudig mogelijk ontworpen met witte en grijze tinten als de rustige basis, terwijl contrasterende materialen en kleuren zorgen voor verrassende accenten.
Door de hele praktijk zijn kaders van brons geanodiseerd aluminium toegepast die overgangen tussen ruimtes en functies markeren: van binnen naar buiten, van wachtruimte naar de patiëntengang, tussen de gang en de behandelkamers. Gedurende de dag en
afhankelijk van de lichtinval veranderen de kaders subtiel van kleur. Ze brengen zo een dynamisch element in het interieur en helpen bezoekers ook bij de oriëntatie.





















































