Toelichting Serge Schoemaker - Pakhuis ‘Dinsdag’ (1899) is onderdeel van twee immense opslaggebouwen van 30 meter diepte en 100, respectievelijk 200 meter lengte, die zijn gebouwd op Cruquiuseiland, in het Oostelijk Havengebied. De karakteristieke industriële gebouwen zijn inmiddels allemaal getransformeerd en voorzien in de groeiende vraag naar woningen in Amsterdam.

De representatieve utiliteitsbouw uit de negentiende eeuw, met bakstenen gevels, zware houten vloeren en gietijzeren details, is zeer geliefd als woonbestemming. De populariteit hebben de pakhuizen mede te danken aan de hoge verdiepingsvloeren en flexibel in te delen plattegronden. Op de plekken waar vroeger de handelswaren werden opgeslagen, bevinden zich nu de meest gewilde woningen van de stad.
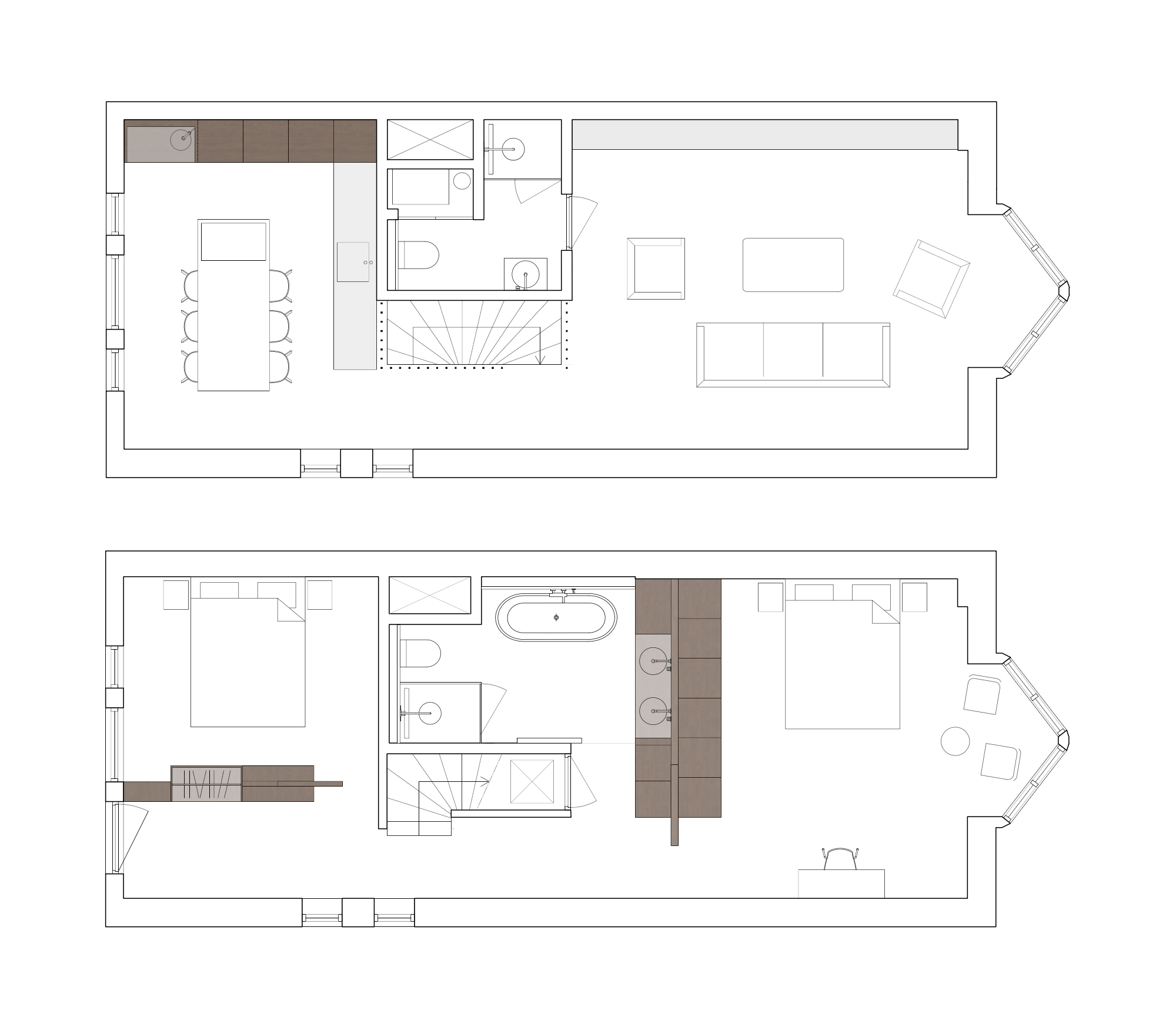
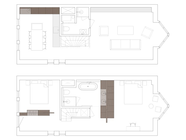
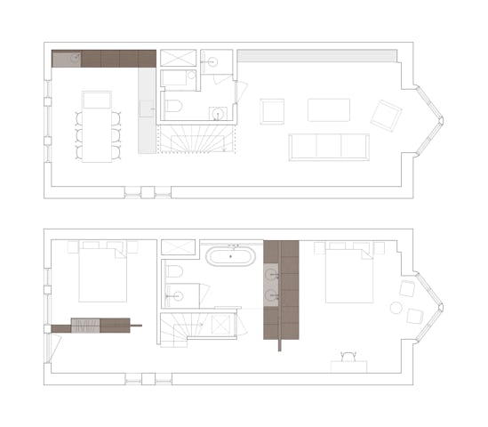
De opdracht bij deze verbouwing was om de bestaande maisonnette-woning beter vorm te geven en in te delen. Beide verdiepingen zijn hiervoor integraal aangepakt. De bovenste laag is hierbij als woonverdieping ingericht en de onderste laag als entree en slaapverdieping. Om de woning zo vrij en open mogelijk in te kunnen delen, zijn de meeste binnenwanden verwijderd. Deuren zijn vervangen door verdiepingshoge schuifdeuren.

Om het schaarse daglicht in het voormalige pakhuis zo goed mogelijk te verspreiden, is op beide verdiepingen van de woning gekozen voor een lichtgrijze gietvloer en witte binnenwanden. Deze lichte basis vormt een fraai contrast met de multifunctionele, verdiepingshoge kastenwanden van walnotenhout, die de verschillende woonfuncties op ruimtelijke wijze van elkaar scheiden.
De zorgvuldig en strak vormgegeven interieurbouw komt door het gedempte licht, dat door de historische toogramen binnenvalt, optimaal tot zijn recht: de diepe warme houtkleur verleent de woning een behaaglijke en elegante uitstraling. De consequent doorgevoerde kleur- en materiaalkeuzen maken van de twee woonlagen in de maisonnette een architectonische eenheid.






























