De geschiedenis van de twee stadsvilla’s van de Eindhovense architect Paul Diederen gaat terug tot 1997, het jaar waarin het bureau -toen nog Diederen & Schutgens- een woningbouwcomplex ontwierp aan het Don Boscoplein in Eindhoven. De essentie van dat ontwerp was het maken van een stedelijk ‘tussengebied’ als overgang van een stedelijke naar een parkachtige omgeving. Uiteindelijk zijn drie volumes aan de randen van een nieuw plein gebouwd en kwam er een wandelroute vanuit de stad naar het park. De laatste twee woningen uit dit plan zijn recent opgeleverd.

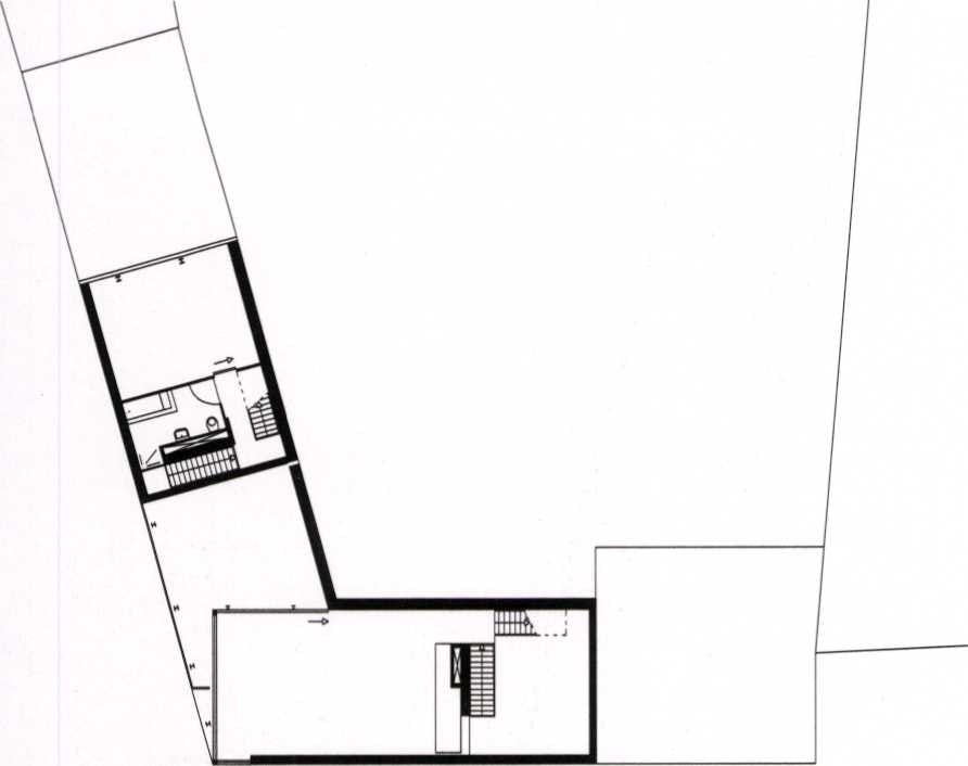
R) De ruimtes binnen de twee stadsvilla's zijn georganiseerd rondom een kern van trappen en sanitair.
Beeld Jan Bagen
De bebouwing uit 1997 schermt samen met een bestaand gebouw de randen van het plein af, behalve op één hoek. Aangezien de eigenaar van het aangrenzende perceel niet bereid was te participeren in de herontwikkeling van het gebied, bleef op deze plek een haakvormige kavel over. Omdat de vorm van de kavel sociale sector woningen of atelierwoningen - zoals in de rest van het plan - onmogelijk maakte, stelde Diederen & Schutgens voor om twee bijzondere woningen te ontwerpen. Het voorstel werd onmiddellijk geaccepteerd. Onder meer door het overlijden van Michel Schutgens in oktober 1998 is het stedebouwkundige sluitstuk van het Don Boscoplein later afgerond. Hoewel het idee voor twee woningen dus niet nieuw is, is het nu gebouwde ontwerp dat wel. Na de fusie van Paul Diederen met het bureau van Bert Dirrix en Rein van Wylick nam eerstgenoemde de opgave opnieuw ter hand. Aansluitend bij de reeds gebouwde woningen met hun houten gevels voorzag Diederen ook de nieuwe woningen van een strakke, houten huid, die niet verticaal, maar horizontaal is geaccentueerd. Voor de interne organisatie is afgezien van een aansluiting bij het bestaande: een driedimensionale schakeling kreeg de voorkeur boven het doorzonprincipe uit de rest van het plan. De situering van de kavel is hiervoor de belangrijkste overweging: wat betreft bezonning ligt het gunstigste deel in de knik van de haakvorm. Door beide woningen te vervlechten delen zij de voordelen van uitzicht en zonlicht. Aangezien alleen de pleingevels de mogelijkheid bieden tot contact met de buitenwereld, zijn verschillende vormen van inzicht en uitzicht uitgespreid. Naast loggia’s en panoramaramen zijn ook luiken en horizontale jaloezieën toegepast.

Hoewel de woningen door hun vervlechting en doorgaande gevel nauwelijks als individuele elementen zijn te herkennen, zijn de interne verschillen aanzienlijk. In het ene geval is er een eengezinswoning met studioruimte ontworpen, in het andere een riante woning voor een vrijgezel. Daarbij is gebruik gemaakt van eenzelfde, haast ruw idioom. Rondom een constructieve kern van trappen en sanitair zijn beide programma’s met behulp van neutrale ruimtes georganiseerd. In het geval van de eengezinswoning resulteert dit in een verticale structuur van open ruimtes die alleen op de bovenste verdieping van karakter verandert, doordat de slaapkamers als kasten in een wand verschijnen. Het karakter van het tweede huis is met zijn diepe en smalle ruimtes meer horizontaal. Zelfs de doorsnijding van de woonkamer met een vide heeft hier eerder een horizontaal dan een verticaal effect. Het project vormt een sluitstuk in meerdere betekenissen: de stadsvilla’s zijn op te vatten als symbolisch einde van het werk van Diederen & Schutgens en als hernieuwde voortzetting van het architectonische oeuvre van Paul Diederen. Op het niveau van de typologie is het project een stedelijke woning met de ruimtelijke vrijheid van een suburbaan huis. Voorbeelden van dergelijke woningen duiken sinds eind jaren ’90 op in diverse gedaantes. Het ideaal van een stad zonder overlast lijkt in deze woningen werkelijkheid geworden. Er is zelfs sprake van een prettige vorm van Big Brotherhood. In verschillende voorbeelden wordt meer of minder geraffineerd geflirt met de stad en publieke en private domeinen lopen door elkaar. Deze trend is hier door de strategische plaatsing van ramen ten opzichte van keuken, badkamer of toilet verder uitgewerkt. Het is echter niet eenvoudig deze nieuwe dimensie in de woning te incorporeren. Ook voor het project in Eindhoven geldt dat de veronderstelde relatie met het publieke meer weg heeft van een onschuldig gluren, dan van een werkelijk nieuwe dimensie in het wonen.




