De naam van Frits van Dongen verscheen in 1984 op het lijstje van de architectenselectie voor een woningbouwproject van zo'n honderd woningen in Rotterdam-Zuid. Van Dongen, die toen nog op het bureau van Van Mourik werkte, kreeg de opdracht hoewel hij zich nog nooit op het terrein van de woningbouw had gemanifesteerd. In allerijl werd een architectenbureau opgericht dat de werkwijze van een laboratorium ging volgen. Modellen werden ontwikkeld, woningtypologieën geanalyseerd en op de locatie losgelaten. Uit onvrede met de praktijk van de toenmalige sociale woningbouw —we schrijven nog steeds 1984— werden nieuwe wegen in geslagen. En met succes. Natal, zoals het naar een blok in de wijk genoemd werd, staat er nu en is een bijzonder project geworden. Frits van Dongen terugblikkend op het proces: ’’Alle randvoorwaarden waren gunstig: het was een prachtige locatie, een goed programma en het planteam bestond uit een positieve club mensen die zich open voor onze ideeën opstelden.” Maar het is niet in de laatste plaats te danken aan de vasthoudendheid van Van Dongen zelf dat Natal er uiteindelijk gekomen is en dat het merendeel van de vaak onconventionele oplossingen overeind is gebleven.

Het programma van eisen bestond uit 80 a 90 woningen en 2000 a 2500 m2 winkeloppervlak. Stedenbouwkundig uitgangspunt van Van Dongen was om op de begane grond meer ruimte te creëren dan in de 19de-eeuwse verkavelingsstructuur gebruikelijk is. Door haar afmetingen leende het beschikbare terrein —40 bij 150 m— zich slechts voor bebouwing met gesloten bouwblokken. In plaats daarvan tilde Van Dongen alle woningen zo’n zes meter op en voegde ze samen in een licht gekromde bouwstrook van vijf verdiepingen. Daaronder bevinden zich voor een deel winkels, voor de rest is het een openbaar plein geworden.
Met zijn architectuurtaal voegt Natal zich duidelijk in de ’traditie van de Modernen’: Het gebouw staat op pilotis; het begane grond niveau is ’bevrijd’ en teruggegeven aan de bewoners van de stad. De bouwmassa is opgevat als een compositie van autonome vormen die vrij in de ruimte zijn gegroepeerd. Het ruimtelijk effect, dat de lichte kromming a la Oscar Niemeyer oplevert, is verrassend om te zien. In plaats van de smalle straatjes en een smal binnenterrein —wat de consequentie van het maken van een gesloten bouwblok zou zijn geweest— lijkt het alsof dit gebouw alleen maar ruimte genereert.
Op subtiele wijze bestaat er een grote samenhang tussen de verschillende onderdelen waaruit het ontwerp is opgebouwd. Het slingerende woongebouw, de verspreide winkelblokjes, de verhoogde bergingen (de bergingen van de woningen bevinden zich bij dit project in de open strook tussen woongebouw en winkels) en de hellingbaan er naartoe, de plaatsing van de lifttorens, alle elementen maken deel uit van een compositie’ waaraan niets toegevoegd en waarvan niets weggelaten kan worden. O ok wat dit betreft kan Natal zich in schrijven binnen de ’traditie van de Modernen’. De daar heersende paradox van het concept van ’de vrije ruim te’ en het ontbreken van flexibiliteit geldt ook hier. Het is duidelijk dat deze eigenschap zowel de grote kracht als de grote zwakte van een dergelijk ontwerp uitmaakt. Niets kan worden wegbezuinigd. Het project kan alleen maar in zijn geheel worden uitgevoerd. Lukt dat dan staat er iets schitterends; blijk t er iets niet te functioneren dan wordt het een ramp.

Met dit ontwerp wordt dus een vrij groot risico genomen; door alle partijen en niet in de laatste plaats door de opdrachtgever. Van Dongen blijk t naar eigen zeggen onder optimale omstandigheden te hebben kunnen werken. Dit gegeven is in grote mate van invloed geweest op de behaalde kwaliteit. Of het project werkelijk een succes wordt zal alleen de toekomst kunnen uitwijzen. Wat we nu kunnen vaststellen is dat Natal een prachtig gebouw is, maar dat het er alleen twee jaar te laat staat. Door onteigeningsprocedures is de bouw erg vertraagd. In de tussentijd hebben ongeveer de helft van de oorspronkelijk ingeschreven bewoners elders een woning kunnen vinden. Hierdoor is de bevolkingssamenstelling nogal veranderd en mist het gebouw de collectiviteit die het zou kunnen bezitten.
Contextueel
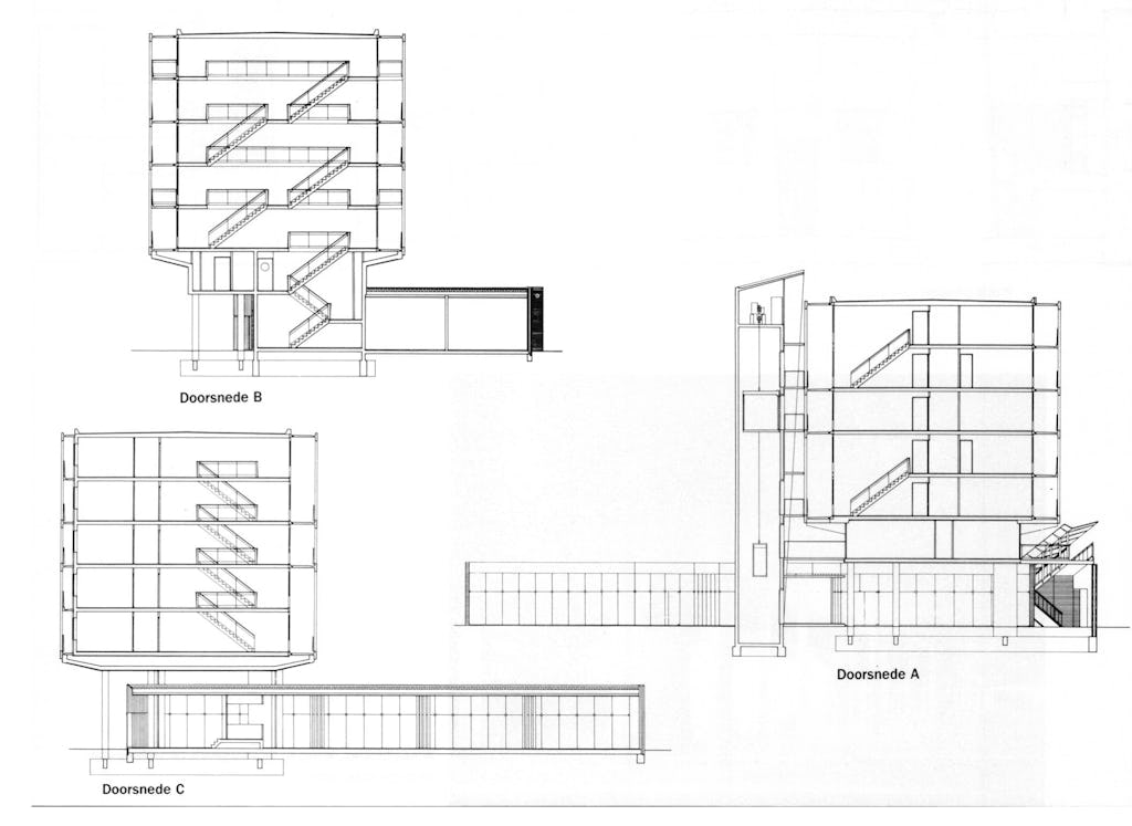
De woningen worden ontsloten door galerijen. Deze zijn gekoppeld aan twee buiten het gebouw staande liften. Het woongebouw heeft aan beide zijden hetzelfde raster als omhulling. Een verschil tussen voor- en achterkant lijk t heel bewust niet te zijn gemaakt: beide kanten zijn als ’plein-gevel’ ontworpen. Terwijl het woongebouw als een vrije vorm in de ruimte staat, het een incident vorm t binnen het rigide 19de-eeuwse verkavelingspatroon, richten de winkelblokken zich naar de rooilijnen van het terrein. O ok liggen op de begane grond alle winkelentrees aan de Paul Krugerstraat waardoor hier wel een verschil tussen voor- en achterkant is ontstaan. De winkelachterkanten aan de Kaapstraat markeren de rooilijnen. Aan de voorzijde volgen de winkelblokken de door de ondersteuning van het gebouw gevormde colonnade. Er zijn twee doorgangen gemaakt waar zich de liften met de entreehuisjes bevinden. De begane grond is dan ook eerder te lezen als een koek waaruit de ruimte is weggesneden dan als een verzameling vrije vormen. Het project is hierdoor stevig verankerd binnen de stedelijke context, steviger dan je in elk geval op het eerste gezicht zou vermoeden. De vraag of het ontwerp op te vatten is als een model voor een nieuw soort stad of als een sterk locatiegebonden stedelijke vorm beantwoordt Van Dongen dan ook diplomatiek met "eigenlijk zowel het een als het ander".

Woningontsluiting
De ontsluiting van de woningen zit bij Natal vrij ingewikkeld in elkaar. Anders dan de galerijflat met één stijgpunt, dat lange, anonieme galerijen ontsluit, heeft het gebouw twee liften die zich in het midden van de twee bouwhelften bevinden. Beide liggen aan de holle kant van de slinger buiten de bouwstructuur. Aan de galerij zijn portiekwoningen gemaakt. Deze lopen niet over de hele hoogte van het gebouw door maar worden per twee lagen onderbroken. De portiek vormt een intermediair tussen de woning en de galerij waardoor de galerij dubbel hoog kan zijn. Door het feit dat zij gekromd is —overzichtelijkheid!— door de hoogte en door het feit dat je nooit meer dan drie woningen hoeft te passeren is er alles aan gedaan de negatieve aspecten die kleven aan het type van de galerijflat te ondervangen.
De slinger is opgebouwd uit eenheden bestaande uit twee rechte beuken en een gerende wisselbeuk. Deze bevat steeds een drie- en een vierkamerwoning. In het midden klapt de slinger om van convex naar concaaf, zonder dat het woningtype verandert. Dit is mogelijk doordat er een kernplattegrond is ontwikkeld die zich onafhankelijk gedraagt ten opzichte van de omhulling. Wat voor de stedenbouwkundige inpassing geldt —de contextloosheid— wordt tot op het niveau van de individuele woning doorgezet. De kern, die een keukenblok, toilet, badkamer en berging bevat, staat precies in het midden van de woning. De afstand tot beide gevels is gelijk. Hierdoor is het mogelijk om de woonkamer zowel aan de Paul Krugerstraat als aan de Kaapstraat te situeren. Beide oplossingen komen dan ook voor. In eerste instantie was het de bedoeling dat deze keuze wat betreft de woningindeling door de bewoners zelf gemaakt zou worden. Maar aangezien er geen enkele systeemwand bestaat, die niet een veelvoud van de gangbare woningbouwbinnenwand kost, is de indeling uiteindelijk toch maar door de architect zelf vastgelegd. Hierdoor onderscheidt de plattegrond zich wel enigszins van de doorsnee gezinswoning maar niet noemenswaardig.

Rationeel bouwproces
De gekozen bouwkundige structuur leent zich uitermate goed voor een rationeel bouwproces. De woningen zijn op een beukmaat van 6- 3-6 meter ontworpen. Het rasterwerk aan de buitenkant is onafhankelijk hiervan ontworpen en heeft een ritme van 5.40 m. (Hoe dit verschil met standaard balkonplaten is overbrugd, terwijl bovendien de woongevel is opgebouwd uit rechte geveldelen en de buitenzijde de kromme volgt is een studie op zich waard!) Bouwkundig gezien bestaat er geen verschil tussen galerij- en balkonzijde. Aan beide kanten van de woning bevindt zich eenzelfde strook die al naar gelang de indeling galerij of balkon is. Aangezien de bouwhelften puntsymmetrisch zijn gespiegeld ontstaat er in het midden een merkwaardig omslagpunt: de galerij wordt opeens balkon terwijl bouwkundig alles gewoon doorloopt. Oorspronkelijk werden de balkons slechts afgeschermd door glazen windschermen, die niet verder dan halverwege reikten, waardoor de neiging om hier gewoon door te lopen erg groot was. Dat de tussengehangen balkons de galerijruimte beëindigden bleek als middel te subtiel' te zijn om door iedereen begrepen te worden. Zodoende werden door de bewoners zelf verschillende maatregelen getroffen om variërend van een vriendelijk briefje tot het aanbrengen van touwen en planken. Inmiddels zijn alle schermen vervangen door bredere.
Door het rasterwerk krijgt het gebouw een monumentaliteit die bij woningbouw ongebruikelijk is. Binnen de traditie van de 19de-eeuwse stedenbouw immers vormt woningbouw de ’stedelijke koek’ waarbinnen monumenten —meestal openbare gebouwen— een plaats krijgen. De opzet van Natal ligt dan ook eerder in de lijn van Le Corbusiers Habitation waar juist aan een woongebouw monumentaliteit wordt verleend. De dubbele huid biedt de woningen een zekere mate van privacy, die ze anderzijds door hun ligging te midden van de openbare ruimte moeten ontberen. Bovendien is de ’monumentale orde’ van het grid zo dominant dat eigenzinnige toevoegingen van individuele bewoners het gevelbeeld nooit zullen gaan overheersen.

Omdat de lifttorens zich buiten de slingervormige bouwmassa bevinden kan de regelmatige bouwstructuur van voor tot achter consequent worden doorgezet. Alleen de woningen op de kop en de staart vormen uitzonderingen op het systeem. Deze woningen zijn een kwartslag gedraaid ten opzichte van de rest. Aan de kopzijde liggen de grootste woningen met een mooi zicht op het water terwijl aan het andere uiteinde juist de kleinsten zijn gesitueerd. Hier ’verdicht’ het raster zich tot een met gaten geperforeerde wand. Is dit een poging tot ’aansluiting’ bij de stadsvernieuwingsarchitectuur uit de omgeving?
Modernisme
Hoe verhoudt het hier door Van Dongen beoefende Modernisme zich tot het karakter van deze bouwopgave? Kun je in deze tijd nog als architect met één enkel gebaar zomaar honderd woningen een plaats geven en dan nog wel in één slingervormig blok van 140 meter lengte? Getuigt dit niet van een achterhaalde heroïek? Roept een dergelijk ontwerp niet juist die problemen op waar veel naoorlogse woningbouw mee te kampen heeft: anonimiteit, leegstand, vandalisme?
Natal is een zorgvuldig ontworpen gebouw. Het kent originele oplossingen voor banale aspecten van de volkswoningbouw zoals de plaatsing van de bergingen en de ontsluiting van de galerijen. De ’valkuilen’ van de moderne architectuur worden daarbij behoedzaam vermeden. Door de kromming van het bouwblok en de monumentale orde van het grid ontstaat nergens monotonie. De voorzieningen op de begane grond zorgen ervoor dat het gebouw stevig is verankerd in de omgeving. Het ontwerp biedt een intelligente oplossing voor het stedenbouwkundige probleem van de te smalle blokmaat. Door het grid ontstaan er twee stadskanten waarachter zich weer een privé buitenruimte bevindt. Natal is dus wel een groot, maar zeker geen leeg, groots gebaar. Het is een doordacht ontwerp, op alle schaalnivaus, zowel het grote als het kleine.

'Moderne architectuur’ is open en transparant. Ruimte wordt niet langer door muren omsloten. Canonieke architectuur van de Modernen kent daarom geen muren maar bestaat in plaats daarvan uit schijven. Schijven sluiten de ruimte niet af maar verbinden juist de ruimtes onderling tot één 'continue ruimte’. De grens tussen openbaar en privé wordt daarom in de moderne architectuur niet getrokken. Dat wil echter niet zeggen dat je dan maar overal naar binnen kunt. Nieuwe codes zijn in de plaats gekomen van de dichte muren.
Natal is wat dit betreft illustratief voor het Modernisme. De woningen bevinden zich achter een rasterwerk van slank beton. Het is hier niet een muur die de scheiding aanbrengt tussen binnen en buiten maar het is de overgangszone bestaande uit galerijen en terrassen waarin dit gebeurt. Het raster zelf scheidt niets maar is juist een verbindend element. Het verbindt het gebouw op twee manieren met zijn omgeving. Door de monumentale orde van het raster kan het gebouw een rol op stedelijk niveau spelen. En van binnenuit werkt het raster als een groot ’raam op de stad’.
Dubbelzinnig
Het woongebouw staat op poten en de winkelfronten aan het plein hebben puien van hardglas. De entree van het woongebouw zelf bestaat uit een glazen doosje. Op de begane grond wordt dus in grote mate de indruk van openheid gewekt. Maar als je niet beschikt over de juiste 'code' is alle glazen openheid even ontoegankelijk als de dikste muur. En niemand in de buurt die een deur op een kier kan zetten. Monsieur Hulöt uit Tati’s Les Temps Modernes zou er niet bij iemand op bezoek kunnen gaan. Maar wij leven toch al lang niet meer in de wereld van 'mon oncle'?
De openheid die hier door bouwkundige middelen wordt opgeroepen is dus heel dubbelzinnig. Iets dergelijks is er ook aan de hand met het overgangsgebied achter de gevel. Deze zone lijkt bouwkundig gezien over de hele lengte van het gebouw door te lopen. Halverwege bevindt zich echter een omslagpunt. De ene helft hoort bij de ontsluitingsstructuur van de woningen en is dus openbaar terwijl de andere helft bestaat uit de buitenruimten van de woningen en dus privé is. Ruimtelijk wordt het verschil hiertussen alleen aangegeven door de ingehangen balkons. Had in de plattegrond de ruimte niet gestopt moeten worden door hier tussen beide een muurtje te plaatsen? Is de gesuggereerde continuïteit van de buitenhuid niet in tegenspraak met het functioneren van het gebouw?

Van Dongen gebruikt de vormentaal en het ruimtecanon van de Modernen zonder zich om de betekenis ervan te bekommeren. Het gebouw wordt getoond in zijn samenstellende componenten. Zoals de entree wordt ontrafeld in drie vlakken, die de ruimte doorsnijden (lifttoren, afdakje en brievenbussen/bellentableau) die elk op een autonome manier zijn vormgegeven, zo valt de slinger uiteen in bouwvolume, gevels en pilotis. De architectuur is hier opgevat als een spel van bouwmassa’s, vlakken en lijnen, dat zich afspeelt in de oneindige euclidische ruimte.
Wat kunnen we hier van leren? Ik denk het volgende. Dit gebouw legt zichzelf niet uit. Het legt niet uit waar openbaar is en waar privé; waar de grote woningen liggen en waar de kleine. Een gebouw is vorm, kleur, ritme, materiaal en de relaties daartussen. Al het andere zijn menselijke afspraken, ideologisch of cultureel bepaald en kunnen beter op een andere manier worden vastgelegd dan in gebouwde vorm. Natal is wat dit betreft dus eigenlijk een kritiek op dat deel van de naoorlogse Nederlandse architectuur waarin grote gebaren worden geschuwd en de meest treurigmakende woningbouw gelegitimeerd wordt met een knieval voor de wereld van Monsieur Hulöt.




