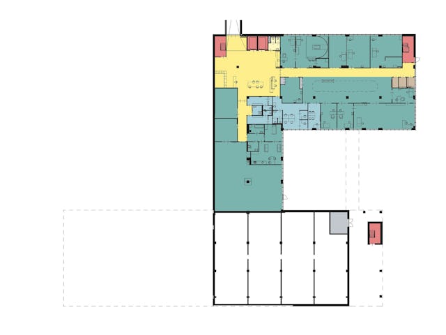
Het gebouw bevindt zich in grove lijnen op dezelfde locatie als de voormalige vleugels en haakt aan op de bestaande structuur van de kliniek. Het oppervlak van het nieuwe volume is compacter, waardoor het park rondom iets is vergroot. De buitenruimte wordt met oog op de ‘healing environment’ gezien als belangrijk onderdeel van het revalidatiecentrum.

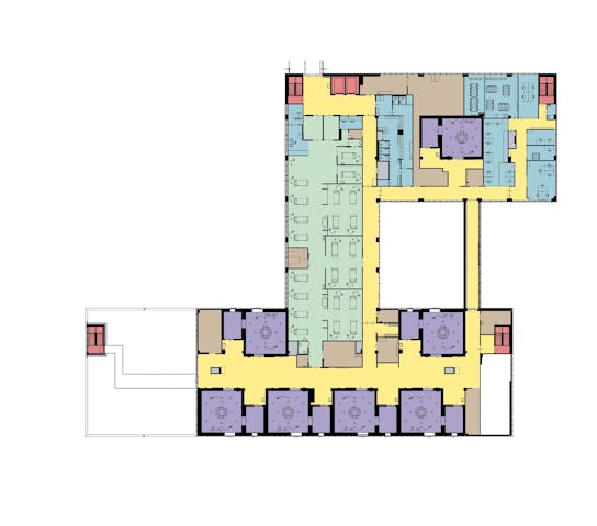
72 patiëntenkamers, waarvan 36 éénpersoonskamers en 18 tweepersoonskamers zijn verdeeld over twee verdiepingen. De kamers zijn voor alle patiëntengroepen geschikt. Mensen met een dwarslaesie hebben een grote ruimte nodig en neurologische patiënten vaak een prikkelarme, dit is gecombineerd. De tweepersoonskamers zijn aan het programma toegevoegd, omdat het voor het acceptatieproces goed is nieuwe dwarslaesiepatiënten samen een ruimte te laten delen.

Individuele klimaatregulatie
De opdrachtgever vroeg de architect een transparante gebouw te realiseren met veel daglicht waarin ook de patiënten zicht hebben op de omliggende bebossing. Daarbij kwam tijdens een gebruikersonderzoek met patiënten duidelijk naar voren hoe belangrijk zij het vinden dat ramen te openen zijn en dat ze vanuit hun kamers over een balkon beschikken. Iemand met een dwarslaesie kan niet zomaar zelfstandig de tuin in gaan en een verblijf duurt als gauw vier tot zes maanden. Toch was het realiseren van het balkon niet vanzelf sprekend, de klimaateisen van een ziekenhuis zijn hoog en de hygiënisten protesteerden.
De voordelen wogen wat betreft opdrachtgever en architect echter hoger dan de nadelen. Er kwamen balkons. De donkere aluminium gevelplaten met een nervenstructuur wekken de indruk van hout te zijn. De verhouden zich in een mooie compositie met het bovengelegen witte stucwerk. Dankzij een centraal systeem met waterverwarmde en watergekoelde plafonds is het klimaat per kamer te regelen. Dit gebeurt automatisch wanneer een deur of raam is opengezet of handmatig wanneer een patiënt het warm of koud heeft.


Brede gangen
De gangen zijn vijf meter breed en eindigen op grote ramen die uitzicht bieden op de bosrijke omgeving. Bedden kunnen er elkaar makkelijk passeren, en er is genoeg ruimte voor revalidatieactiviteiten. De opdrachtgever wilde geen hotel maken waarbij de patiënt de hele dag op de kamer blijft, het is de bedoeling dat de gang actief wordt gebruikt. De aanlandwerkplekken voor het personeel dragen bij aan het idee van de gang als multifunctionele zone.

Het interieur is afgewerkt in lichte kleuren en materialen, zonder tierlantijnen. Voor de patiëntgroep is het belangrijk een prikkelarme omgeving te creëren. “Alles wat in het gemiddelde gebouw na afloop wordt afgewerkt en gedecoreerd, zou averechts werken op datgene wat het herstel moet bevorderen” vertelt projectarchitect Arnold Sikkel. De sfeer is daardoor rustgevend. Ze oogt wel ook enigszins klinisch, maar dat lijkt voor de vrij zware medische functie niet meer dan logisch. Bovendien werken het groene uitzicht zeer verlichtend, het is goed voor te stellen dat de omgeving bijdraagt aan een gestaag herstel.








































