Rem Koolhaas zei in 2013 over het ontwerp dat het bestaat uit een contrastrijke omgeving van “nieuw, oud, horizontaal, verticaal, breed, smal, wit, zwart, open en gesloten. Door zo veel verschillende ruimtelijke variabelen te introduceren, zal de complexiteit van de architectuur een onstabiele, open programmering bevorderen, waar kunst en architectuur profiteren van elkaars uitdagingen.”
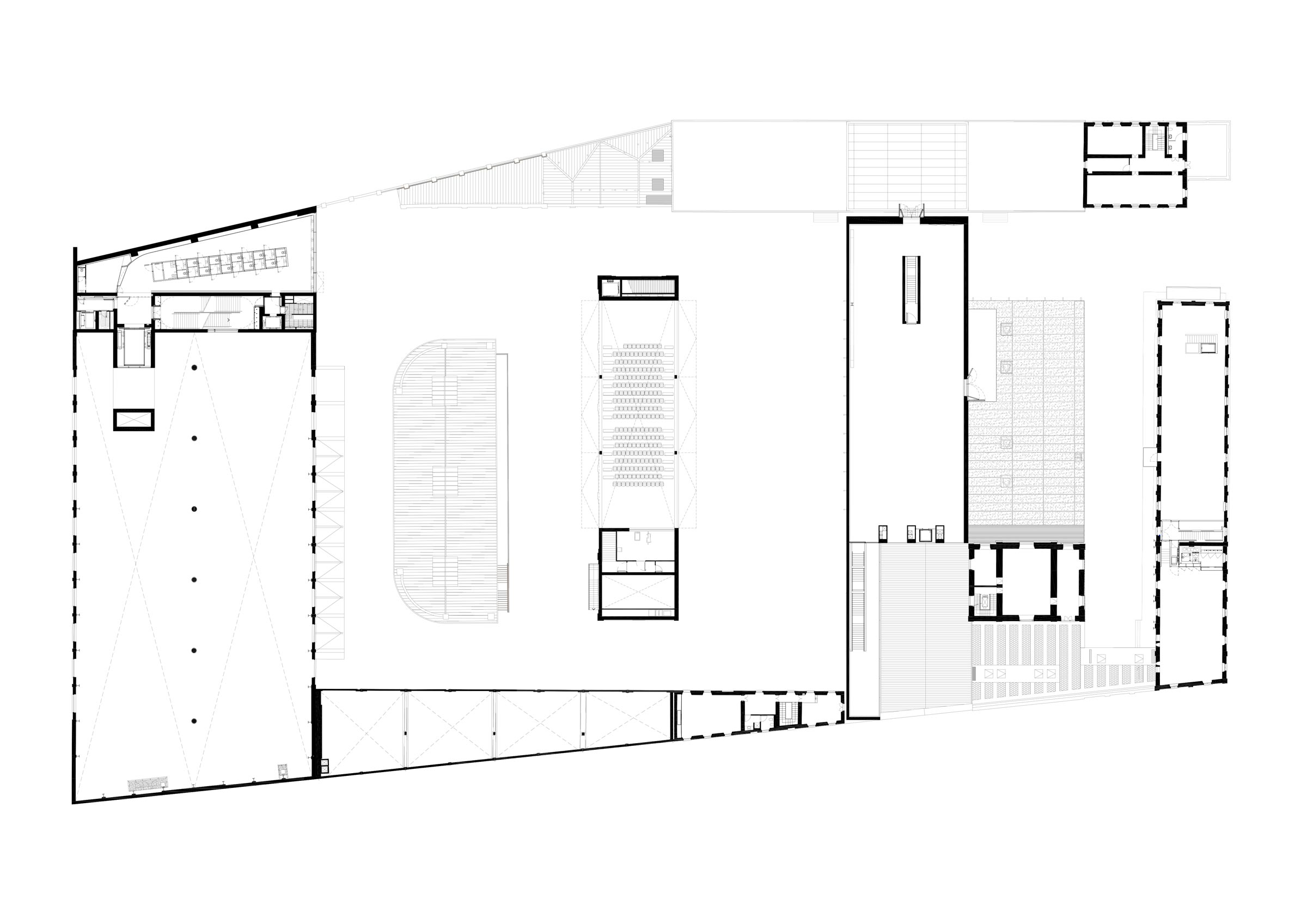
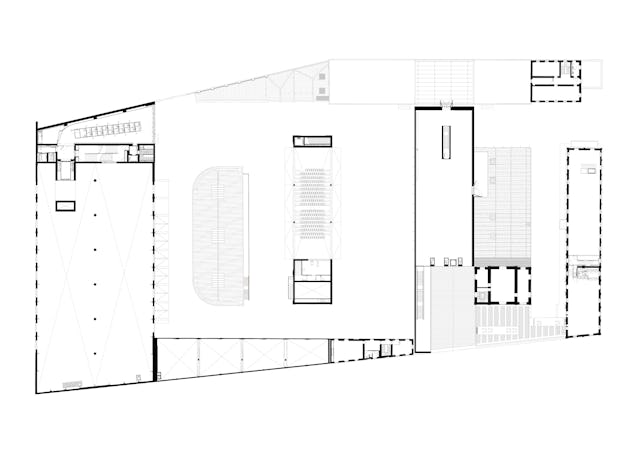
Het museum is gerealiseerd in een oude Jeneverstokerij in het zuiden van de stad Milaan. Tussen de oude gebouwen zijn door OMA drie volumes geplaatst. In de twee delen die in 2013 zijn voltooid bevinden zich een galerie voor tijdelijke exposities en een bioscoop voor multimediapresentaties. In de nieuwe tien verdiepingen tellende toren is ruimte voor een permanente expositie.

Unieke expositieruimtes
De expositiezalen zijn uitgevoerd in een licht pallet kleuren en materialen. Een aantal eenvoudige variabelen zorgt binnen dat elke expositieruimte anders is. De basis van de toren wigvormig, maar de verdiepingsvloeren zijn afwisselend uitgevoerd met rechthoekige plattegronden. De bredere verdiepingen steken uit boven de naastgelegen straat.
De expositiezalen zijn vervolgens afhankelijk van de plattegrondvorm met een breed panorama gericht op het noorden, of met een smaller raam op het oosten of westen. Een twee variabele wordt gevormd door de hoogte van de zalen: elke verdieping is hoger dan de vorige.

Aan de voet van de toren biedt een tweede ingang direct toegang tot de toren en het restaurant dat zich daarbinnen bevindt. Ook de experimentele performance ruimte van de Deposito en andere delen van de Fondazione zijn via deze ingang bereikbaar.
Lees verder





















































