In Zwolle is het toch maar zo ver. Een gebied binnen de stadsgrachten, dat bestemd was voor kantoren van formaat en waar een toegangsweg met 4 rijstroken moest komen, krijgt opnieuw een kleinschalige woon-werk functie met een binnenstedelijk karakter. Zwolle is om, zou je kunnen zeggen. Een vereniging, de Vrienden van de Stadskern Zwolle, heeft belangrijk aan deze 'revolutie' bijgedragen. Eind 1970 was het Zwolse Gemeentebestuur zover omgeturnd dat het aan architectenbureau Aldo van Eyck en Theo Bosch opdracht gaf voor het maken van een stedenbouwkundige studie van een deel van de binnenstad. Dit gebied, globaal tussen de Nieuwstraat en de Buitenkant, was door verval en sloop sterk aangetast en had aan waarde alleen nog maar een paar in slechte staat verkerende monumenten.
Theo Bosch: 'Het was voor ons noodzakelijk dat de geplande weg ter discussie zou mogen staan'. De gemakkelijk te vinden uitgangspunten betroffen verder o.m. ’het handhaven of terugbrengen van een verscheidenheid van functies en hun vervlechtingen, waarbij de woonfunctie als de meest belangrijke wordt aangemerkt'.

Ontwerpen
De architecten van genoemd bureau hebben samen met Paul de Ley en Guus Knemeyer een lofwaardig afwisselend woningproject ontworpen wat goed aansluit op de bestaande bebouwing. Deze gaf overigens duidelijke architectonische en stedenbouwkundige aanknopingspunten, die leidden tot een hoge woondichtheid en het bijna volledig handhaven van het vroegere stratenverloop. Kenmerken voor de woningen zijn o.m. de binnen de gevelvlakken gelegen balkons (loggia's) en toegangen tot de woningen. Een vergroting van de privacy wordt hiermee beoogd.
De toenmalige minister van Volkshuisvesting heeft dit als wezenlijk onderkend en in 1971 het predicaat 'experimenteel’ aan het plan opgehangen. Op dat moment was er sprake van huurwoningen. Alle subsidieregelingen ten spijt leek het plan toch meer levensvatbaarheid te hebben wanneer tot verkoop van de woningen en bedrijfsruimten zou kunnen worden overgegaan. Opnieuw bleek het mogelijk een ministerieel predikaat te verwerven (december 1973) waarmee dit project het eerste experimentele koopwoningenplan was. Deze bekroning levert weliswaar geen extra subsidie op maar heeft toch het voordeel dat de Voorschriften en Wenken niet tot het uiterste gevolgd behoeven te worden. Het project omvat 30 vierkamerwoningen, 21 bejaardenwoningen met tuin, 15 atelier-, praktijk- of bedrijfsruimten en 6 winkels. Ook zijn 42 overdekte parkeerplaatsen en een dubbele garage in het plan opgenomen. Tegelijkertijd met de nieuwbouw worden in de naaste omgeving de monumenten gerestaureerd en andere huizen gerenoveerd.

patio waaraan de keuken is gesitueerd. De verdieping heeft een studeer- of slaapkamer met een groot balkon.
Verscheidenheid
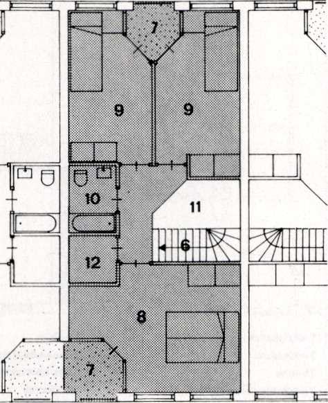
Afgezien van de grootte van de woningen ligt een grote mate van verscheidenheid in het plan besloten. De stedenbouwkundige situatie maakt dat soms in een rij de woningdiepte varieert. Een bocht in de Waterstraat geeft aan dat de aanliggende woningen een trapeziumvormige plattegrond hebben. De bejaardenwoningen, die uitkomen op de binnenzijde van het plangebied, krijgen zowel een serre als een tuintje. Verder is naast de steeds terugkerende loggia’s in een aantal woningen ook een vide te vinden. De woningen langs de Steenstraat komen aan de achterzijde uit op een galerij en bij een paar woningen tussen de Bitterstraat en het Aa plein is zelfs ruimte gevonden voor een patio. Er is sprake van wel 16 verschillende typen en de grootste serie van één type telt maar 10 woningen. De afgeknotte puntdaken of zadeldaken én de zo afwisselende plattegronden zijn door de architecten vakkundig benut voor het ontwerpen van fraaie binnenruimten waarbij de ruimtewerking vaak fascinerend is.
Materialen
De woningen worden aan de buitenzijde uitgevoerd in schoon metselwerk. Zo ook de wanden van gemeenschappelijke trappen en toegangsportalen. Binnenwanden, die ook worden gemetseld, worden later wit gepleisterd. Voor de vloeren wordt ter plaatse te storten gewapend beton gebruikt, gecompleteerd met een cement-dekvloer; de sanitaire ruimten uiteraard afgewerkt met tegels. Plafonds worden met een lichtgekleurde structuurverf bespoten. Direct onder de kap gelegen ruimten krijgen een plafondafwerking van geschilderd plaatmateriaal. De kap zelf wordt afgewerkt met isolerende dakplaten waarover twee lagen teervrije dakbedekking worden geplakt. Voor kozijnen, ramen en deuren wordt hout gebruikt. De grotere woningen krijgen gasgestookte c.v.-installaties met radiatoren, de tweekamerwoningen - waaronder de bejaardenwoningen - worden met elk twee gevelconvectoren verwarmd. Alle woningen worden voorzien van een aansluiting op het centrale antennesysteem.

Prijzen
Vanwege de grote verscheidenheid in woningen zijn uiteraard ook de verkoopprijzen erg verschillend. De goedkoopste woning kost ƒ 65.900,- terwijl er vijf elk meer dan ƒ 120.000,- kosten. De prijzen van de bedrijfsruimten schommelen zo tussen de vijftig- en zeventigduizend gulden en het merendeel van de parkeerplaatsen wordt verkocht voor ƒ 3.600,-. Van de 75 woningen vallen er 41 binnen de bestaande premieregeling. Er wordt nog gepoogd via extra rijkssubsidie meer woningen binnen de premieregeling te krijgen. Als argument hiervoor is aan het ministerie opgegeven, de hogere bouwkosten als gevolg van het werken in een stedelijke omgeving. Bij Sanders Verenigde Bedrijven b.v., die zowel de financiering als de uitvoering van het project verzorgen, heeft men al gemerkt dat dit inderdaad meer kosten met zich brengt. Tot op 5 m onder het maaiveld worden nog resten van oude funderingen aangetroffen. Heien of boren is daarom niet mogelijk. Gesleuteld wordt nog aan een methode om een ring van grote diameter in de grond te drukken en tegelijkertijd met een grijper het puin te verwijderen. Medio 1975 hoopt Sanders de eerste woningen op te leveren.
Besluit
Het is een verdienste van de gemeente Zwolle dat men tijdig heeft ingezien dat een binnenstad waar niet gewoond kan worden langzamerhand zijn binnenstadsfunctie verliest. Helaas is Zwolle in dit opzicht nog erg eenzaam. Niet minder is het een verdienste van de architecten Van Eyck, Bosch, De Ley en Knemeyer dat ze een zo afwisselend en op de bestaande stedelijke structuur afgestemd plan hebben ontworpen om dit ’gat’ te vullen. Een goede oplossing van een zo moeilijk probleem stimuleert hopelijk tot herhaling.






















