Popmuziek is uitgegroeid tot een professionele bedrijfstak en vormt een belangrijk onderdeel van onze hedendaagse cultuur. Toch is de liefhebber van goede dance- en popmuziek nog steeds aangewezen op enkele belangrijke podia in de Randstad of op kleine zaaltjes in verlaten oude panden in de regio. In Breda opende op 19 oktober het uitverkochte poppodium Mezz officieel zijn deuren voor het publiek. Daaraan ging een moeizaam besluitvormingsproces van jaren aan vooraf. Dat had natuurlijk te maken met geld, maar ook met de ontwikkeling van een visie waaraan de nieuwbouw van een poppodium moest voldoen. In 1996 presenteerde Erick van Egeraat zijn eigenzinnige ontwerp, dat meer is dan een organische blob die tegen een historisch pand aanleunt. Het is een trendsettend podium dat met zijn extraverte vorm niet alleen Breda als popstad op de kaart zet, maar waarin ook een aantal programmatische eisen slim is opgelost.

Het complex, inmiddels in de volksmond ‘pinda’ genoemd, is onderdeel van het stedelijk ontwikkelingsplan, ontworpen door oma voor de leegstaande militaire kazerne op het Chassé-terrein in Breda.' Gelegen in de zuidwesthoek van het terrein zal de zichtbare kwaliteit van de historische officiersmess die dateert uit 1899, het middelpunt worden van het binnenterrein van het voormalige barakkengebied. De organisch gevormde uitbreiding is aan de westkant van het historische gebouw geplaatst, duidelijk zichtbaar vanuit het amusementsgebied in de binnenstad van Breda. Gezien vanaf het toekomstige wooncomplex dat op het kazerneterrein zal verrijzen, is de vorm van het nieuwe gebouw alleen sluimerend aanwezig achter het schuine dak van de oude officiersmess. Het muziekcomplex huisvest een café, vier oefenruimtes, kantoren en een professioneel poppodium voor live optredens van bands en deejays. Mezz wil het komende seizoen ongeveer tweehonderd optredens in alle denkbare stijlen programmeren. De organisatie richt zich daarbij zowel op beginnende lokale bands als op acts uit het nationale- en internationale clubcircuit.
Het historische gebouw is volledig gerenoveerd. Voor de oude gevel is een betonnen terras gemaakt met daaronder een fietsenkelder. Het café is aan de
zijkant toegankelijk en biedt plaats aan 150 bezoekers. De kantoren zijn gesitueerd op de eerste verdieping die los in het rechthoekige gebouw lijkt te zweven. De hoge raampartijen van de begane grond zijn nog deels zichtbaar. De organische vorm van de popzaal dringt de kantoorruimte in en vormt een deel van de binnenmuur. Hierin zijn rechthoekige vensters aangebracht. Ook de oefenruimtes, ter grootte van een garagebox, zijn ondergebracht in het oude gebouw.

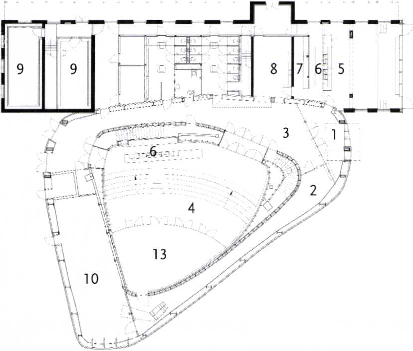
1 entree 2 kassa 3 foyer 4 auditorium 5 café 6 bar 7 keuken 8 garderobe 9 oefenruimte 10 laadruimte 11 terras 12 entree fietsenkelder 13 podium
Het auditorium bestaat uit akoestische overwegingen uit twee delen, een aparte schil die als buitenhuid functioneert met daar binnenin een organisch gevormd volume.2 In dit binnenste volume bevindt zich de eigenlijke popzaal. Deze heeft een schelpvormig podium met daaromheen enkele brede statreden en daarboven een zwevende tribune. Dit binnenste deel is met behulp van computermodellen geoptimaliseerd qua zichtlijnen en akoestiek. Bij de ontwikkeling van het auditorium is veel aandacht besteed aan technische voorzieningen zoals de licht- en geluidsinstallatie. In de hoek van de tribune is een draaitafel geplaatst voor deejay-optredens. Hij deelt deze plek met de licht- en geluidstechnicus. De popzaal is voorzien van een enorme luchtverversingsinstallatie die verse lucht van buiten door de kieuwen in het koperen dak aanzuigt en in de zaal blaast. Onder de statreden wordt de lucht afgezogen. De enorme buizen van het systeem bevinden zich tussen de buitenschil en de popzaal, maar zijn niet zichtbaar in de tussenruimte. Via een efficiënte laad- en losinrichting is muziekapparatuur eenvoudig aan- en af te voeren. Het interieur kenmerkt zich door een sober kleur- en materiaalgebruik. De gietvloeren zijn antracietkleurig en de gekromde volumes in het interieur zijn wit gestuct of betimmerd met buigzame stroken Meranti-hout. Verder zijn enkele wanden zilvergrijs gelakt en is het café deels betimmerd met padoek panelen. Erick van Egeraat streeft naar een combineren en tegelijk opheffen van tegenstellingen. Hij verwijst daarbij naar een barokke architectuur die hij niet om zijn vormentaal waardeert, maar om zijn complexe gelaagdheid. Disharmonie en asymmetrie hebben bij hem geen negatieve connotatie. Het gaat hem om het opwekken van emoties. Dat is vooral merkbaar in het interieur. Erick van Egeraat speelt een subtiel spel met de verschillende gebruikersgroepen, die het interieur allen op een eigen manier zullen ervaren. De haast serene ruimte met wit gestucte wanden tussen de buitenschil en de organische popzaal is uitsluitend toegankelijk voor het personeel en de artiesten. In de punt van de blob bevinden zich de artiestenvertrekken. De popzaal heeft een eigen ingang. Een enorme deur in de buitenschil opent naar buiten en functioneert dan als luifel. Het publiek betreedt een schaars verlichtte ‘tussenruimte’ met links de deuren die toegang bieden tot de popzaal en rechts de toiletgroepen. Deze delen de bezoekers van de popzaal met de cafébezoekers zonder dat ze in eikaars ruimte kunnen komen. Een glazen wand houdt de bezoekers groepen gescheiden.

De materialisering van de buitenschil is ontwikkeld om een zo groot mogelijk contrast met het bakstenen gebouw te creëren. Deze is gemaakt van gebogen koperen plaatmateriaal, dat door de weersinvloeden na verloop van jaren een speciaal groenig patina krijgt. Momenteel oogt deze huid nog bruin gekleurd. Erick van Egeraat wenst een chemische behandeling toe te passen om het oxidatieproces te versnellen. Een natuurlijk verouderingsproces heeft door het continu veranderende uiterlijk ook zijn charme. Het proces zorgt voor een ‘levende’ architectuur, die past bij een levende popcultuur.
NOTEN
1 Zie de Architect 1997, nr. 4, p. 40-43.
2 Zie de Architect 1997, nr 4, p. 62.




