Het gehele bouwblok wordt gekenmerkt door een mengvorm van woontypologieën. Dit zowel naar grootte, woontype en doelgroep. Dit gemengde woonmilieu schaart zich rond een gedeelde binnentuin met hoge verblijfskwaliteit, waarin zich tevens lage grondgebonden woningen kunnen bevinden. Project Cadix betreft een hoek van dit bouwblok.

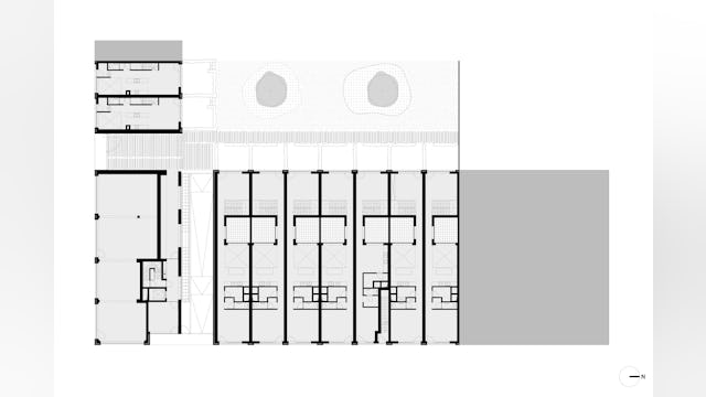
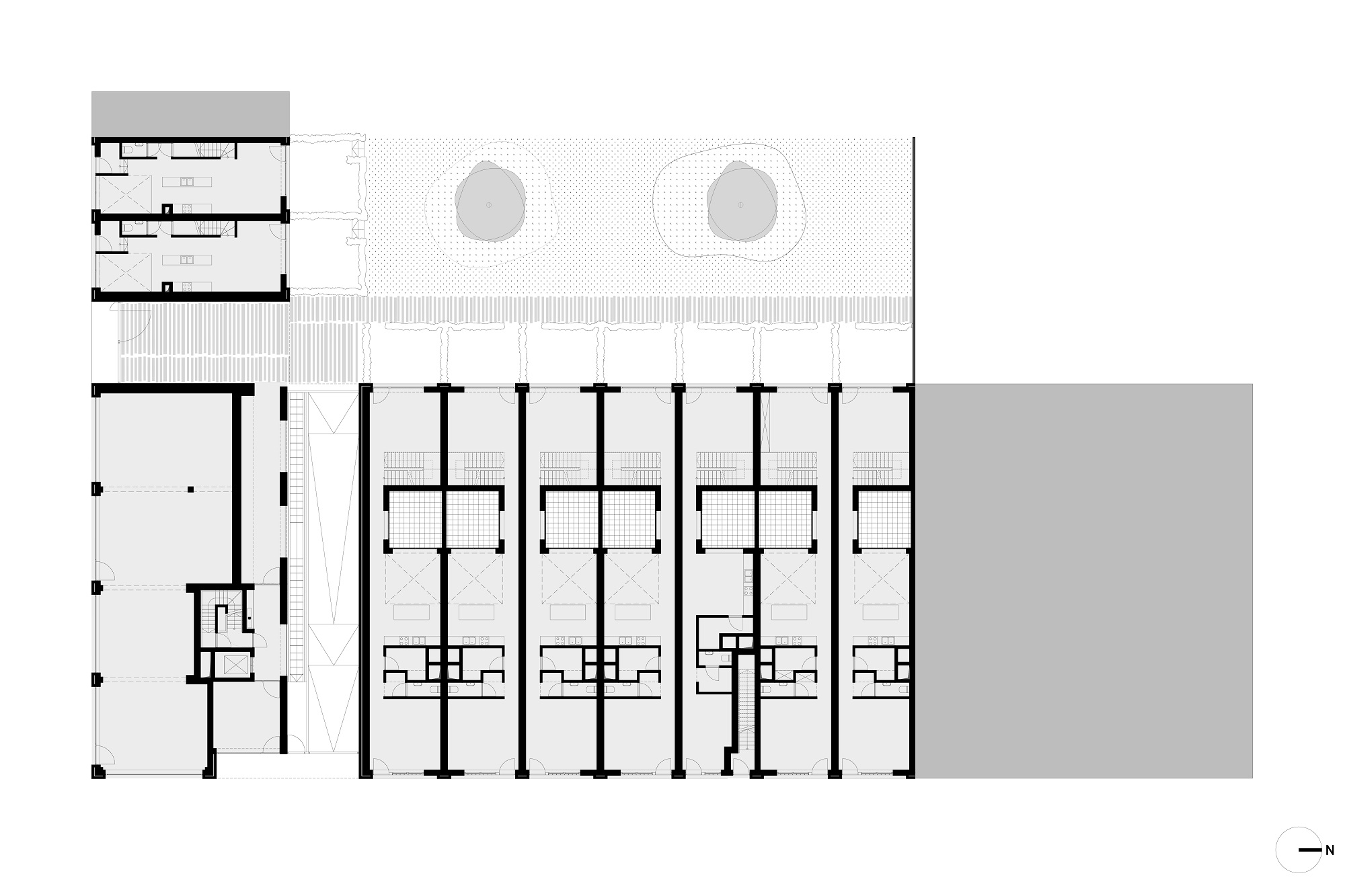
De voornoemde mengvorm zet zich ook door op gebouwniveau. Ons ontwerp bevat een twee bouwlagen hoge plint met grondgebonden bel-étage rijwoningen in passiefbouw, met daarboven één tot drie lagen lage-energie appartementen. Op de hoek bevinden zich gelijkvloerse winkelruimten.
De grondgebonden woningen zijn smal en diep. Ze worden telkens gestructureerd rond een privatieve patio waardoor diep invallend zonlicht en een maximaal gevelvlak bereikt wordt, ondanks hun ingesloten ligging. De hoger gelegen appartementen zijn breed en ondiep, waardoor ruime terrassen en een goed uitzicht gegarandeerd kunnen worden.

Deze stapeling, in combinatie met de aan de straatzijde ontwikkelde ontsluiting, resulteert in een sculpturaal hoekvolume dat zich naar schaal aanpast aan de aanliggende straten. De diepe grondgebonden woningen bepalen met hun geringe hoogte het eerder kleinschalige en geborgen karakter van de binnentuin.
Het gebouw wordt in grote bewegingen opgebouwd, met een strakke ritmering, herkenbare elementen, en stoere materialen. Daarbij ontwikkelt het een uitgesproken karakter, maar alludeert het tegelijkertijd aan de historische morfologie en architectuur van de wijk.


































