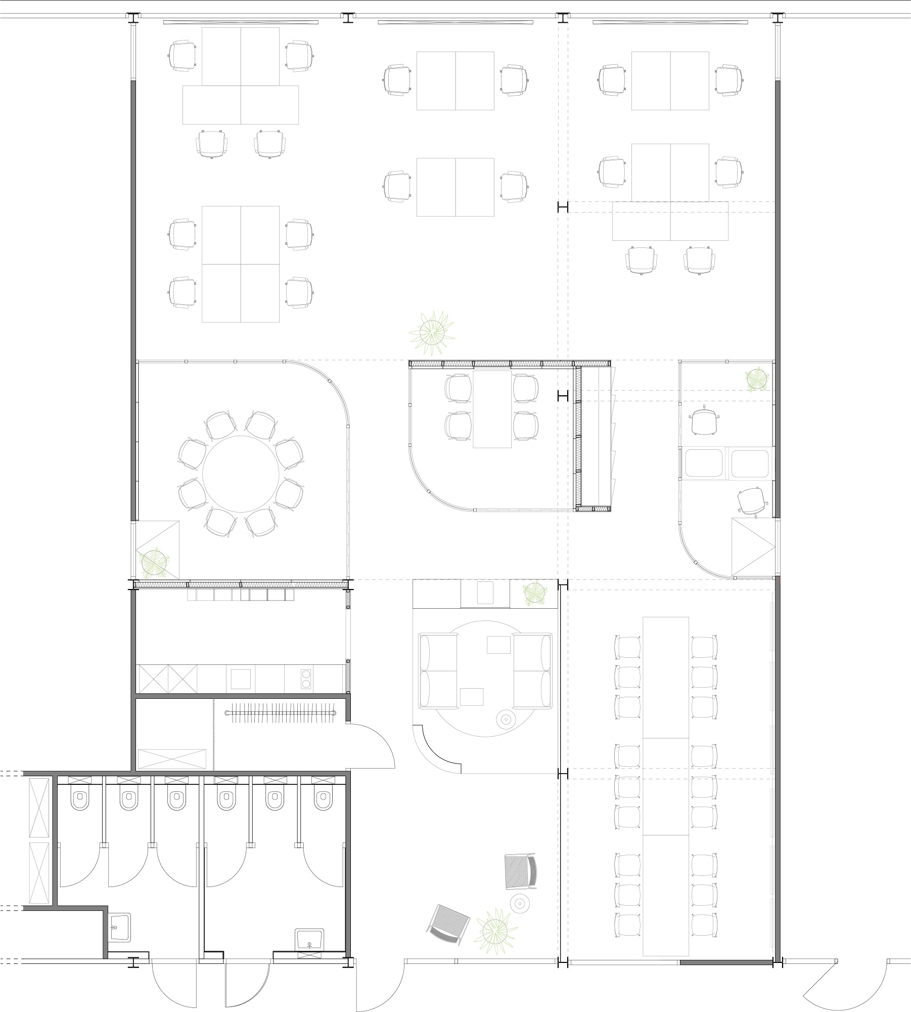
Toelichting KVa - Het interieurontwerp bestaat uit drie duidelijke zones die een eigen karakter hebben afhankelijk van de functie; de multifunctionele zone, de meeting en belzone en de werkzone. In de grote fabriekshal worden wekelijks beurzen en andere evenementen georganiseerd. Aan de fabriekshal grenst een gezamenlijke gang die toegang biedt tot het kantoor dat KVa heeft ontworpen.

Via de levendige multifunctionele zone kom je het kantoor binnen. In deze ruimte kunnen zakelijke relaties worden ontvangen, is er mogelijkheid tot het organiseren van kleine events, en wordt er dagelijks geluncht. De entree van dit kantoor is voorzien van een podium waarop twee akoestische banken en een opmaat ontworpen koffiemeubel staan. Dit podium biedt hiermee ruimte aan informeel contact en ontspanning. De lunchruimte is voorzien van drie lange lunchtafels. Aan de wand hangt een op maat gemaakte portfolio rails waar de opdrachtgever de ruimte heeft om haar werk te presenteren.
De meeting en belruimte bestaat uit drie boxen; twee belruimtes, een kleine meeting room en een grotere meeting room. Deze drieboxen in de middenzone zijn anders gematerialiseerd dan de twee aangrenzende zones; op het verlaagd plafond is witte akoestische spray van gerecycled papier toegepast, en op de
vloer een blauwgrijze biologisch afbreekbare linoleumvloer. Ze vormen tegelijkertijd ook de doorgang van de multifunctionele zone naar de werkzone.

De essen frames, de wandbekleding en het meubilair op maat van essen geven de ruimtes een warm en fris karakter. Binnen de essen frames zijn (ronde)
getinte panelen van gerecycled acryl toegepast. Om de juiste privacy te krijgen in de meeting ruimtes zijn de heldere panelen door de meubelmaker bewerkt met een borstel, hierdoor ontstaat een diffuus effect. De openingen van de boxen zijn uitgevoerd in industriële strokengordijnen; een knipoog naar het industriële karakter van de ruimte.
De werkzone is aan de gevelzijde van de studio gesitueerd en ontvangt daardoor het meeste daglicht. Door een slimme plaatsing van de stroompunten en armaturen zijn in deze ruimte zijn verschillende bureauopstellingen mogelijk, en kan het consultancy bureau rustig verder groeien. Er kan zowel staand als zittend gewerkt worden. In de materialisatie van dit ontwerp is uitsluitend gebruik gemaakt van duurzame bouwmaterialen, stoffering en verlichting.




































