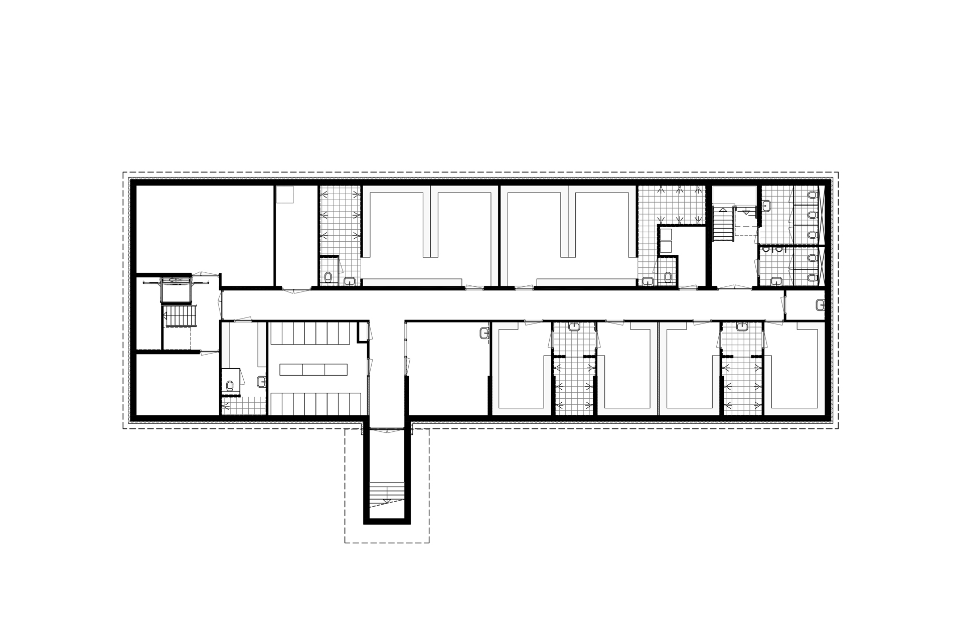
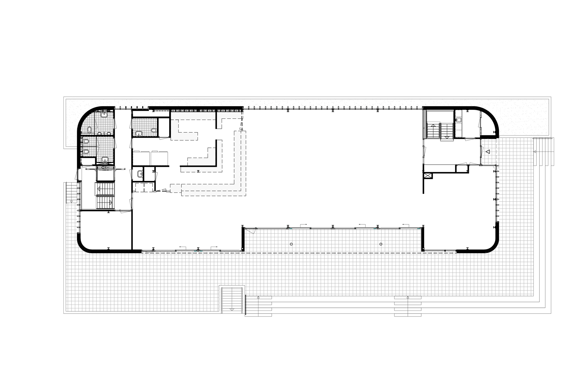
Toelichting EVA architecten - Gekozen is om de kleedkamers deels verdiept te leggen en daarop het clubhuis te realiseren. Doordat het clubhuis hoger staat is er mooi zicht op de velden, en het verhoogde maaiveld dient meteen als terras en tribune. Het souterrain is vormgegeven in beton, het lichte clubhuis met zijn houten gevelbekleding contrasteert daar mee en staat als een paviljoen op het basement.

De veldzijde is zo transparant mogelijk gehouden met glazen puien die in de zomer open kunnen staan waardoor binnen en buiten in elkaar overvloeien. Om de ondergeschikte functie van de overige gevelopeningen te accentueren wordt het zicht daardoor gefilterd door lamellen. De gevel is opgetild naar de zijde van de aankomstroute en ontsluiting van het terrein om aan te sluiten bij de hoogte van de naastgelegen sporthal en de entree en het gebouw statuur te geven. De veldzijde is juist laag gehouden om de menselijke maat te houden: dit is ook de terras- en verblijfsruimte.
De indeling van het clubhuis is opgedeeld in verschillende plekken die open en dicht gezet kunnen worden al naar gelang het gebruik daar om vraagt. Zo is de indeling flexibel en voor verschillende manieren van gebruik en aantal aanwezige mensen geschikt. Het interieur werd in samenspraak met de leden ontworpen door Karakter Interieurontwerp.

Het gebouw heeft geen gasaansluiting, een cradle to cradle gecertificeerde gevelbekleding van hout en waterloze wc’s. De zonnepanelen op het dak en de warmtepompen zorgen ervoor dat het gebouw meer energie opwekt dan het gebruikt. Het hoofdveld heeft LED verlichting, als binnenkort ook de traditionele verlichting van de overige velden wordt vervangen door LED is de verwachting dat het hele complex energieneutraal wordt.































