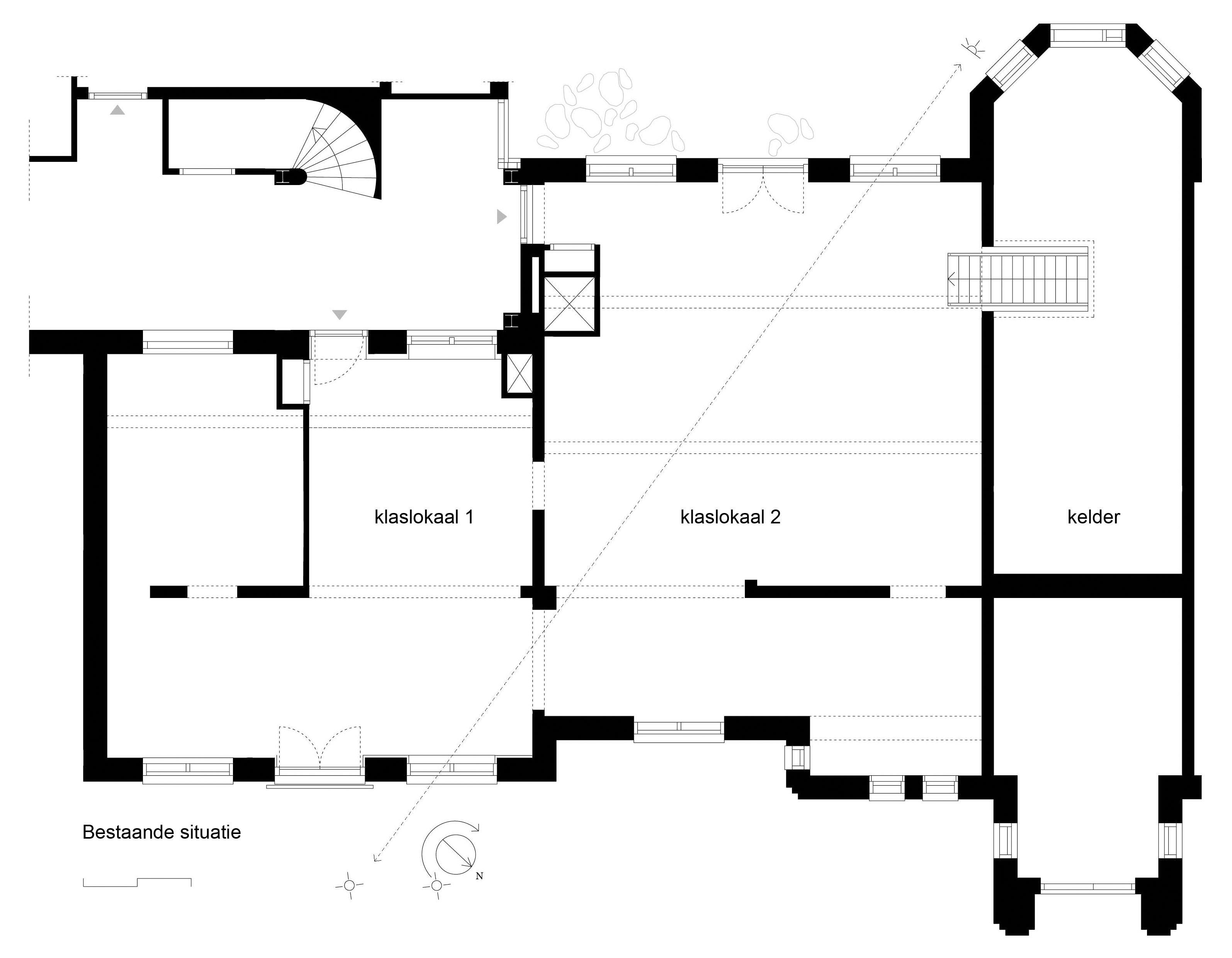
Het door Ana Rocha Architecture getransformeerde appartement bevindt zich in een voormalig schoolgebouw en buurtcentrum in Den Haag. Het complex bestaat uit gebouwen uit het begin van de twintigste eeuw en uit de jaren tachtig. In het pand bevinden zich nog tien andere kluswoningen. De renovatie van het exterieur en de gemeenschappelijke ruimtes is door de gemeente uitgevoerd.

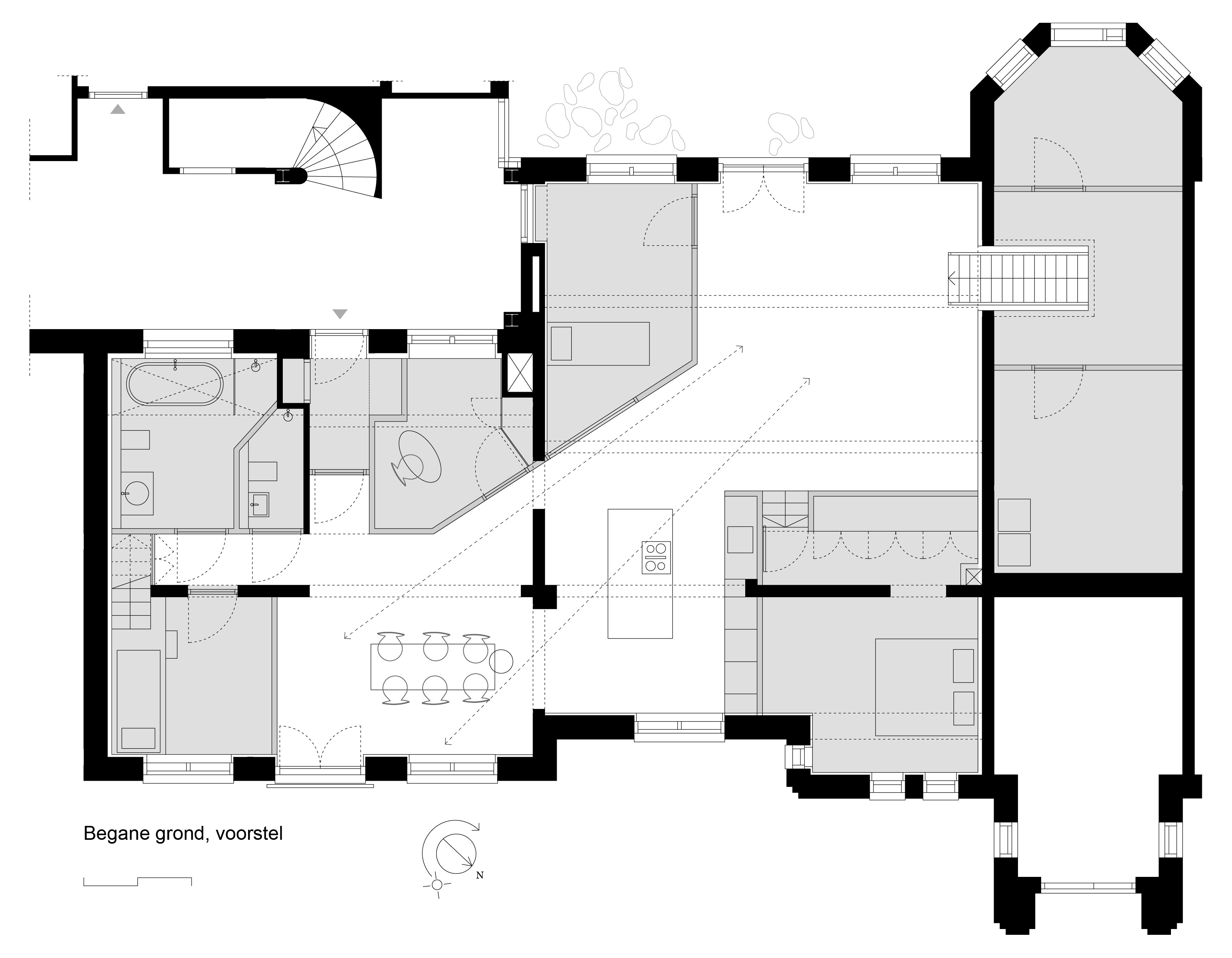
De opdrachtgever, het designersduo Carvalho & Bernau, vroeg het architectenbureau om in het appartement van 140 vierkante meter minimaal drie slaapkamers met daglicht te realiseren. Daarnaast was een grote speelruimte voor Alba, de éénjarige dochter van het stel belangrijk.
Licht speelt een belangrijke rol in het ontwerp van Ana Rocha Architecture. Het architectenbureau viel het op dat aan de tuinkant het avondlicht een warme sfeer creëert, terwijl aan de straatkant het ochtendlicht dat door de hoge ramen binnenvalt de ruimte zacht en aangenaam maakt.

Het architectenbureau introduceerde een open diagonaal in de woning, waar 's ochtends en s'avonds het licht doorheen valt. De drie volumes waarin de slaapkamers zich bevinden vormen de wanden van deze lijn.

De zitruimte bevindt zich aan de avondlichtzijde, de keuken in het midden en de eetruimte wordt verlicht door ochtendlicht. De diagonaal waarin deze functies zich bevinden maakt lange zichtlijnen door de woning mogelijk, maar geeft nooit de hele ruimte prijs. Subtiele doorkijkjes zorgen voor spanning. De ruimten vloeien in elkaar over, zijn één geheel, maar staan tegelijk op zichzelf.

Berkentriplex
Ana Rocha Architecture gaat met het ontwerp warmteverlies tegen door hoogwaardige isolatie toe te passen. De betonnen balken in het plafond en de baksteen wanden zijn ingepakt met een Kingspan- en gipsplaatisolatielaag.

Het casco is wit geschilderd. Oorspronkelijke elementen als de boog uit de schoolgang en uitsparingen voor deuren zijn intact gelaten. De nieuwe volumes zijn met berken triplex bekleed en gaan een mooie dialoog aan met de bestaande structuur. De volumen ogen soms als solide sculpturen, bijvoorbeeld door het portiek naar de slaapkamer of de nis richting gang. Maar soms ook juist als lichte wanden waar het echte dikte van het materiaal zichtbaar is door bijvoorbeeld de uitsnede van het grote vierkante raam.

Interne ramen
Elke slaapkamer heeft een intern raam. Het raam in de kamer van Alba bevindt zich op de eerste verdieping. In de kinderkamer is een opgetild bed gerealiseerd waarvandaan een trap naar haar ‘verborgen’ speelruimte leidt. De mezzanine bevindt zich boven de twee badkamers.

Beeld Christiane WirthIn verband met de hoog gesitueerde gevelramen is ook de ouderslaapkamer opgetild. De kamer is te bereiken via een eigen portiek met trap.
De derde kamer, de gastenkamer, bevat een extra groot raam richting de keuken in het centrum van de woning. Het licht bereikt hierdoor via het gastenverblijf het hart van de woning.























