Toelichting door Namelok
Het huis, dat uitkijkt op een typisch Nederlands polderlandschap met de skyline van Rotterdam aan de horizon, bestaat uit een zware voet met daarop een asymmetrisch houten volume. Het huis staat in lijn met het langgerekte perceel, waardoor er rondom ruimte is voor terrassen en een tuin.
De drie belangrijkste materialen die in de gevel worden gebruikt – grove krabpleister, verticale western red cedar latten en lichtgrijze bakstenen - werken perfect samen in het definiëren en verenigen van de verschillende delen van het huis. De gemetselde schoorsteen heeft een buiten- en binnenhaard en verbindt het tuinterras met de woonkamer.

Verschillende sferen
De belangrijkste kenmerken zorgen ervoor dat het ontwerp goed aansluit op de bewoners. Het huis is ontworpen voor een jonge moderne familie. Het idee voor dit concept is geïnspireerd op de designprincipes van Lina Bo Bardi en Aldo van Eyck. De scheiding van de woongedeelten, met functionele en eenvoudige elementen, geven iedere ruimte in het huis een eigen doel en functie.

“We probeerden het huis op zo’n manier te ontwerpen dat alle kamers een verschillende sfeer uitdragen voor uiteenlopende stemmingen. Het maakt gebruik van de designprincipes van de twee beroemde architecten om op deze manier karakteristieke ruimten te creëren. Deze zorgen ervoor dat de familie zich op ieder moment van de dag thuis voelt.”
Keuken als kloppend hart
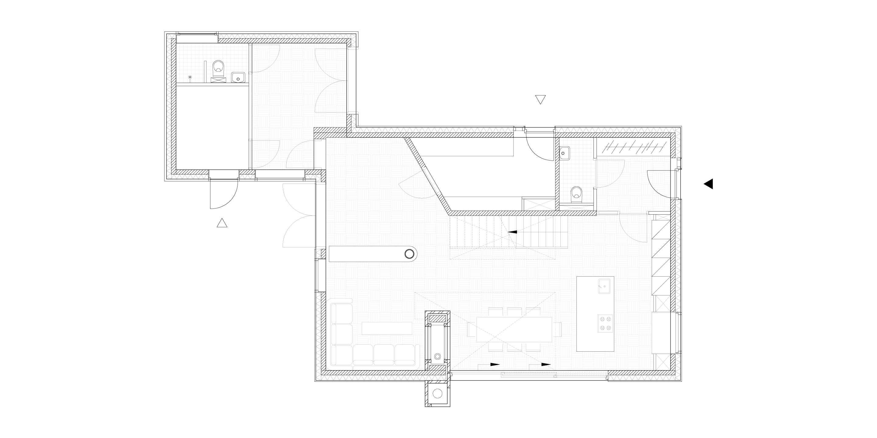
Het interieur van het huis is opgebouwd rond de ruime keuken en leefkamer. De open en lichte keuken strekt zich, via een grootste vide, helemaal uit tot aan het dak. Dit staat in groot contrast met de zitkamer aan de andere kant van de schoorsteen: een intieme, dim belichte plek voor rustigere avonden met het gezin. Door karakter te geven aan de verschillende ruimtes in het huis biedt het huis op alle plekken een identiteit die bij de bewoners past.

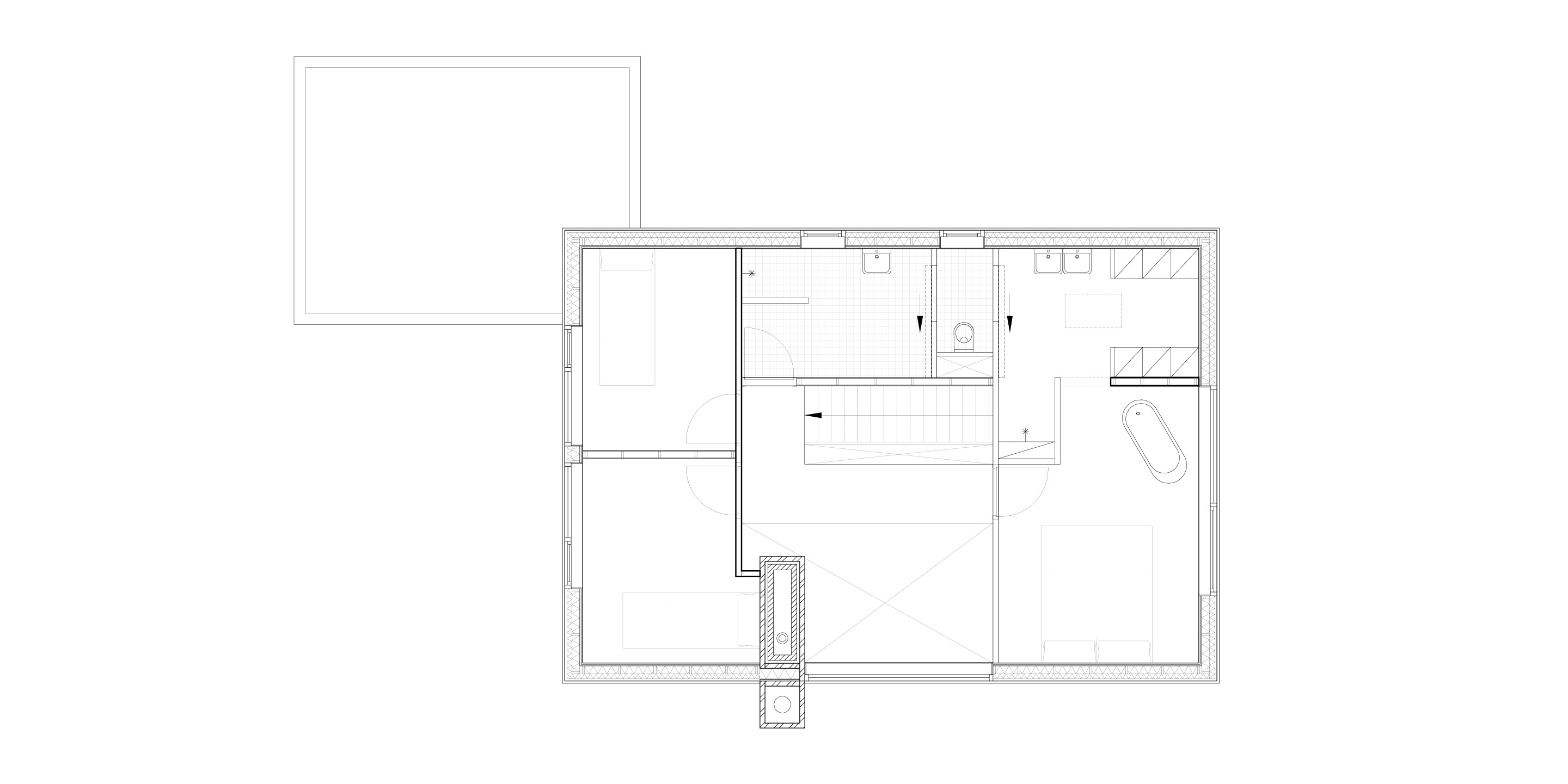
De tweede verdieping bestaat uit een hoofdslaapkamer met eigen badkamer, twee (kinder)slaapkamers en een aparte badkamer. De sprekende, maar minimalistisch ontworpen kamers zijn met elkaar verbonden met een loopbrug langs het grote videraam.
Namelok haalt veel inspiratie uit mode en presenteert hun projecten in collecties. House 1 was onderdeel van de AW17 collectie ‘Playtime’, wat een eerbetoon is aan de radicale en speelse ontwerpen van Lina Bo Bardi.
In het ontwerpproces van een huis in een nieuwbouwwijk is het een uitdaging om een warm karakter te ontwerpen. Meestal ontstaat dit in de loop der tijd, als de nieuwigheid ervan af is en de eerste rafelrandjes zichtbaar beginnen te worden. Door sprekende materialisatie en een moderne interpretatie van een bekende filosofie is Namelok in staat geweest een nostalgisch gevoel op te roepen. Het huis is zowel naar binnen als naar buiten gekeerd in interne verbindingen en externe enscenering.















































