De beoogde multifunctionaliteit heeft veel ontwerpvragen opgeroepen, zo laat Reset Architecture weten: “Hoe maak je de ruimte betekenisvol voor de stad en voor het gebouw? Hoe kun je kunst tentoonstellen en deze steeds veilig houden in een multifunctionele omgeving? Hoe gebruiken de bezoekers de ruimte overdag en tijdens een concert? Hoe omgaan met het monumentale karakter van de zaal? Hoe de beperkingen van de hal verbeteren; het gebrek aan daglicht en de slechte akoestiek?”

Eén ingreep
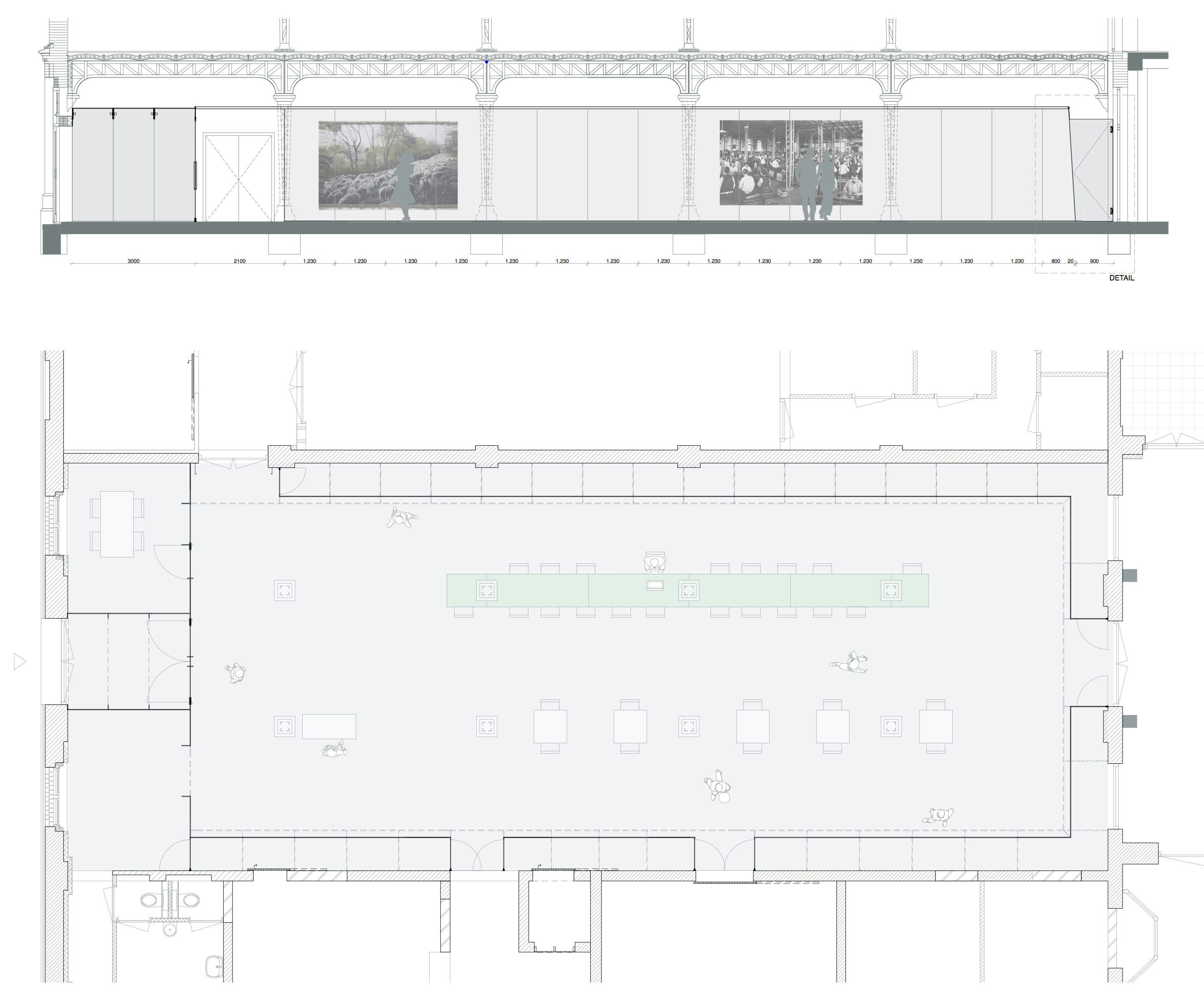
Alle nieuwe functionele eisen van De Spiegelzaal zijn door Reset Architecture geïntegreerd in één heldere ingreep. Parallel aan de vier bestaande wanden van de hal is een glazen carré toegevoegd. Deze omloop van ongeveer een meter breed reduceert het gebruiksoppervlak van de zaal, maar maximaliseert de mogelijkheden voor multifunctioneel gebruik.

Zicht en bescherming
Op de bestaande wanden wordt met wisselende tentoonstellingen werk van jonge kunstenaars getoond. De glazen wanden die hiervoor staan bieden zicht op de kunst terwijl ze deze tegelijk beschermen. Zo kan de kunst blijven hangen tijdens andere evenementen in het kunstcentrum. Aan de entreezijde zijn in de glazen wand eveneens een tochtportaal en twee ruimten opgenomen.

Hoek
Opvallend is dat de geharde glaspanelen onder een hoek van 3,5 graden zijn geplaatst. Aan de onderkant staan de panelen op de vloer, aan de bovenzijde worden ze door een stalen strip op afstand van de muur en het plafond gehouden. Daarmee wordt de lichtreflectie van het glas en de flutter echo verminderd. De akoestiek wordt verder verbeterd door baffles van gerecyclede kleding die met magneten aan de stalen constructie hangen.

Open karakter
Door de vernieuwde entree verandert het gesloten karakter van de voormalige sigarenfabriek waarin het kunstcentrum gevestigd is. “In de nieuwe situatie wordt het gebouw overdag beter bezocht en mensen ook de hoofdtentoonstellingszaal ontdekken. Tijdens concerten werkt de zaal als een binnenplein waardoor mensen niet meer buiten in de rij staan en tijdens een concert is er de gelegenheid om even te ontsnappen aan de intensiteit van de muziek en rond te kijken naar de kunst.”, aldus Reset Architecture.



