“De transitie van ‘made in China’ naar designed in China’ dwingt Chinese organisaties om hun activiteiten en methoden te heroverwegen. Het Chinese kantoor ondergaat daarom grootschalige veranderingen. Veranderlijke organisaties, nieuwe werkwijzen en de impact van technologie veranderen het 21e eeuwse kantoor op een enorme manier” zo laat Daan Roggeveen van MORE architecture weten.

Transitie
Ook autobedrijf MINTH onderging een flinke transitie. Waar het bedrijf in 1992 is opgericht als leverancier van auto-onderdelen, produceert het nu zelf elektrische auto’s. In diezelfde tijd is de werkplek veranderd van desktop tot laptop tot mobiel. MORE ontwikkelde daarom een strategie voor de kantooromgeving die niet gebaseerd is op programma, maar op verandering.

Contrast
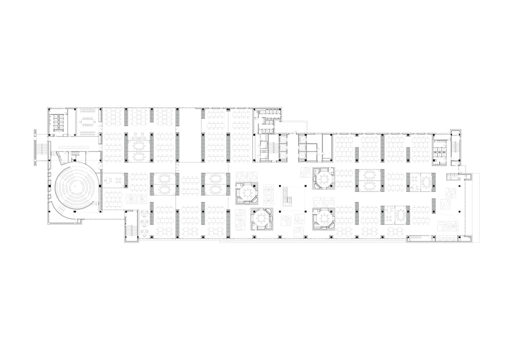
In het ontwerp wordt het contrast tussen de vaste en flexibele elementen gemaximaliseerd. Een systeem van muren, ‘de barcode’, is gefixeerd en definieert diverse zones binnen de uitgestrekte werkomgeving. Deze bars staan vast, terwijl de ruimte ertussen in de loop van de tijd kan worden verdicht en aangepast aan toekomstige ontwikkelingen. De typologie kan worden gezien als crossover tussen het traditionele cellenkantoor en het open kantoorlandschap.

Specials
Opvallend zijn de speciale ruimtes die de werkomgeving onderbreken en samenwerking stimuleren. Zo is er groene lobby die plek biedt aan ontspanning, en worden spontane besprekingen gestimuleerd in informele zones met gekleurde, custom made meubels. In het ovale, centraal georiënteerde auditorium staat één spreker centraal, terwijl de James Bond-achtige kamers juist voor gezamenlijke brainstorms zijn ingericht.

Materialisering
Qua materialisering sluit het ontwerp aan op de ambitie van MINTH een leidend tech-bedrijf te zijn. Het strakke staal, glas, aluminium en semitransparante polycarbonaat zorgen voor een moderne uitstraling. Op elke verdieping wisselt de richting van de verlichting en de materialisering van de bars om een eigen identiteit te creëren. Het strekmetalen plafond verhuld alle installaties, baffles en verlichting, en refereert met het strakke grid naar de identiteit van MINTH.




