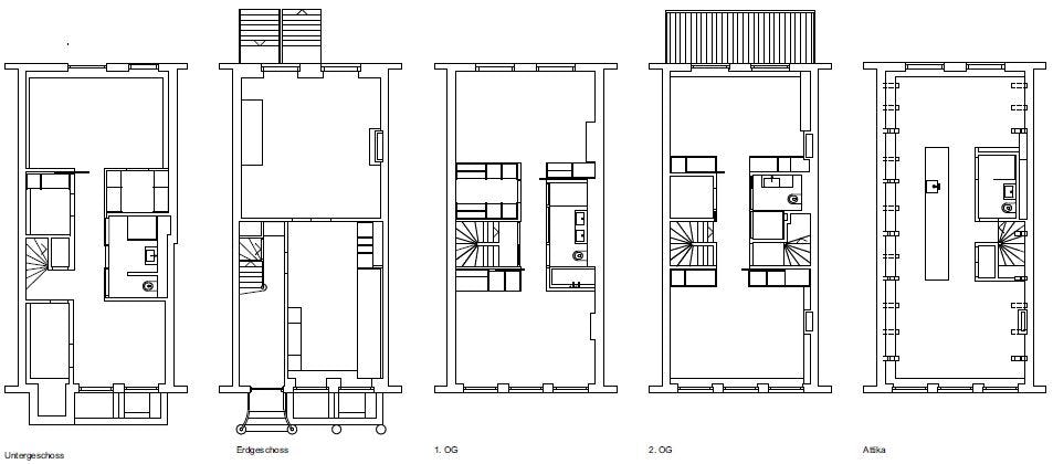
De oorspronkelijke plattegrond met een trappenhuis en voorzieningen centraal in de langwerpige hoofdvorm is het uitgangspunt voor het ontwerp. Op de verdiepingen worden de trappen en badkamers met opslagruimten en ingebouwde kasten gecombineerd tot compacte en heldere volumes.
beeld: BGP Architekten
Rust
Zichtlijnen over de volledige lengte zorgen voor een ruimtelijk gevoel. De kamers aan de voor- en achterzijde staan via de gang in open verbinding en kunnen middels schuifdeuren worden afgesloten. Zowel deze verdiepingshoge schuifdeuren als de draaideuren zijn opgenomen in de houten wanden en dragen zo bij aan een rustige uitstraling.
foto: Marcel van der Voorst
Woonvertrekken
Op de beletage liggen de keuken en de woonkamer. De wanden, vloeren en het bestaande houtwerk zijn hier strak en licht afgewerkt waardoor de rijk geornamenteerde plafonds sterk tot uitdrukking komen. Op zolder is een tweede woonverdieping gerealiseerd. Hier ligt de kern slechts aan een zijde, waardoor ruimte is gemaakt voor een centraal keukenelement.
foto: Marcel van der Voorst




