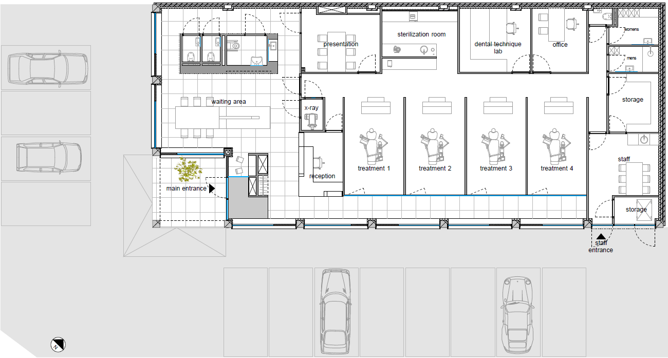
“Het ontwerp volgt een ‘box-in-box’ concept waarin een functionele ‘doos’ is geplaatst in het hoofdvolume. De doos is naar achteren geplaatst om een duidelijke scheiding tussen de personeelsfuncties en het publieke bezoekers gedeelte mogelijk te maken. Tegelijk ontstaat er aan de voorzijde van de behandelkamers een gang, die het gebouw ook een gelaagdheid van buitenaf geeft”, zo laat Dennis Villanueva weten.
plattegrond duodent, voor meer tekeningen zie bijgesloten PDF
Privacy
Grote aluminium puien met veel glas en houten paneelinvullingen verzachten het karakter van de betonnen structuur. Op de hoek markeert een opengehouden beuk de entree. Vanuit hier bereik je direct de receptie die is geïntegreerd in de hoek van de functionele doos. Hierachter scheidt een glazen wand de gang van de behandelkamers. De speciaal ontworpen bestickering zorgt voor privacy zonder veel daglicht te blokkeren.
foto: Villanueva Architect
Wachtkamer
In de hoge wachtruimte zijn twee lagere volumes geplaatst die de ruimte definiëren. In nissen in deze volumes zijn verschillende functies als de garderobe, speelhoek en toiletten opgenomen. “Een sculpturale custom-made banktafel meubel is geplaatst in het midden van de wachtruimte om een ‘speels’ karakter te geven samen met de abstracte fotowand van de oude kerk van Panningen. De toegepaste kleuren en materialen creëren een schoon en rustgevende atmosfeer”, aldus Villanueva.
foto: Villanueva Architect




