De gevel heeft een horizontale geleding die door betonnen randen wordt aangezet. Hiertussen wordt rood metselwerk afgewisseld met accenten in goudgeel aluminium. De ramen liggen in diepe neggen die in eenzelfde kleur zijn afgewerkt. Rond de entree krijgt de school een herkenbaar gezicht door de verticale lamellen en belettering.
Beeld Scagliola/Brakkee
Licht
In het interieur worden de lichte vloeren en wanden aangevuld met houten accenten, zoals de tribunetrap in de aula en het plafond. Rond de aula liggen twintig lokalen, verspreid over twee verdiepingen. Met gekleurde kozijnen en garderobekasten worden de verschillende klassen herkenbaar. Door de lichtstraat valt strijklicht tot in het hart van de school.
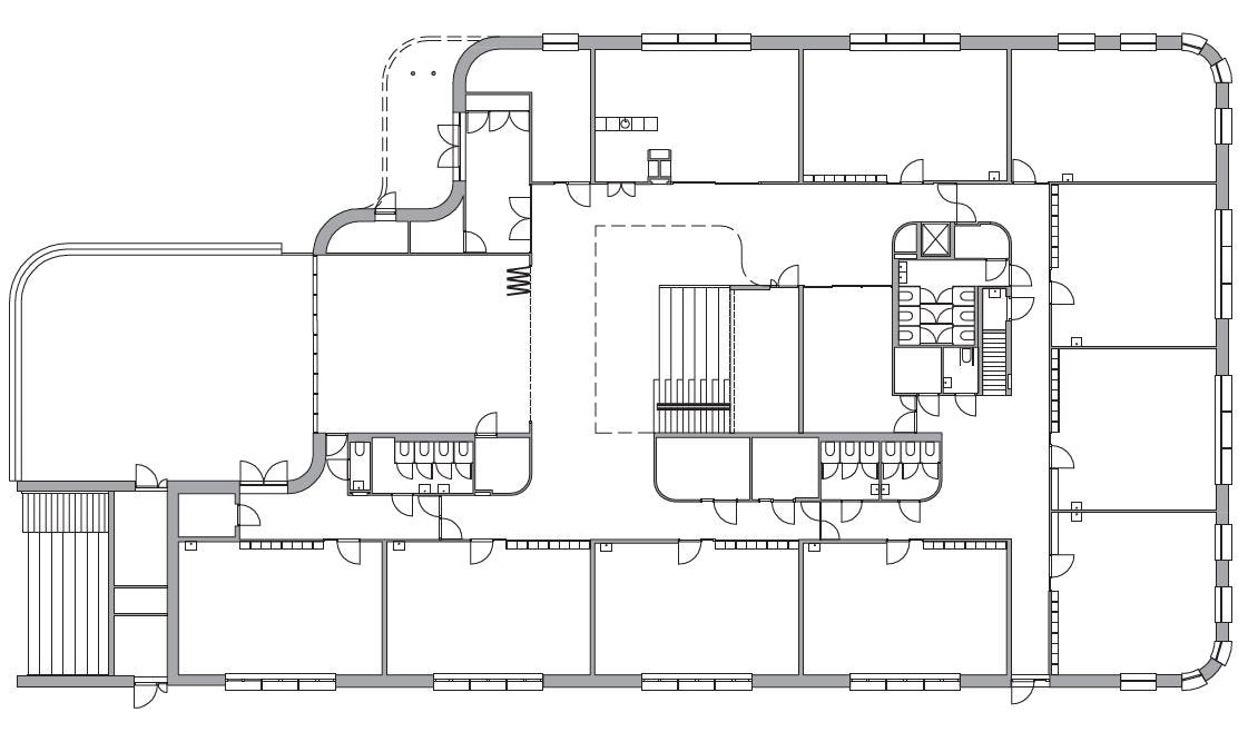
Plattegrond
Gebruik
De ruimtes kunnen flexibel worden gebruikt. Zo verbindt een vouwwand het speellokaal met de aula en zijn speelhoeken en werkplekken aan de gangen gekoppeld. Het speellokaal kan ook worden geopend naar het schoolplein. Een gedeelte hiervan is afgeschermd door een metselwerk muurtje dat tegelijk een bankje vormt aan het plein. Daarnaast ligt hier een tweede tribunetrap die de verdieping met het plein verbindt en buitenlessen mogelijk maakt.
Beeld Scagliola/Brakkee



