Het vier verdiepingen tellende herenhuis uit omstreeks 1910 kent een voor die tijd karakteristieke typologie. Een brede beuk met kamers-ensuite ligt langs een smalle beuk met trappen en dienende ruimtes. Door binnen de bestaande stramienmaten twee verdiepingen samen te voegen krijgt het huis een zeer ruimtelijke woonruimte zonder dat de klassieke opzet wordt verstoord.
Nieuwe vide
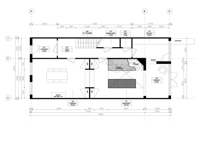
Op de begane grond liggen een eetkamer, keuken en tuinkamers in elkaars verlengde. In de middelste kamer is een vide uitgespaard die de twee lagen verbindt. Een vrijstaand open keukenblok en achterliggende nieuwe trap vormen het hart van de ruimte. De grote puien aan de achterzijde laten veel daglicht binnen, dat door de vide tevens dieper in het huis valt. Hoewel de woonruimtes verbonden zijn kunnen ze dankzij de behouden ensuite-deuren van elkaar worden gescheiden.
Uitzicht
De voormalige keuken op de tweede verdieping is omgebouwd tot badkamer. Hier heb je vanuit een vrijstaand ligbad uitzicht over het stedelijk panorama. In de smalle beuk is een houten badkamermeubel ingebouwd met een zitplek aan het raam. Ook hier speelt Antonia Reif architectuur in op de bestaande kwaliteiten zonder schroom voor eigentijdse toevoegingen.



