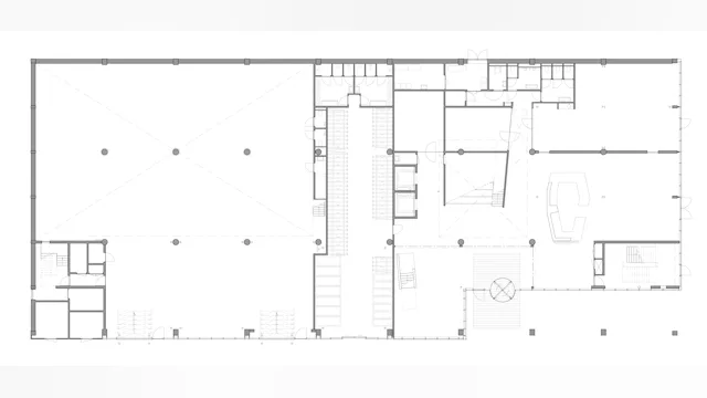
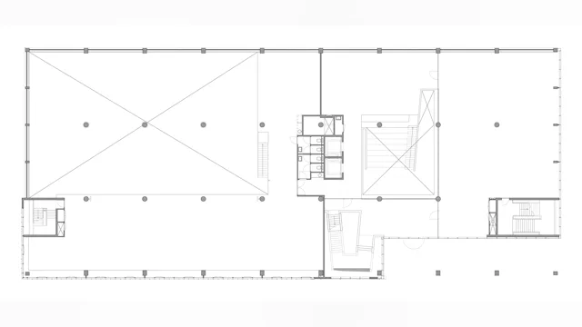
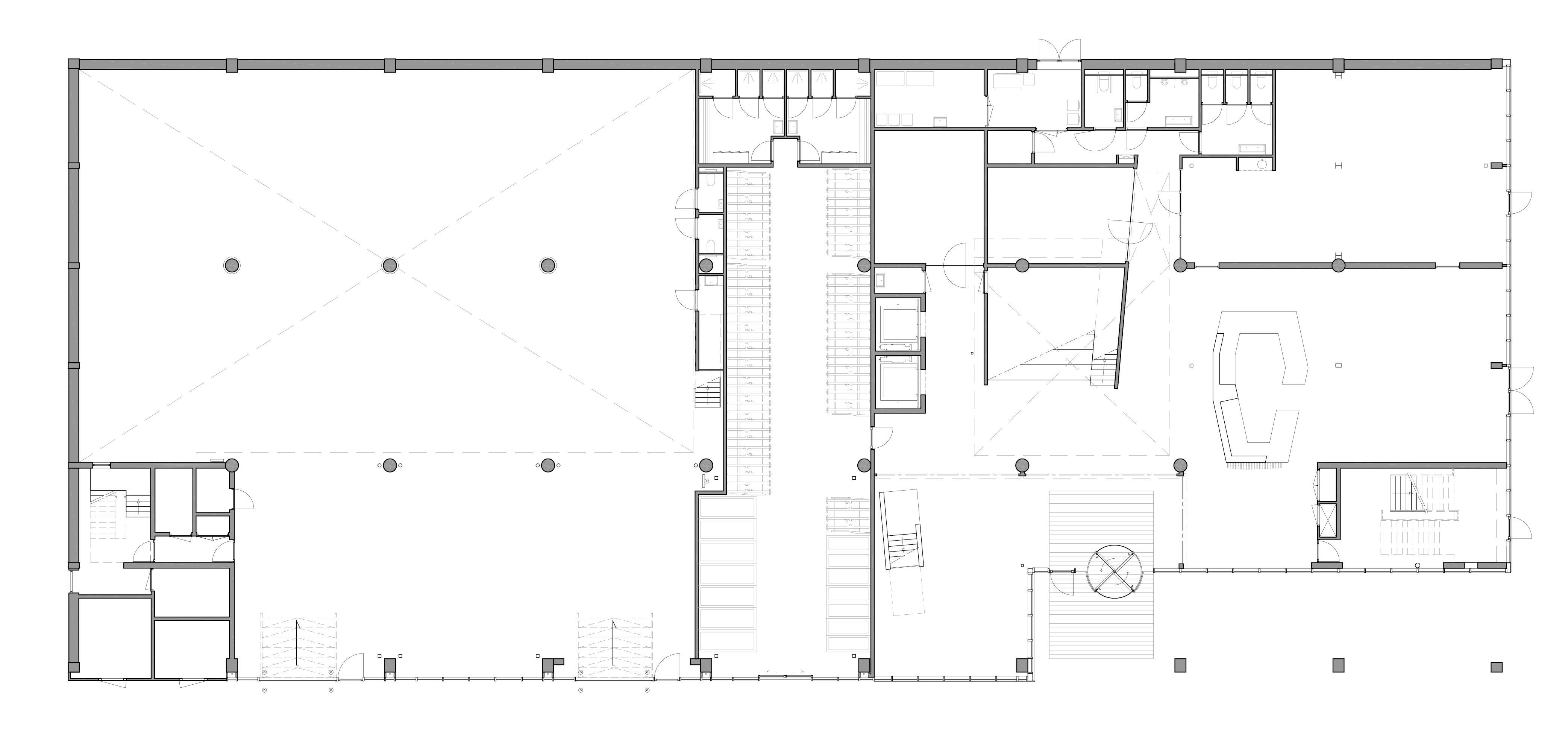
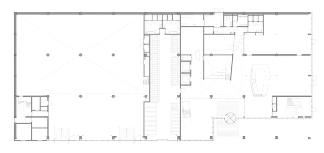
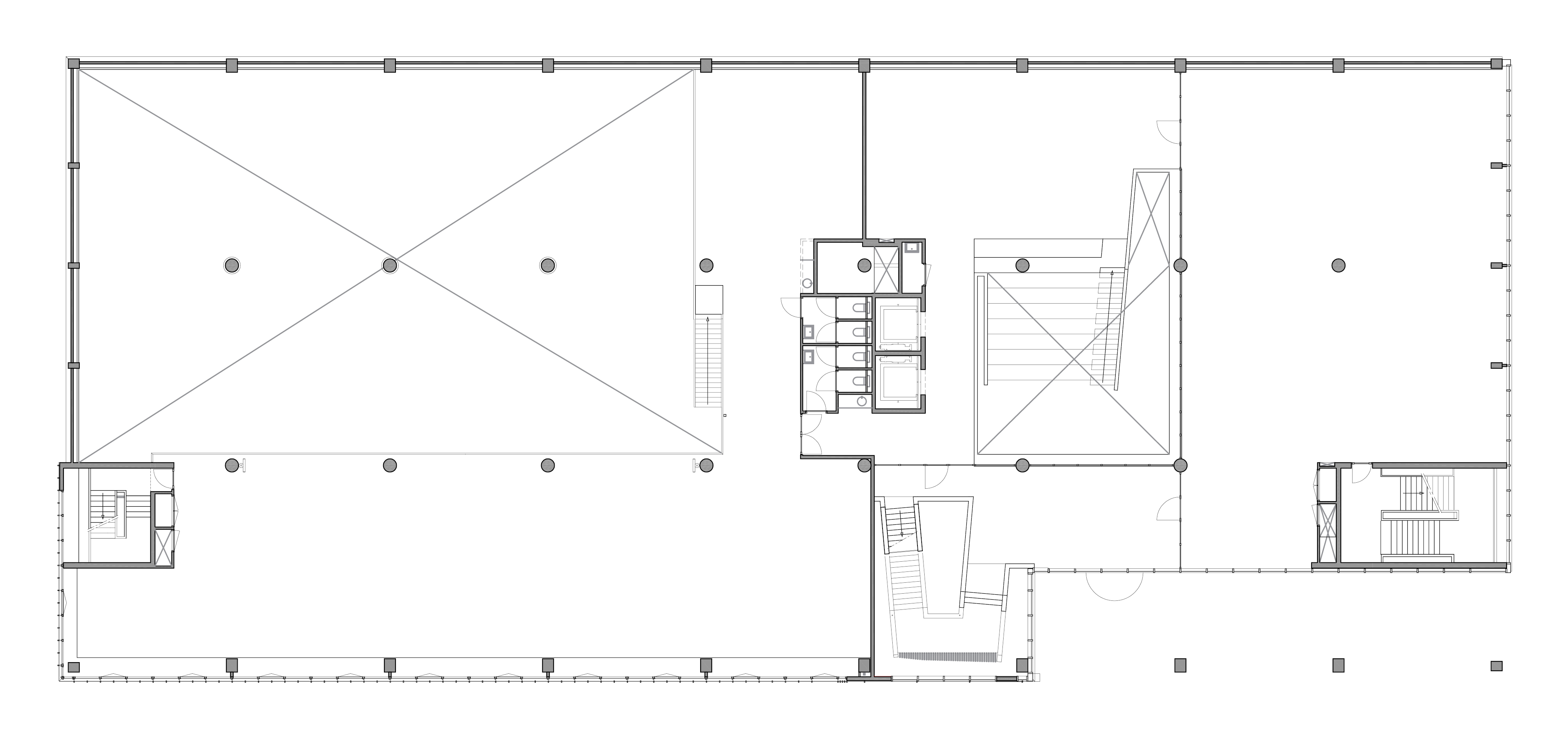
Het gebouw biedt ruimte aan verschillende functies. Op de begane grond bevindt zich een dubbelhoge 'makerspace' voor flexibel werken en produceren, aangevuld met een fietsenstalling. Een publieke plint met koffie- en lunchvoorzieningen en een tribunetrap vormen het collectieve hart van het gebouw.
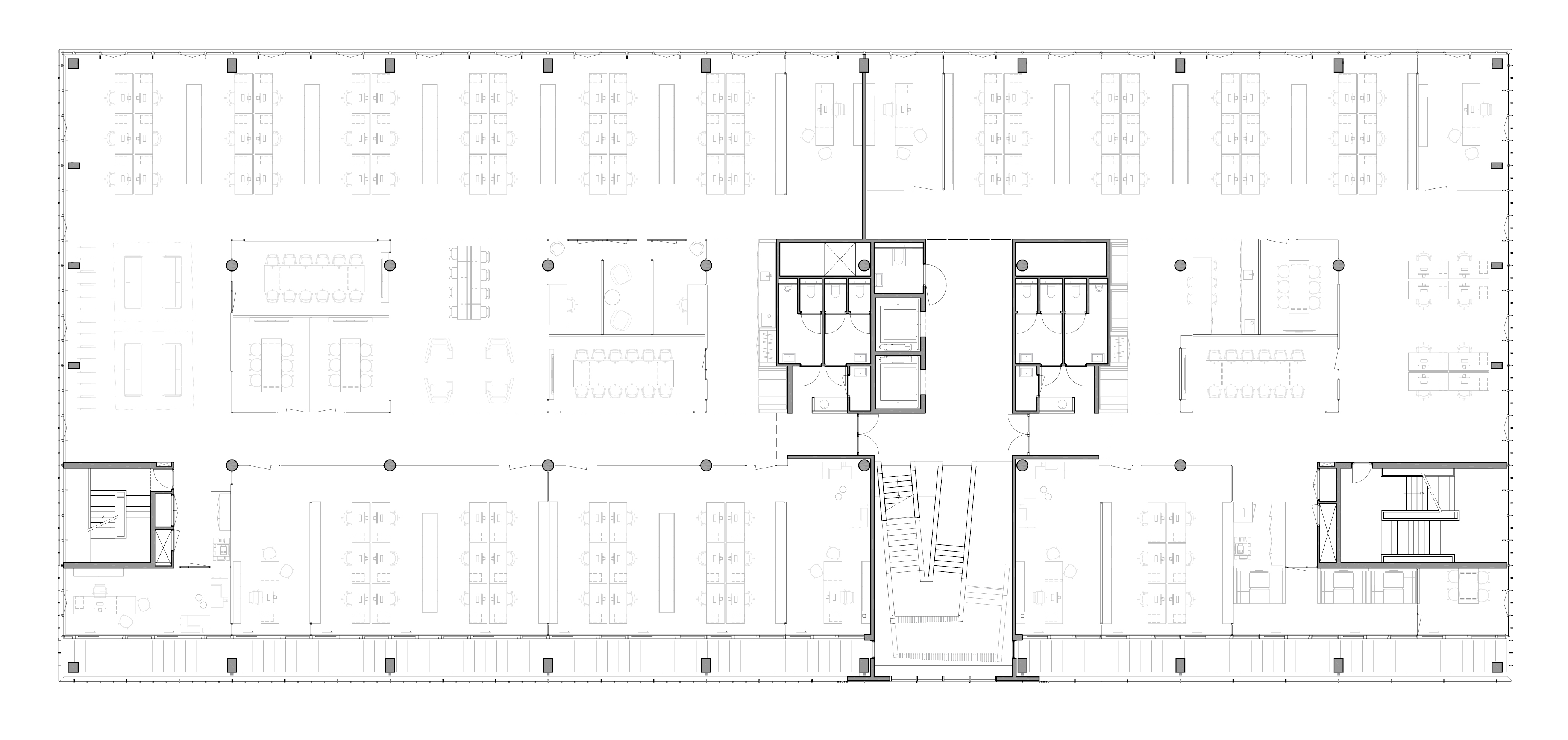
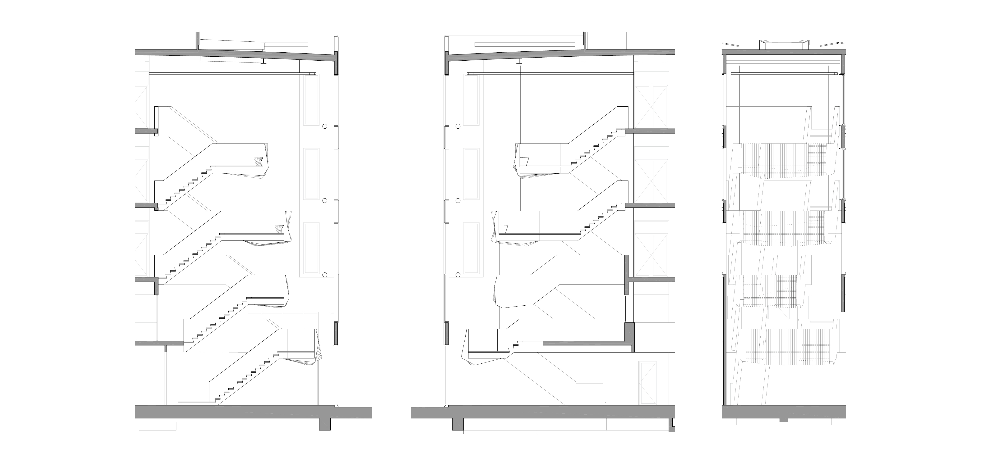
Hergebruik staat centraal in het ontwerp. Het oorspronkelijke kantoorgebouw is gestript tot aan het casco, dat als basis diende voor de herontwikkeling. Door de bestaande structuur te behouden, is circa 75 procent minder CO2 uitgestoten in vergelijking met volledige nieuwbouw. Karakteristieke elementen zoals glazen bouwstenen in de gevel en de natuurstenen trap met houten leuningen zijn behouden en gerestaureerd. Dankzij de draagkracht van de bestaande constructie kon een extra verdieping worden toegevoegd. De zuidgevel is teruggelegd waardoor terrassen op de kantoorvloeren zijn ontstaan. Een nieuw centraal atrium met sculpturale trap brengt daglicht het gebouw in en markeert de entree richting het Ferroplein. De gevel bestaat uit biobased materialen met houten lamellen die zoninstraling beperken. Het gebouw is gasloos, voorzien van zonnepanelen, voldoet aan de Beng-normen en heeft energielabel A++++ en een Breeam-NL Outstanding certificaat.
Ferro Offices maakt deel uit van de bredere gebiedsontwikkeling van M4H, dat samen met de Rotterdamsche Droogdok Maatschappij het Rotterdam Makers District vormt. In dit gebied werken gemeente en haven aan een stedelijk ecosysteem waar wonen, werken, leren en innoveren samenkomen.































