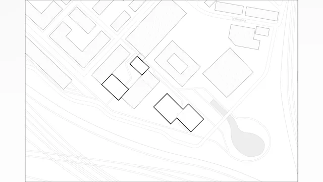
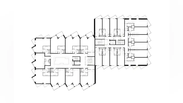
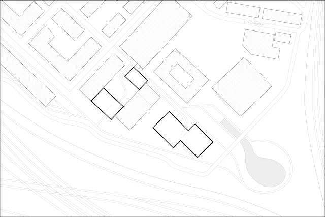
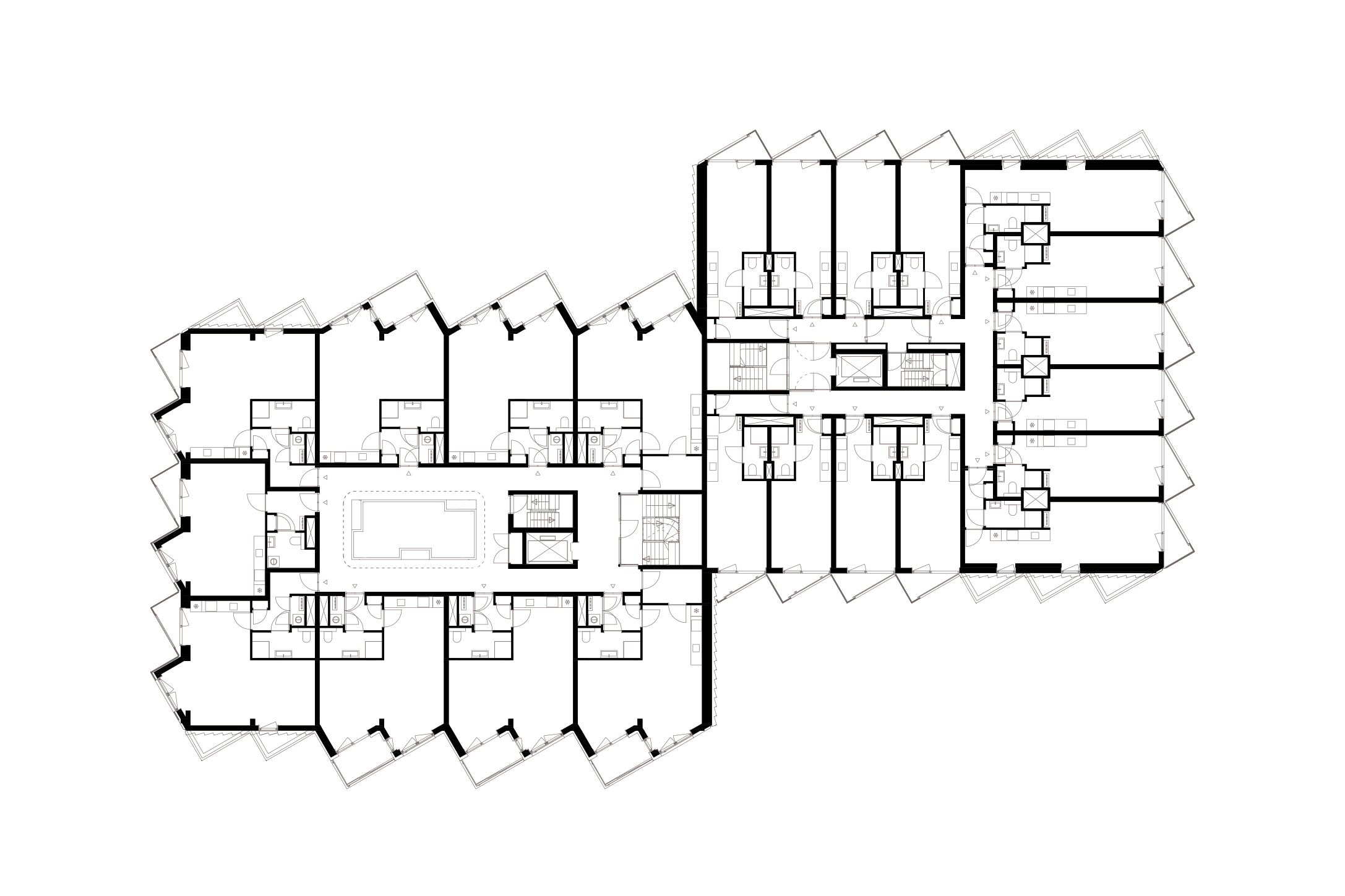
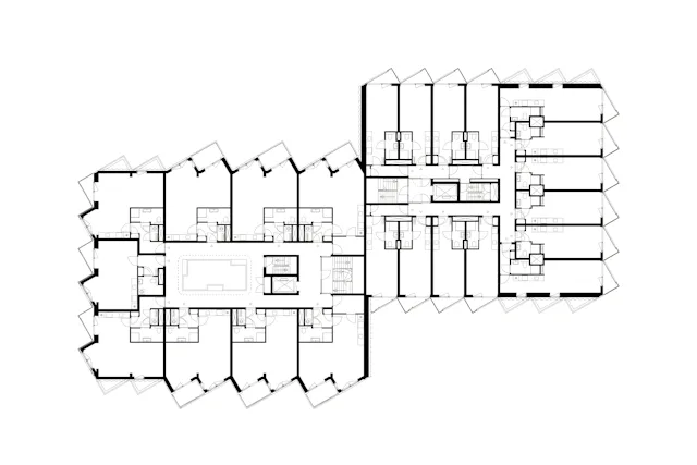
Wisselspoor 10 bestaat uit 183 woningen voor studenten, starters en kopers van een sociale koopwoning, verdeeld over 112 studio's, 45 appartementen en 26 maisonnettes. Het ontwerp bundelt twee volumes tot één blok: het hogere deel telt tien verdiepingen met studentenwoningen, het lagere deel zeven etages met starters-studio's rondom een patio met tuin. Op de begane grond hebben maisonnettes een privétuin aan het park.
Een diagonale doorgang verbindt plein en park en biedt toegang tot alle appartementen. De entreehal is voorzien van glazen wanden en een groene spiltrap. In de gevels zijn nestkasten geïntegreerd. Rondom het gebouw wordt het Spoorpark ingericht met inheemse beplanting en een wadi voor regenwater en biodiversiteit.
Wisselspoor 10 maakt deel uit van Fase 4 van de herontwikkeling van Wisselspoor, samen met Wisselspoor 9 (eveneens Arons en Gelauff, met Office Winhov en Beta), Blok 6 (Office Winhov) en de Wagenmakerij (Zecc). De herontwikkeling volgt het Cityplot-concept van Studioninedots.

































