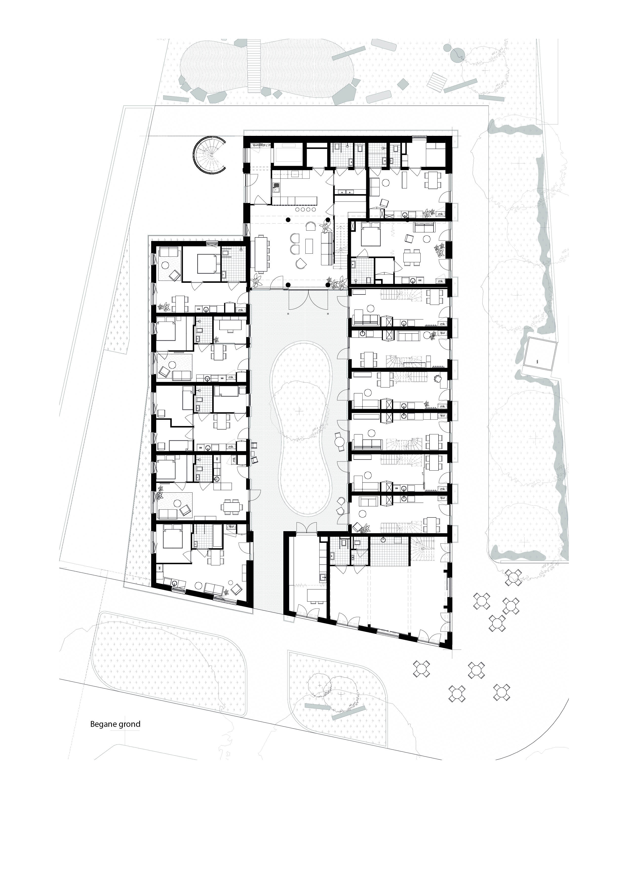
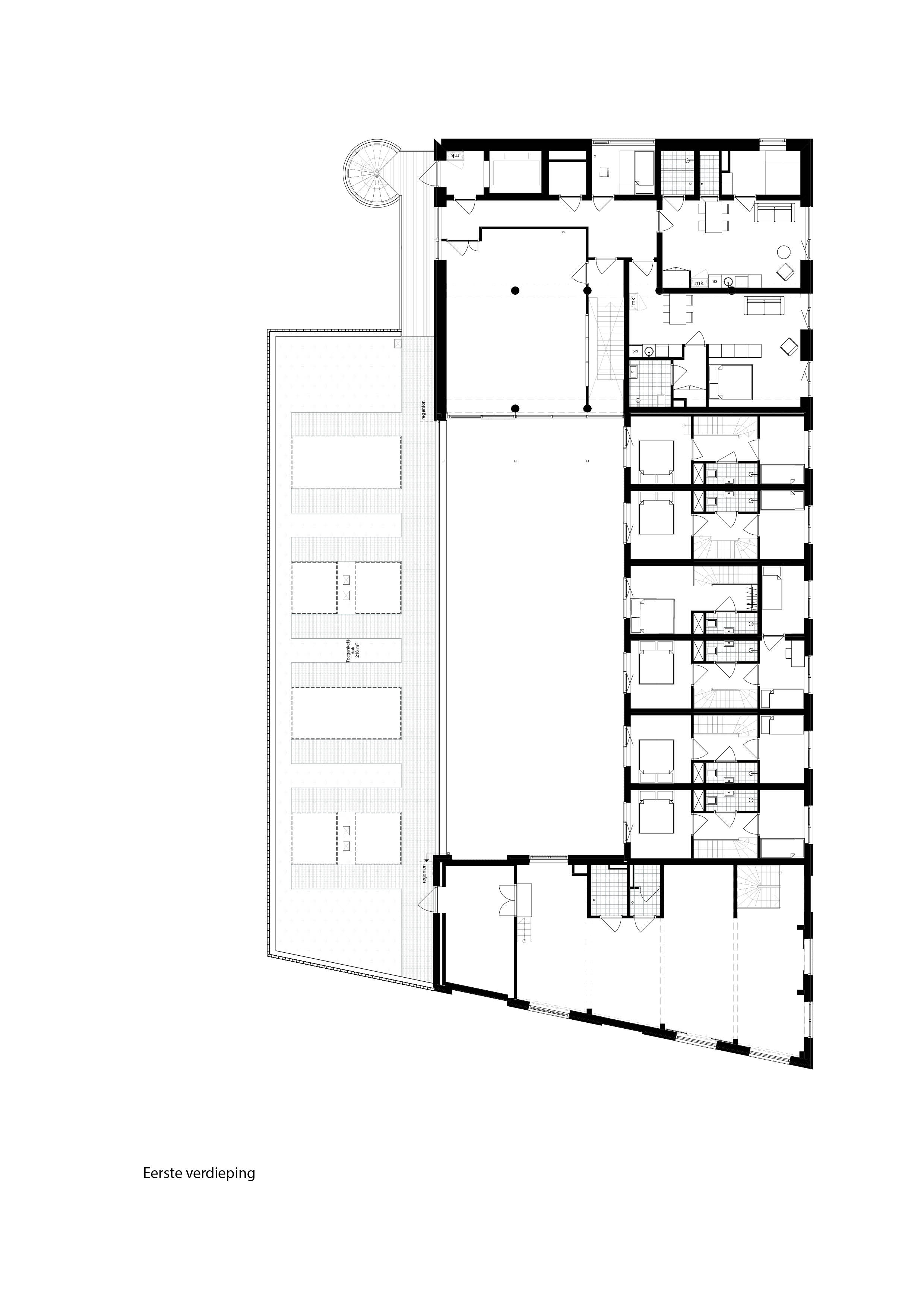
Ongeveer 55 procent van het gebouw bestaat uit privéwoonruimte, de overige 45 procent zijn gedeelde voorzieningen. Bewoners beschikken over een gemeenschappelijke binnentuin, een groendak voor stadslandbouw, een werkplaats, wasruimte, een evenementenruimte en een gedeelde keuken met eet- en woonruimte. Het codesignproces heeft geleid tot woningen die aansluiten op de behoeften van de coöperatieleden en ruimte bieden aan vijf zelfgeorganiseerde woongroepen naast de individuele appartementen.
Het zeven verdiepingen tellende gebouw is opgetrokken uit een draagstructuur van cross-laminated timber (CLT) en geprefabriceerde houtskeletgevelelementen. In totaal is 247168 kilogram hout gebruikt, wat resulteert in de permanente opslag van circa 450000 kilogram CO2. Het gebouw produceert meer energie dan het verbruikt, dankzij een fotovoltaïsche installatie op het dak — gerealiseerd in samenwerking met een lokale energiecoöperatie — en een geothermisch systeem gecombineerd met warmtepompen. Energieverbruik wordt beperkt door de oriëntatie op de zon, geïsoleerde gevels en drievoudig glas.
Naast de energieprestaties draagt het project bij aan ecologisch herstel door de integratie van nestgelegenheden voor vleermuizen, vogels en insecten in de bakstenen gevels, evenals groenstroken en regenwateropvang. Op de hoek van het gebouw bevindt zich een buurtcafé en er zijn coworkingruimtes die ook voor evenementen worden gebruikt. De Nieuwe Meent is in het vierde kwartaal van 2025 opgeleverd en beslaat een bruto vloeroppervlak van 2300 vierkante meter.





























