New Brooklyn is een stadswijk in Almere Poort volgens het plan van West 8. De wijk is geïnspireerd op Brooklyn in New York. De architectuur bestaat uit woningen van baksteen, erkers, straten en bomen. In totaal komen er 1.400 koop- en huurwoningen in de wijk, bestaande uit huizen met tuin en appartementen.
Naast Jasper Smits Architecten zijn M3H architecten en Inbo verantwoordelijk voor de andere woningen in New Brooklyn. Het project D3 vormt het laatste bouwblok dat door Jasper Smits Architecten is ontworpen.
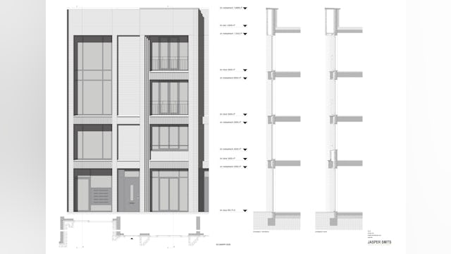
De architectuur van Jasper Smits Architecten kenmerkt zich door ramen en dakranden. De gebouwen zijn uitgevoerd in baksteen met kolommen en erkers. De grondgebonden woningen hebben een gevelbankje en vormstenen langs de ramen.




















