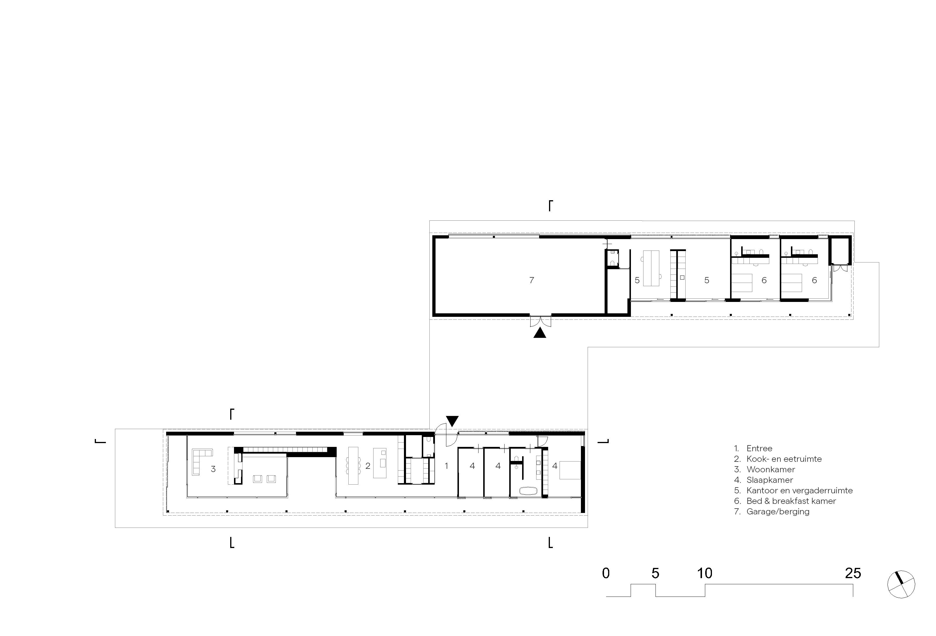
De positie van het woonhuis biedt uitzicht over het Drentse landschap. Bij de ontwikkeling van het project lag de nadruk op behoud en versterking van het landschap. Door de plaatsing van de leefruimtes ervaart een bewoner een wandeling door het huis als een tocht door de omgeving. Op de plek waar de gebouwen elkaar overlappen bevindt zich een buitenruimte die toegang geeft tot beide volumes. Door de volumes horizontaal ten opzichte van elkaar te verschuiven, ontstaat een ordening van de functies op het perceel.
Het ontwerp is tot stand gekomen in samenwerking met de bewoners en is gerealiseerd met lokale partijen in eigen beheer. Het uitgangspunt was een woning met betrekking tot het landschap. Dit heeft geleid tot een ontwerp met een interieur en exterieur in hout. De architectuur kenmerkt zich door een afwisseling tussen open en gesloten ruimtes.
De situering van de functies draagt bij aan de woonbeleving. Het ontwerp biedt privacy, uitzicht, daglicht en doorzicht. De woning is teruggetrokken op het perceel en richt zich op het bieden van onderdak en beschutting met zicht op de omgeving.

























