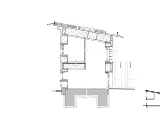
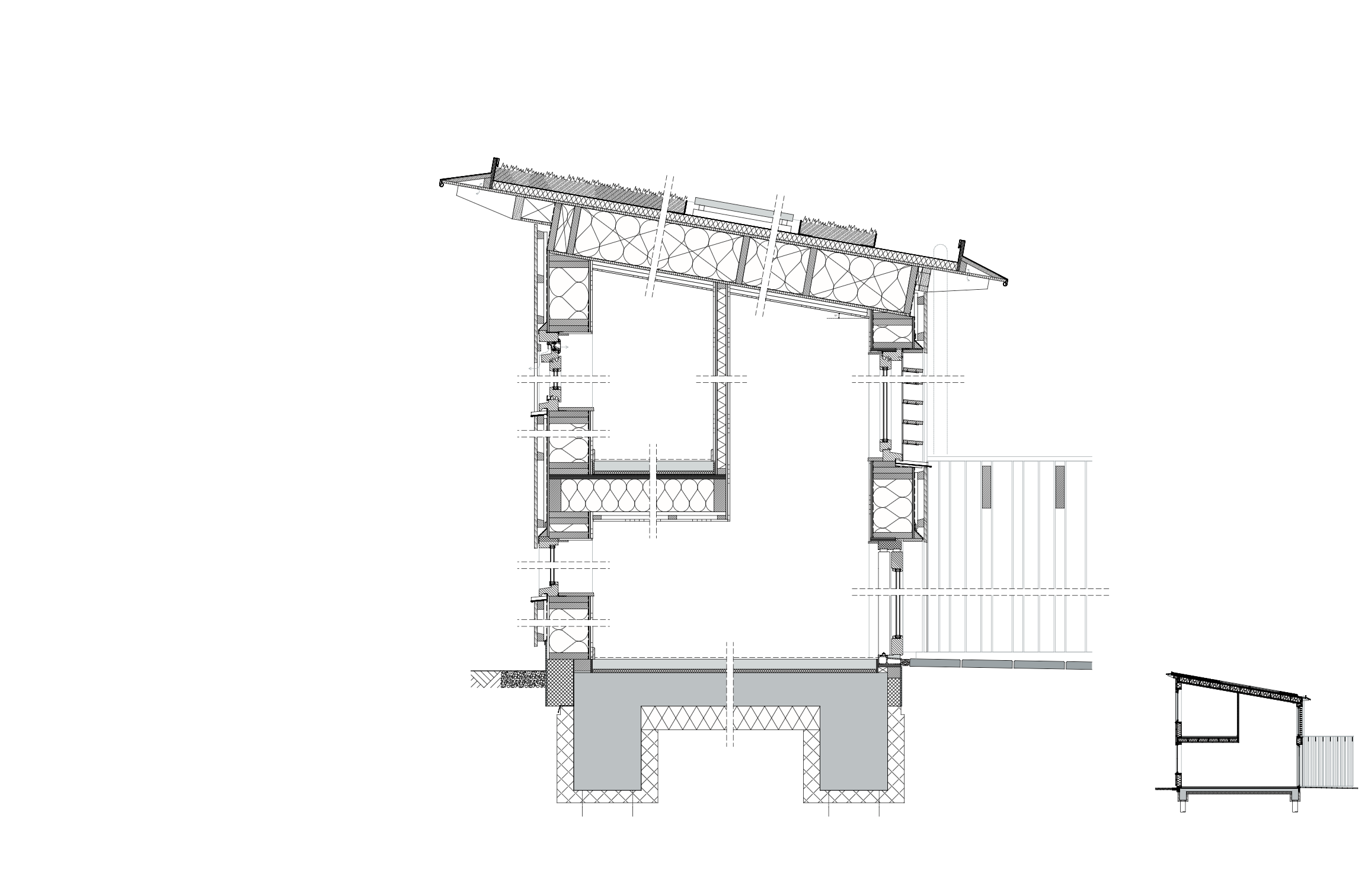
Het plan bestaat uit een hofjesstructuur met groenvoorzieningen, waaronder bomen, tuinen en sedumdaken. De woningen zijn uitgevoerd in houtskeletbouw en afgewerkt met fraké noir, een houtsoort uit duurzaam beheerde bossen. Het hout is voorvergrijsd en behoudt daardoor zijn kleur. De verticale nerfrichting bevordert de afvoer van regenwater en een gelijkmatige veroudering van het materiaal.
Bij het ontwerp is aandacht besteed aan de overgang tussen privé en openbaar gebied. Hout en zink zijn toegepast in onder meer gevels, overstekken en lamellen. Deze lamellen beperken hittestress en zorgen voor beschutting, terwijl zicht en contact tussen het hofje en de omgeving behouden blijven. De woningen zijn zo gepositioneerd dat ze zowel op het hof als op de omliggende straten zijn gericht.
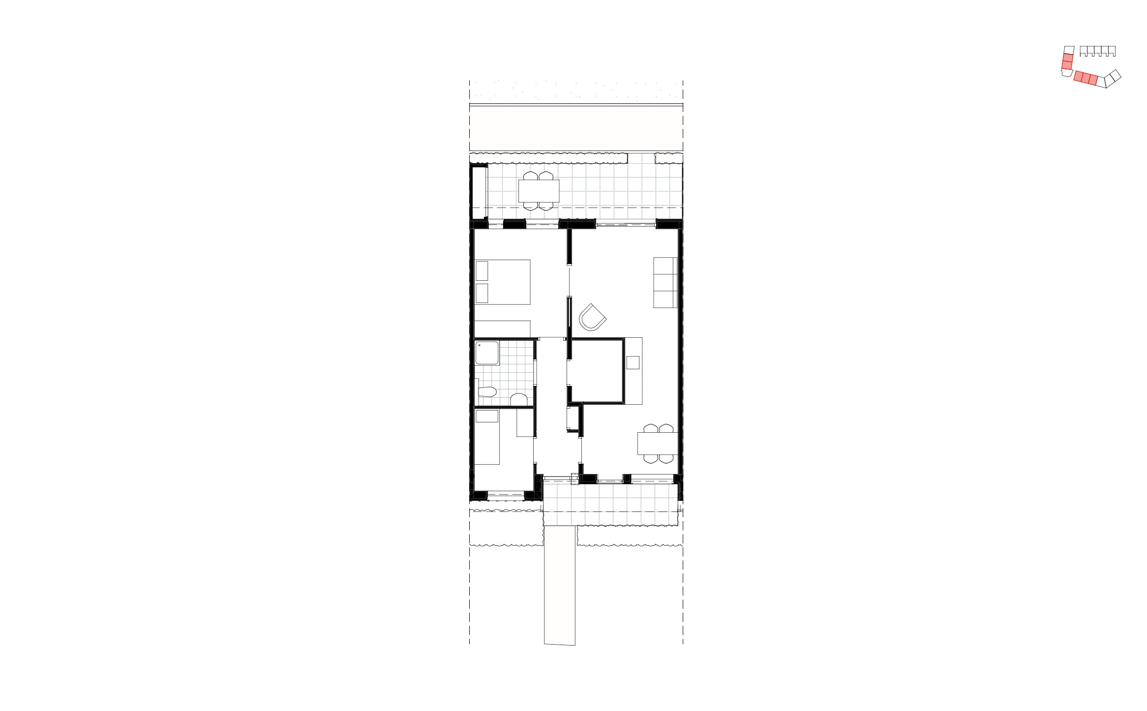
Het project omvat negen gelijkvloerse woningen met één slaapkamer en vijf gezinswoningen met twee slaapkamers. Elke woning heeft een eigen terras met een variërende mate van beschutting. Na de oplevering gaat Specht architecten met bewoners in gesprek over de invulling van het collectieve gebruik van het hof. Eerder stelde het bureau in opdracht van de gemeente Eemsdelta al een stedenbouwkundige visie op, waarin de verbinding tussen verschillende delen van het dorp en de aansluiting van groenstructuren centraal staat.


































