(Beoogde) aanpak
Benthem Crouwel Architects legde de visie voor District West vast in een masterplan, gevolgd door de transformatie van Lighthouse via een integraal ontwerptraject met adviseurs en aannemer. De houten uitbreiding werd volledig afgestemd op de bestaande draagstructuur. In bouwteamverband werd een technisch ontwerp met circulaire benadering uitgewerkt. Beeldbepalende elementen ontstonden in nauwe samenwerking met leveranciers.
Samenwerking met andere disciplines
BCA werkte vanaf de eerste fase samen met ontwikkelaar APF International, investeerder Angelo Gordon en adviseurs Van Rossum en DGMR. Door integrale aanpak werd het ontwerp snel uitgewerkt. Aannemer Biltz en Laminated Timber Solutions sloten tijdens het TO aan in een bouwteam, cruciaal voor technische realisatie. Deze samenwerking leidde tot innovaties zoals een hybride gevelsysteem en circulaire technieken, plus een consistent uitgevoerde houten hoofddraagconstructie met uniforme knooppunten.
Duurzaamheid
Lighthouse is ontworpen volgens de principes van circulariteit en minimale CO₂-uitstoot. De houten uitbreiding met droge verbindingen vergemakkelijkt hergebruik. Een WKO-installatie verlaagt de energiebehoefte, terwijl SMART vloeren het verbruik optimaliseren. De uitbreiding volgt de bestaande stramienmaat voor flexibele kantoorindelingen. Groene daken en duizenden bomen en planten bevorderen biodiversiteit en creëren een gezonde, inspirerende werkomgeving.
Materiaal en techniek
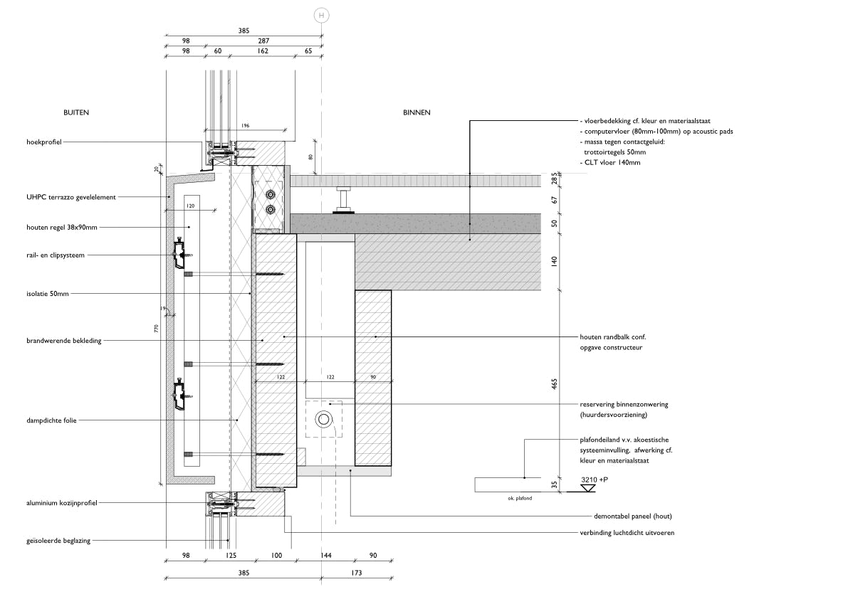
In contrast met de robuuste gevel is de constructie van de nieuwe uitbreiding volledig duurzaam in hout. De schoonheid komt voort uit de materialiteit: de houten binnenwereld creëert een uitnodigend, warm interieur. De buitengevels bevatten graniettoeslag als knipoog naar de oorspronkelijke bouw. Binnen is de vloer afgewerkt met stoeptegels voor akoestiek en duurzaamheid. Deze materiaalkeuzes dragen bij aan een circulair, toekomstbestendig gebouw.
Maatschappelijke impact
Lighthouse is de eerste stap in de transformatie van District West en geeft een impuls aan de revitalisering van Amsterdam Sloterdijk. Het Telegraaf-complex was voorheen niet openbaar toegankelijk, het wordt nu ontwikkeld tot een openbaar levendig gebied met publieke ruimtes die interactie en ontmoeting stimuleren. De transparante architectuur versterkt de sociale dynamiek, terwijl vergroening en duurzame voorzieningen bijdragen aan een gezonde leefomgeving.
Fysieke impact
Het voormalige Telegraaf-complex kreeg een tweede leven met duurzame uitstraling. De houten uitbreiding voegt vier verdiepingen toe en versterkt het industriële karakter. De nieuwe entree leidt naar een licht atrium dat verbindt met het centrale plein. Een sculpturale houten trap dient als ankerpunt en bevordert interactie. De architectuur past bij het stoere karakter van District West, met een functioneel grid zichtbaar in de gevel. Tussen de gevelelementen zijn verspringende terrassen geplaats
Duurzaam
Lighthouse is een iconisch voorbeeld van duurzame transformatie. De houten uitbreiding, demontabele bouwmethode en hergebruikte materialen minimaliseren de ecologische voetafdruk. Het project versterkt de industriële identiteit van het gebied en draagt bij aan een innovatieve werkomgeving. Door de transparante architectuur en de oriëntatie op het centrale plein ontstaat een toegankelijke, open en dynamische werkplek die verbinding stimuleert.












