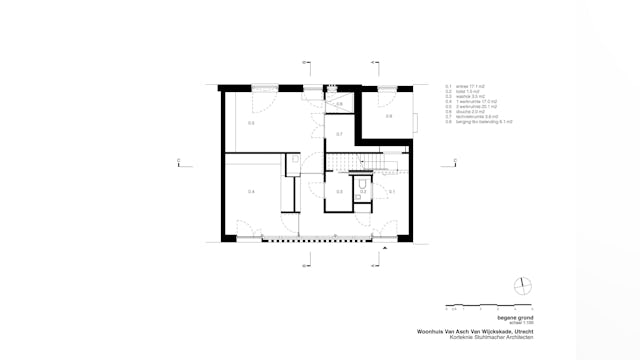
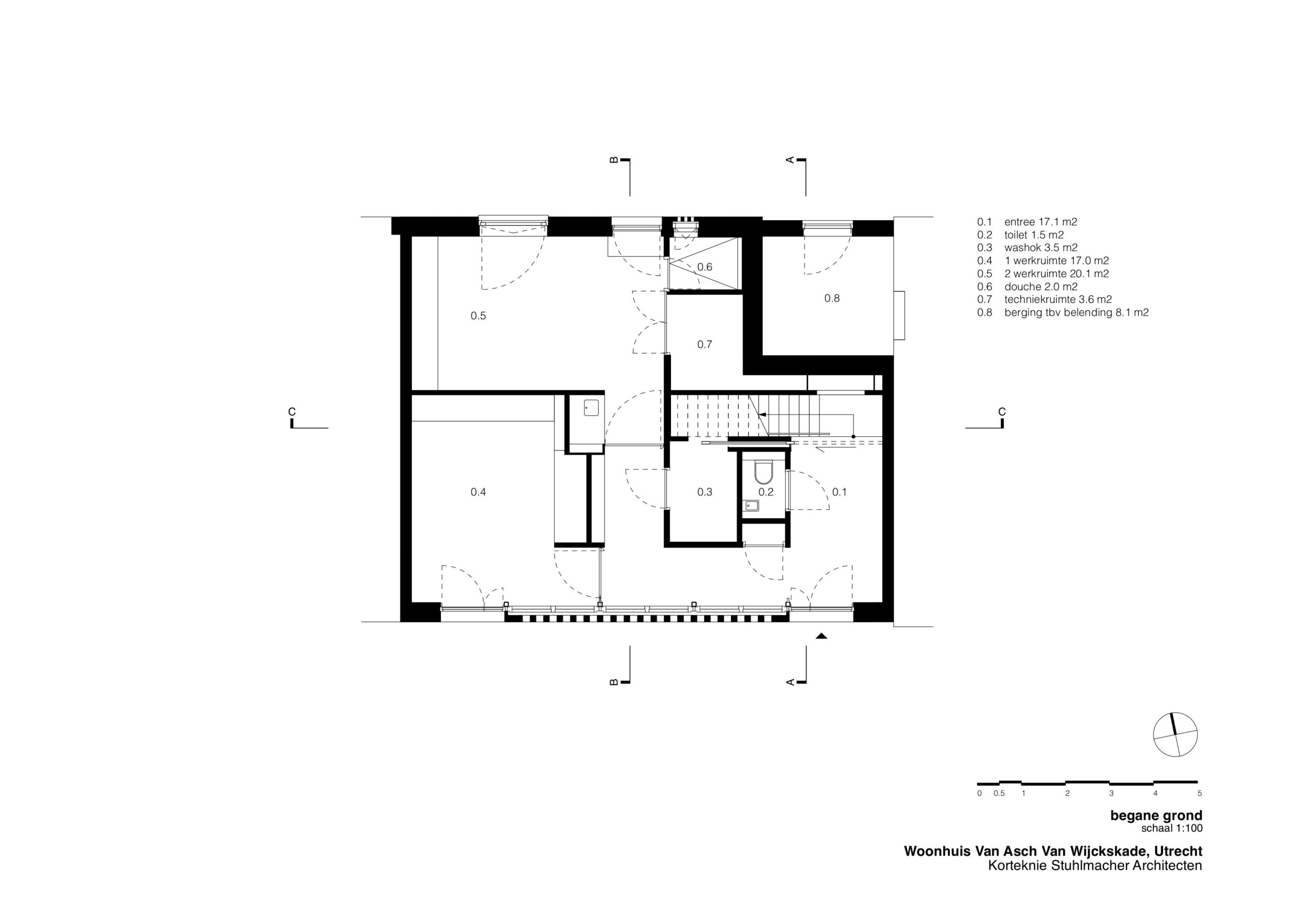
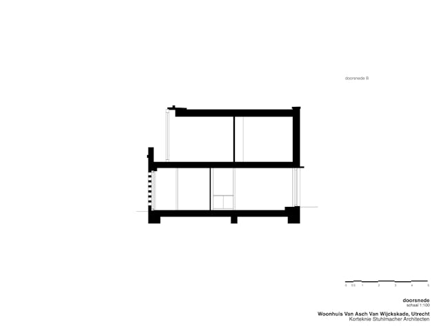
De nieuwe woning is ontworpen met respect voor de oorspronkelijke opzet, maar aangepast aan moderne woonbehoeften. Om meer daglicht binnen te laten en de woning bewoonbaar te maken, is de tuinmuur voorzien van kleine perforaties, waarachter ramen zijn geplaatst. Deze openingen zorgen voor een spel van licht en schaduw en bieden tegelijkertijd privacy. De muur zelf is uitgevoerd in brute betonstenen, wat contrasteert met het warme interieur van CLT (Cross-Laminated Timber) en op maat gemaakte meubels. Op de begane grond bevinden zich de entree, werkruimtes voor beide bewoners en enkele nutsvoorzieningen.
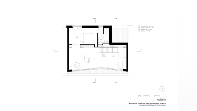
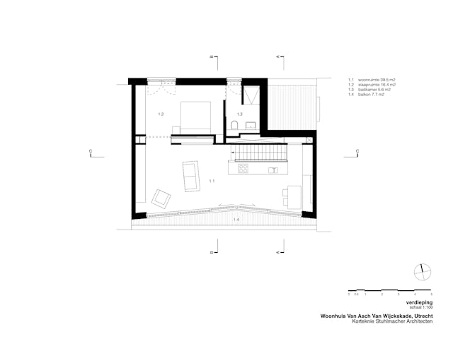
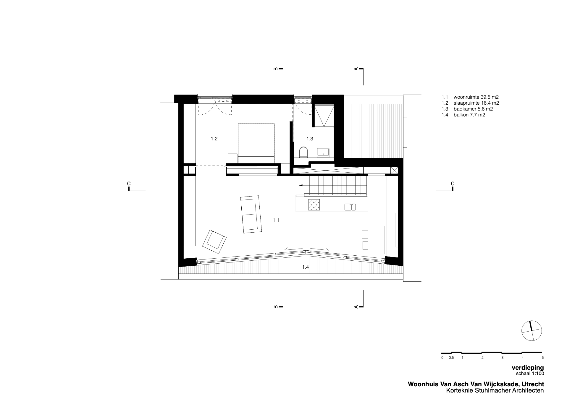
De bovenverdieping, waar de woon- en slaapkamer zijn ondergebracht, breekt aan de voorzijde met de oorspronkelijke stijl van Zocher. Hier is een grote, geknikte glaspartij geplaatst die een weids uitzicht biedt op de bomen van de singel. Dit uitzicht compenseert voor het ontbreken van een tuin of dakterras en zorgt voor een sterke verbinding met de buitenomgeving. Ondanks deze moderne ingreep blijft het huis qua opzet trouw aan de historische context.
Aan de achterzijde van de woning, die grenst aan een steeg, is de architectuur eenvoudiger en meer informeel. Hier sluit het huis aan op de beeldtaal van de achtergevels in de buurt. Een kleine berging en een terras maken deel uit van de woning en zijn mee verkocht met het oorspronkelijke woonhuis, wat zorgt voor een praktische toevoeging aan het ontwerp. Het geheel laat zien hoe historische architectuur op subtiele wijze gecombineerd kan worden met eigentijdse woonwensen.




































