Toelichting Ibelings van Tilburg architecten | Beeld Ibelings van Tilburg Architecten
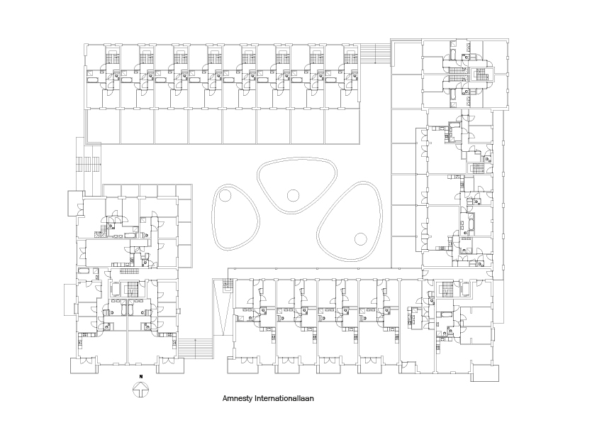
Direct naast het nieuw sportcomplex en het IKC is de 1e fase van het woningbouwproject Acapella Wonen gerealiseerd met in totaal 90 woningen. Hiervan zijn 60 woningen ingevuld door Ibelings van Tilburg architecten met het woningblok De Bariton, dat bestaat uit een mix van kleinere en grotere appartementen, penthouses, en herenhuizen. In de plint langs de zijde van de Amnesty Internationallaan zijn commerciële ruimtes voorzien.
Alle woningen beschikken over een riant dakterras of balkon op het zuiden en/ of westen. Balkons, dakterrassen en galerijen zijn voorzien van geïntegreerde bloembakken in de balustraden. Een voor het publiek toegankelijke binnenhof met 3 groenelementen met enkele bomen en zitmogelijkheden completeert het groene ontwerp. Hiermee ademt De Bariton ‘buiten zijn’.

Gevarieerd woningaanbod
Het woongebouw De Bariton bestaat uit 5 delen met in totaal 48 appartementen, 8 herenhuizen en 4 maisonnettes. Verschillende woningtypen, variërende hoogte en toonvariaties in het metselwerk geven elk gebouwdeel een eigen identiteit. Tegelijkertijd presenteert het complex zich door de aaneengesloten bebouwing met krachtige lijnen ook als een architectonische eenheid. Die eenheid wordt geaccentueerd door de semi-openbare groene binnenhof die een natuurlijke ontmoetingsplaats voor de bewoners vormt, mede omdat alle woningen (en ook de commerciële ruimten) het binnenhof ‘delen’, via de ingang of een achterdeur, of via balkon of terrastuin.
De verhoogde binnenhof ligt op het dak van de half verdiepte parkeergarage onder het gebouw. Die biedt plek aan 72 auto’s van bewoners en ook de bergingen zijn hier te vinden. Bezoekers parkeren op straat. Ook aan de fietsers is gedacht: die hebben een eigen toegang die gescheiden is van de auto’s. De parkeerkelder is kleiner dan het bouwblok, zodat aan de randen ruimte is voor de entrees naar de woningen, trappartijen naar de binnenhof en voor commerciële voorzieningen. Dit zorgt er tevens voor dat de garage niet vanaf het openbaar gebied zichtbaar is, behalve bij de entrees.
Vijf gebouwdelen met een eigen karakter
Het blok Opera ligt op de noordoosthoek en biedt ruimte aan 5 woningen, waarvan twee 4-kamer splitlevel maisonnettes met terrastuin op het westen aan de groene binnenhof.
Het blok Opus omvat 12 woningen met de woonkamer en het balkon op de westzijde aan de binnenhof. Bijzonder in dit blok zijn de topmaisonnette en de appartementen met ‘in elkaar hakende’ plattegronden. De galerijen bevinden zich achter een gemetselde gevel en in de balustrades zijn geïntegreerde bloembakken opgenomen, waardoor de galerijen onttrokken zijn aan het oog van de voorbijganger.
De entree naar de wijk wordt gevormd door het blok Octaaf, met zeven bouwlagen het hoogste gebouwdeel van De Bariton. De 25 in grootte variërende appartementen hebben opvallende gemetselde balkons met vaste plantenbakken. De trapsgewijze bouw biedt plek aan grote dakterrassen met veel privacy.
Blok Prelude bevat 10 zeer ruime appartementen, waarvan de meeste balkons op het zuiden hebben. Opvallend is de maisonnette met vijf kamers, die ook direct bereikbaar is met een eigen opgang uit de parkeerkelder. Het topappartement heeft een ochtend en een avondterras.
Aan de noordzijde liggen 8 herenhuizen (Allegro) met vier etages. Op de begane grond ligt de woonkamer direct aan de terrastuin op het zuiden met ruim zicht over de groene gemeenschappelijke binnentuin. Naast de voordeur is een nis met een zitbank in de gevel opgenomen, vanwaar je uitzicht hebt op de singel en makkelijk een praatje kan maken met de buren.

Groen van buiten, groen van binnen
De woningen zijn voorzien van warmtepompen die aangesloten zijn op een gesloten lussensysteem in de bodem. Met dit systeem kunnen de woningen in de winter milieuvriendelijk worden verwarmd door warmte te onttrekken aan de bodem, en in de zomer worden gekoeld, waarbij weer warmte wordt afgegeven aan de bodem. Het systeem wordt bovendien gebruikt voor het leveren van warm tapwater, waarmee een gasaansluiting overbodig is geworden.
Een gebalanceerd mechanisch ventilatiesysteem met warmteterugwinning draagt op energiezuinige wijze verder bij aan een gezond en aangenaam binnenklimaat.
Om geluidshinder van de naastgelegen Amnesty Internationallaan te beperken is een zijde van het gebouw voorzien van een geluidsluwe gevel. In samenwerking met adviseurs van Peutz zijn hiervoor speciale geluidsreducerende kozijnen ontworpen met het uiterlijk van een bloemkozijn.
Op een aantal plekken zijn zwaluw- en vleermuiskastjes in de gevels opgenomen.





















