Toelichting archipelago | Beeld Stijn Bollaert
Het resultaat is niet alleen een toename van woonoppervlakte, maar ook van open ruimte. Dit staat centraal in de ontwerpaanpak. De open ruimte tussen de nieuwe gebouwen is opgevat als een 'parktuin'. Collectieve ontmoetingsruimtes voor de bewoners en een publieke doorsteek voor de buurt. Het project introduceert zo een route die doorheen het bouwblok loopt en aansluit op de verscheidene buitenruimtes; van het cafetariaterras onder de zuilengalerij tot het centrale pleintje en verschillende groene zones.

Centrum voor de buurt
In de kern van het project ligt het lokaal dienstencentrum. Dit gebouw is bewust dieper in het bouwblok geplaatst zodat het centraal ligt en een verbinding maakt tussen de verschillende gebouwen. Met overdekte buitenruimtes, gevelbanken en een volledig glazen gevel op de begane grond is het dienstencentrum een toegankelijk en uitnodigend gebouw.
Het centrale pleintje dat aansluit aan de oostkant van dit gebouw kan gebruikt worden voor collectieve buitenactiviteiten. De openbare route die langs het gebouw loopt, leidt tot spontane ontmoetingen en het simpele genot om voorbijgangers te aanschouwen.

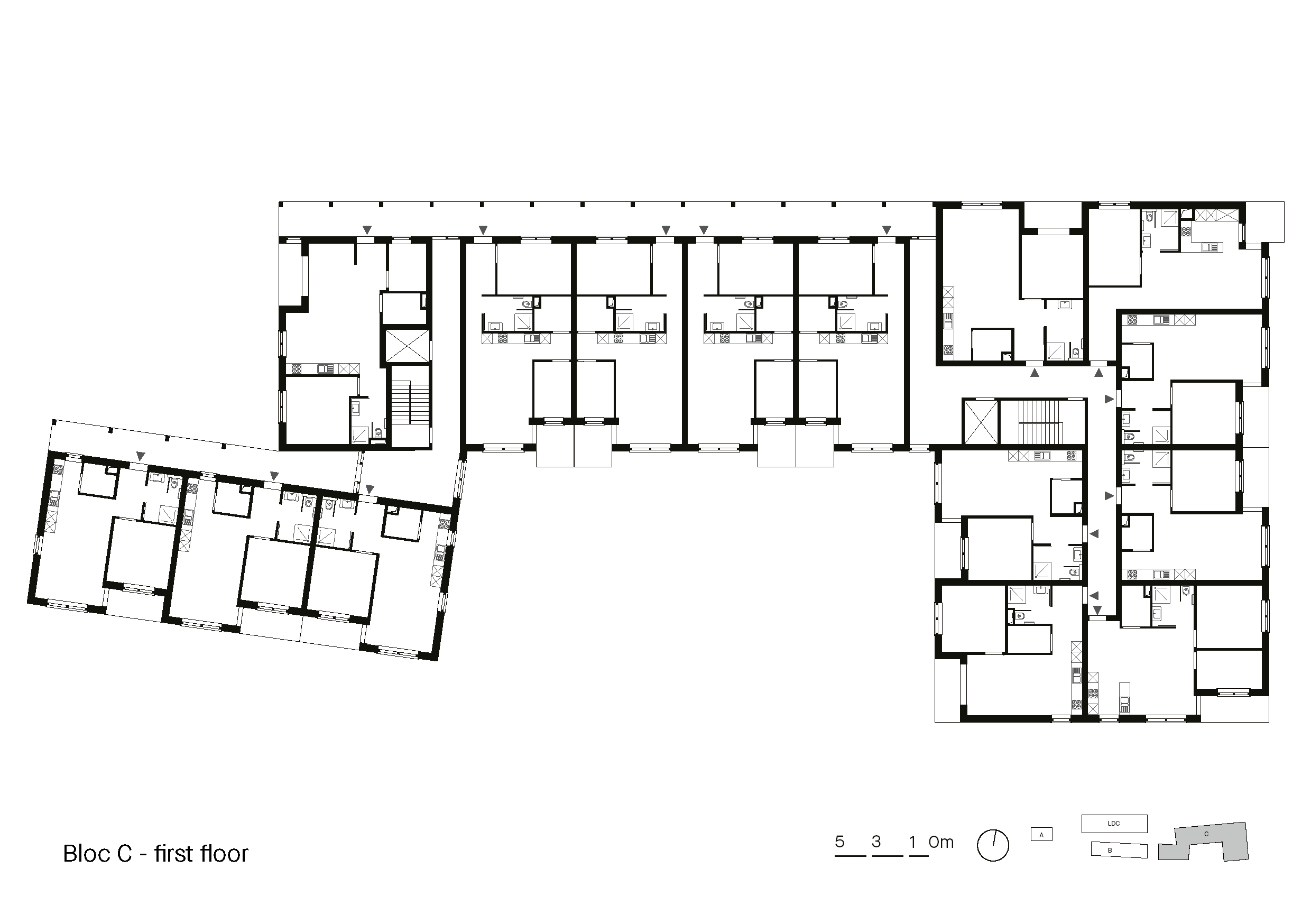
Compact wonen
De architectuur is helder, met het gebruik van een rationele structuur en robuuste materialen. Naast de assistentiewoningen, biedt het project ruimte voor een kapsalon, nagelstudio, wasruimte, polyvalente ruimte, ondergrondse parking en een dienstencentrum.
De wooneenheden zijn verdeeld over drie gebouwen op de site. De gebouwhoogte is beperkt tot maximaal vier niveaus, aansluitend op de bebouwing in de buurt. Waar mogelijk zijn de assistentiewoningen ontworpen als doorzonwoning.
De passerelles langs de gevel zijn ontstaan uit de wens om het aantal doorzonwoningen te maximaliseren en zo veel mogelijk aansluiting te zoeken bij de buurt. Wanneer bewoners naar buiten stappen, al is het maar voor even, kunnen ze zich verbinden met hun woonomgeving en bijdragen aan het gemeenschapsgevoel.



















