Toelichting Keizer Koopmans | Beeld Max Hart Nibbrig en Adrià Goula
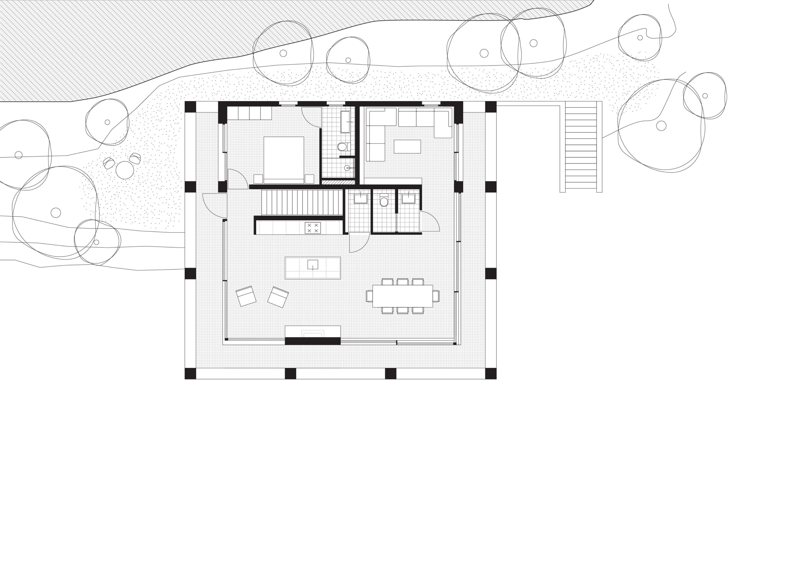
De villa is opgebouwd uit een eenvoudige kubus van 11 bij 11 meter en twee woonlagen. Op de verdieping zorgt een indrukwekkende uitkraging voor beschutting tegen de brandende zon. De verdieping functioneert als alzijdige woonlaag: verdiepingshoge schuifpuien in drie gevels verlenen uitzicht op het landschap richting het zuiden. De grote horizontale vensters in de uitkraging omkaderen het landschap als een liggend panorama. Zonwering is door het overstek overbodig, zo zijn uitzicht en daglichttoetreding gegarandeerd. Het merendeel van de schuifpuien kan worden geopend waardoor rondom 1,5 meter aan de woonruimte wordt toegevoegd. Plafond- en vloerafwerking lopen vlak door naar buiten waardoor de overgang tussen binnen- en buitenruimte verdwijnt. De trap centraal in de plattegrond wordt omsloten door functionele ruimtes zoals keuken en berging. Rond deze centrale kern ontstaat een omloop met als logisch sluitstuk een knusse zithoek tegen de achtergevel. Met de toevoeging van een slaapkamer boven is de verdieping zo ingericht dat een stel in de wintermaanden alleen de bovenste woonlaag hoeft te betrekken.

De begane grond is deels in de berg geschoven, hier bevinden zich hoofdzakelijk koele slaapvertrekken en technische ruimtes. De villa biedt ruimte aan maar liefst 10 personen. De toegangstrap in het landschap aan de oostzijde van de kavel loopt van straatniveau door naar de groene achterzijde van de kavel, de trap snijdt in een rechte lijn haaks door het landschap. Aan de westzijde glooit het landschap juist als een groene helling tegen de onderzijde van het overstek. De hoofdentree van de villa ligt niet aan de voorzijde maar juist aan de oostgevel, halverwege de trap en uit de loop van het buitenterras. Verschillende type buitenruimtes liggen in een baan langs de villa en worden gescheiden door subtiele hoogteverschillen. De buitenruimtes worden omzoomt door een plantenbak die fungeert als balustrade en groenstrook tegelijk. Het buitenterras wordt verder gecomplimenteerd door een in de gevel geïntegreerde buitenkeuken. Ook hier bevindt zich weer een logisch sluitstuk van de omlopende ruimte: in het laagste deel van het terras ligt langs de zuidgevel een ruim zwembad.

De villa staat als een stevige monoliet in een heuvelachtig landschap. De natuurlijke kleuren en materialen zorgen voor een optimale integratie in het Spaanse landschap. De basis wordt gevormd door een zandkleurige natuursteen uit een groeve bij Ulldecona, zo’n 300 kilometer zuidelijk aan de Spaanse kust ten opzichte van Tamariu. De terrassen en de gevel van de begane grond worden bekleed met natuursteen, door gelijke behandeling van alle vlakken lijkt het alsof de plint van de villa uit de rotsen gegutst is. De gevel van de uitkragende verdieping wordt geheel afgewerkt met een grof pleisterwerk, in gelijke kleurtoon als de zandkleurige natuursteen. Door verschillende materialen toe te passen ontstaat een subtiele overgang en lijkt de uitkraging nog meer te zweven. De lichte zandkleur wordt gecomplimenteerd door aluminium kozijnen met donker-bronzen tint en elementen van donkerbruin hout.






































![Team Brainpark, overzicht masterplan [Keizer Koopmans]](https://vmn-dearchitect.imgix.net/uploads/2020/08/keizer-koopmans-E15-01_web-f711b2e7-7728-4e52-9550-5df844f4cf98.jpg?auto=compress%2Cformat&q=50&w=3000&h=1570&fit=fill)